Üldinfo: Müüa suure kinnistuga kinnine majakarp Tartu lähedal Rahinge külas, Väike-Kurvitsa tee 1.
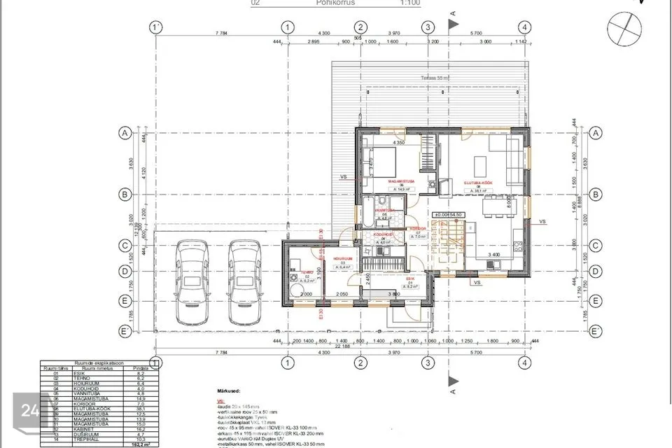
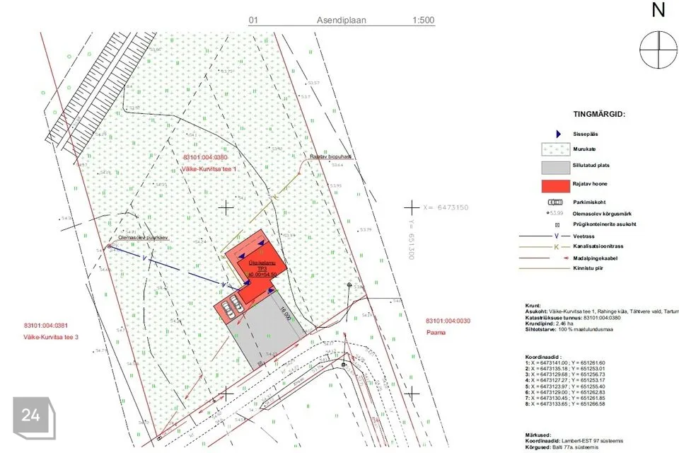
Kinnistu põhjapoolne osa ca 1,8 ha on enamuses metsamaa ja lõunapoolne osa kinnistust ca 5600 m2 hooviala. Kinnistul paiknev elamu on ehitusjärgus kinnine majakarp. Plekk-katus, 3 kordsed pakettaknad, esimese korruse põrand valatud koos vesipõrandakütte kontuuridega.
Elektriliitumine 3 X 25 A. Kinnistul on olemas puurkaev, mida jagatakse naaberkinnistuga.
Juurdepääs otse avalikult Väike-Kurvitsa teelt. Vaikne linnalähedane piirkond. Tartu linnapiirini 6,5 km, Rahinge järve ujumiskoht 1,8 km, Ilmatsalu Põhikool 2,7 km. Ilmatsalu koolibuss viib teeotsast lapsed kooli ja toob tagasi. Ilmatsalu Lasteaed Lepatriinu 3,2 km. Samuti on Ilmatsalusse planeerimisel suur golfiväljak.
Igasuguse lisainfo saamiseks palun helistage või kirjutage e-kiri. Kinnistuga tutvumiseks palume aja eelnevalt ette broneerida.
Võtame müüki ja üürile Teie kinnisvara. Aitame Teid laenu taotlemisel, kinnisvara hindamisel ja seadustamisel. Meie klientidele pakume LUMINORI kodulaenu marginaali alates 1,35 % ja lepingutasu 0 EUR!
Meie kaudu hindamiste ja laenulepingu tasude soodustused kuni - 100%.
Kinnistu põhjapoolne osa ca 1,8 ha on enamuses metsamaa ja lõunapoolne osa kinnistust ca 5600 m2 hooviala. Kinnistul paiknev elamu on ehitusjärgus kinnine majakarp. Plekk-katus, 3 kordsed pakettaknad, esimese korruse põrand valatud koos vesipõrandakütte kontuuridega.
Elektriliitumine 3 X 25 A. Kinnistul on olemas puurkaev, mida jagatakse naaberkinnistuga.
Juurdepääs otse avalikult Väike-Kurvitsa teelt. Vaikne linnalähedane piirkond. Tartu linnapiirini 6,5 km, Rahinge järve ujumiskoht 1,8 km, Ilmatsalu Põhikool 2,7 km. Ilmatsalu koolibuss viib teeotsast lapsed kooli ja toob tagasi. Ilmatsalu Lasteaed Lepatriinu 3,2 km. Samuti on Ilmatsalusse planeerimisel suur golfiväljak.
Igasuguse lisainfo saamiseks palun helistage või kirjutage e-kiri. Kinnistuga tutvumiseks palume aja eelnevalt ette broneerida.
Võtame müüki ja üürile Teie kinnisvara. Aitame Teid laenu taotlemisel, kinnisvara hindamisel ja seadustamisel. Meie klientidele pakume LUMINORI kodulaenu marginaali alates 1,35 % ja lepingutasu 0 EUR!
Meie kaudu hindamiste ja laenulepingu tasude soodustused kuni - 100%.
CKE Kinnisvara OÜ on aktiivselt tegutsenud alates 2009 aastast ning on Eesti üks suurimaid kinnisvara vahendusega tegelevaid ettevõtteid. CKE Kinnisvara OÜ kontorid asuvad Tallinnas, Tartus, Pärnus ja Kuressaares ning maaklerid tegutsevad aktiivselt üle Eesti.
Pakume:- - tasuta konsultatsioon ja hinnang teie kinnisvarale
- - professionaalsed fotod
- - aerofotod ja -videod drooniga
- - korrektsed lepingud
- - õigusabi
- - kolimisteenus































