Müüa elamukrunt Tallinna hinnatud ja kiiresti arenevas Mähe piirkonnas, ligikaudu 15 minuti autosõidu kaugusel südalinnast. Tegemist on küpse ja stabiilse elukeskkonnaga, kus nõudlus kvaliteetsete elamute järele on püsiv.
Kinnistule on 25.10.2024 väljastatud kehtivad ehitusload, mis kehtivad 5 aastat, ning mis võimaldavad kohest ehitustegevuse alustamist. Ehitusload on väljastatud üksikelamule, abihoonele (autovarjualune) ja piirdeaiale. Olemas on terviklik ja detailne ehitusprojekt, mis välistab vajaduse läbida ajamahukas ja kulukas projekteerimis- ja kooskõlastusprotsess.
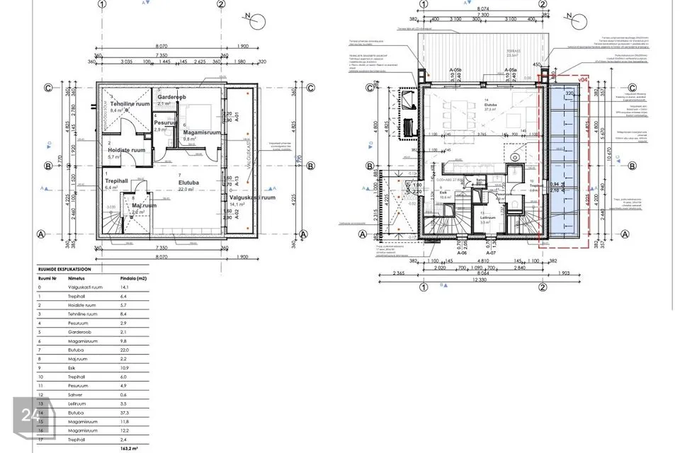
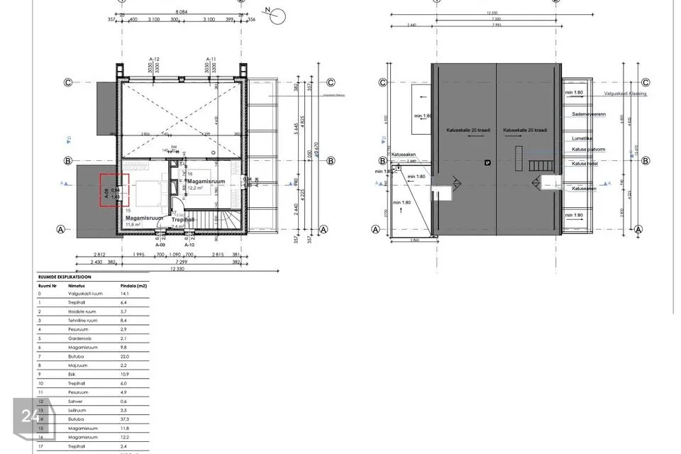
Planeeritud on kolmekorruseline üksikelamu koos abihoonega, mille ruumilahendus on funktsionaalne, energiatõhus ja sobiv nii lõppkasutajale kui ka arendusprojektiks. Hoone on kavandatud ehitatavaks tehaseliste puitelementidega, mis võimaldab lühikest ehitusaega ja kontrollitud kvaliteeti.
Maa-alune korrus on lahendatud monoliitsest raudbetoonist, maapealsed korrused puitelementidest. Projekt võimaldab paindlikku realiseerimist – hoonet on võimalik ehitada ka vähendatud mahus, näiteks ilma maa-aluse korruseta ning ilma sundventilatsiooni ja jahutuseta, mis võimaldab ehitusmaksumust optimeerida vastavalt ärimudelile.
Energiasimulatsiooni alusel on avatäited paigutatud selliselt, et oleks välistatud otsesest päikesekiirgusest tingitud ülekuumenemine. Projekteeritud on põrandaküte ning sundventilatsioon koos jahutusvõimalusega.
Olemas on kõik ehitustöödeks vajalikud projektiosad täismahus:
- arhitektuur;
- ehituskonstruktsioonid (–1 korrus monoliitne raudbetoon, maapealne osa puitelementidest);
- küte, ventilatsioon ja jahutus;
- vesi ja kanalisatsioon;
- elektriprojekt koos nõrkvoolu- ja automaatikalahendustega.
Ehitusprojekti põhi- ja tööprojekti staadiumid on koostanud mainekas projekteerimisettevõte Esplan. Projekti koostamise kogumaksumus oli ligikaudu 28000 €, mis on arendajale koheselt kasutatav lisaväärtus ning vähendab oluliselt nii ajakulu kui ka alginvesteeringu riski.
Projekteerimistingimused nr 211****/10511 kehtivad kuni 23.12.2026, mis võimaldab vajadusel esitada uue ehitusloa taotluse kehtivate tingimuste alusel.
2024. aasta juunis teostatud eksperthinnangu kohaselt hinnati kinnistu väärtuseks 147000 € ilma ehitusprojekti ja ehituslubadeta. Tänaseks on vana suvila lammutatud ja utiliseeritud; alles on hoone vundament ja garaaž, mille utiliseerimine on mõistlik teostada ehitustööde algfaasis koos väljakaevetöödega. Kokkuleppel on võimalik, et müüja korraldab garaaži utiliseerimise enne tehingu sõlmimist, võimaldades ostjal alustada ehitustegevust viivituseta.
Tehnovõrgud:
Kinnistu on liitunud ühisveevärgi ja -kanalisatsiooniga. Elektrivõrguga liitumine puudub ning see tuleb teostada vastavalt arendaja või kavandatava hoone vajadustele ja valitud peakaitsele.
Müügihind kajastab kinnistu tegelikku lisandväärtust, mis tuleneb:
- kehtivatest ehituslubadest (väljastatud 25.10.2024, kehtivus 5 aastat);
- täismahus valminud põhi- ja tööprojektist (investeering ca 28 000 €);
- oluliselt vähenenud arendus- ja kooskõlastusriskidest;
- võimalusest alustada ehitustegevust koheselt;
- Mähe piirkonna stabiilsest nõudlusest ja heast likviidsusest.
Tegemist on praktiliselt valmis arendusobjektiga, kus suurem osa ajamahukast ja riskantsemast eeltööst on juba tehtud ning millel on selge potentsiaal kiireks realiseerimiseks.

























