Müüa 70% tootmis- ja 30% ärimaast koosnev 844 m² suurune kinnistu — suurepärane võimalus ehitada kaasaegne äri- või tootmishoone, mis on täielikult kohandatud teie vajadustele. Kinnistu asub arenenud Mustamäe piirkonnas, elava Kadaka tänava läheduses ja sobib erinevateks äriprojektideks.
PROJEKTEERIMISTINGIMUSED
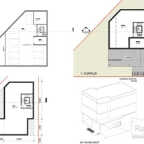
Tallinna Linnaplaneerimisametiga kooskõlastatud projekteerimistingimuste alusel on valminud arhitektuurne eskiis kolme maapealse ja ühe maa-aluse korrusega hoone jaoks. Maa-aluse korruse ehitusalune pind on 678 m², maapealne 343 m². Kasulik pind kokku 1458 m² (678 m² maa-alune ja 780 m² maapealne). Hoone maksimaalne kõrgus — 12,7 m.
KOMMUNIKATSIOONID
Olemas võimalus liituda elektri-, vee-, kanalisatsiooni- ja keskküttega. Kinnistuni viivad heas korras autoteed ja jalgteed.
ÜMBRUS
Kinnistu asub Mustamäe väljakujunenud äripiirkonnas vaikse tupiktänava lõpus, mis ühendub aktiivse Kadaka tänavaga. Läheduses on rohelust ning uus jalakäijate tee Mustamäe ja Haabersti vahel. Ümbruses on äriehitised, elamud, koolid, lasteaiad, poed ja toitlustuskohad.
KAUGUSED
• Bussipeatus Kassi (liinid nr 20, 20A, 24) — 200 m
• Rocca al Mare — 3 km
• Tallinna keskus — 7 km
KONTAKT
+372 **** 5243
***@***.ee
PROJEKTEERIMISTINGIMUSED
Tallinna Linnaplaneerimisametiga kooskõlastatud projekteerimistingimuste alusel on valminud arhitektuurne eskiis kolme maapealse ja ühe maa-aluse korrusega hoone jaoks. Maa-aluse korruse ehitusalune pind on 678 m², maapealne 343 m². Kasulik pind kokku 1458 m² (678 m² maa-alune ja 780 m² maapealne). Hoone maksimaalne kõrgus — 12,7 m.
KOMMUNIKATSIOONID
Olemas võimalus liituda elektri-, vee-, kanalisatsiooni- ja keskküttega. Kinnistuni viivad heas korras autoteed ja jalgteed.
ÜMBRUS
Kinnistu asub Mustamäe väljakujunenud äripiirkonnas vaikse tupiktänava lõpus, mis ühendub aktiivse Kadaka tänavaga. Läheduses on rohelust ning uus jalakäijate tee Mustamäe ja Haabersti vahel. Ümbruses on äriehitised, elamud, koolid, lasteaiad, poed ja toitlustuskohad.
KAUGUSED
• Bussipeatus Kassi (liinid nr 20, 20A, 24) — 200 m
• Rocca al Mare — 3 km
• Tallinna keskus — 7 km
KONTAKT
+372 **** 5243
***@***.ee















