Üldinfo: Müüa elamumaa krunt rahulikus ja rohelises piirkonnas Kristiines.
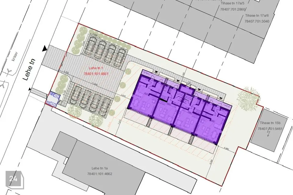
Vastavalt kehtestatud projekteerimistingimustele on võimalik ehitada kuni 4 boksiga ridaelamu.
Krundi pindala 1045 m2
Ehitusalune pind 233 m2
Korruselisus 2
Kõrgus 7 m
Hoonete arv krundil 1
Maa sihtotstarve E100
Suletud brutopindala 418 m2
Netopindala 331 m2
Parkimiskohtade arv krundil 8
Korterite arv 4
Haljastusprotsent 61% ehk 642 m2.
Elektriliitumine 20A olemas ja tasutud.
Vee ja kanalisatsiooniga liitumine olemas ja tasutud.
Hetkel on krundil vana maja, mille taastamine ei ole mõistlik.
Helistage ja küsige lisa.
Pakume:
Vastavalt kehtestatud projekteerimistingimustele on võimalik ehitada kuni 4 boksiga ridaelamu.
Krundi pindala 1045 m2
Ehitusalune pind 233 m2
Korruselisus 2
Kõrgus 7 m
Hoonete arv krundil 1
Maa sihtotstarve E100
Suletud brutopindala 418 m2
Netopindala 331 m2
Parkimiskohtade arv krundil 8
Korterite arv 4
Haljastusprotsent 61% ehk 642 m2.
Elektriliitumine 20A olemas ja tasutud.
Vee ja kanalisatsiooniga liitumine olemas ja tasutud.
Hetkel on krundil vana maja, mille taastamine ei ole mõistlik.
Helistage ja küsige lisa.
CKE Kinnisvara OÜ on aktiivselt tegutsenud alates 2009 aastast ning on Eesti üks suurimaid kinnisvara vahendusega
tegelevaid ettevõtteid. CKE Kinnisvara OÜ kontorid asuvad Tallinnas, Tartus, Pärnus ja Kuressaares ning maaklerid
tegutsevad aktiivselt üle Eesti.
Pakume:
- - tasuta konsultatsioon ja hinnang teie kinnisvarale
- - professionaalsed fotod
- - aerofotod ja -videod drooniga
- - korrektsed lepingud
- - õigusabi
- - kolimisteenus





















