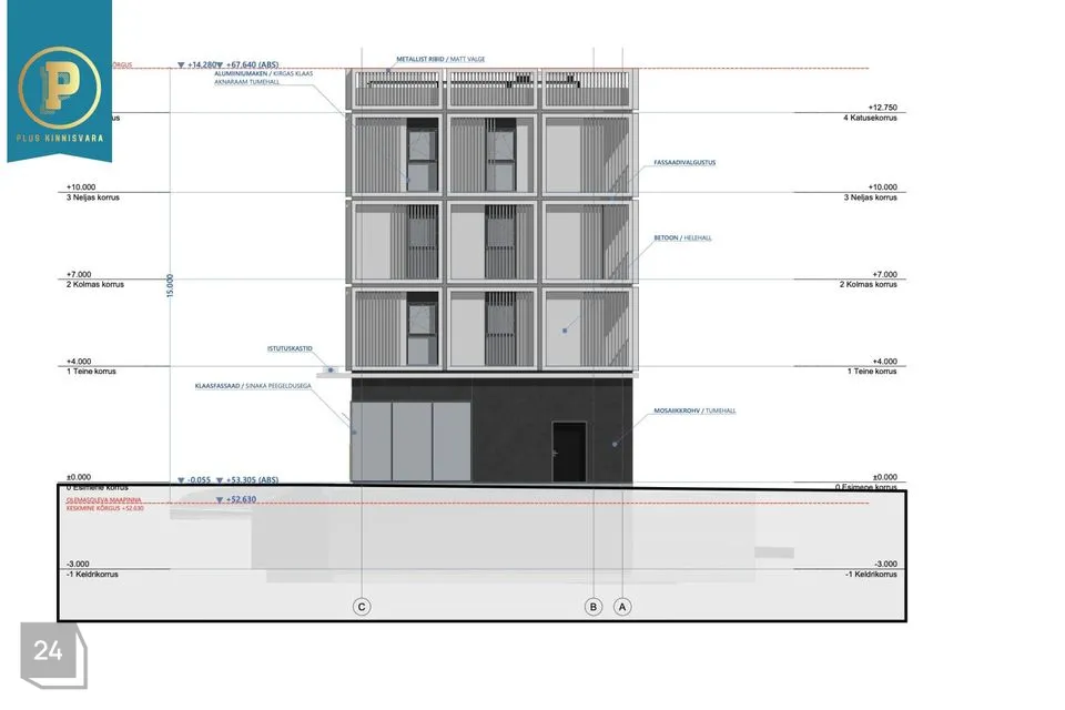
Müüa kehtestatud DP kinnistu, kuhu on planeeritud äri - majutushoone. Pakkumisel on 4 maapealse ja 1 maaaluse korrusega eelrpjekti staatuses kinnistu, mis antakse üle as is. Kinnistul on vee- kanalisatsiooni ja elektriliitumispunktid, aga liitumisi ei ole tehtud. Hoone kütteks peab tulema DP järgi kaugküte.
I-korrusele on projekteeritud toitlustuspind 74 m2;
-I korrusele on paigutatud parkimine 5-le autole + tehnoruumid, rattaparkla;
II - IV korrus on planeeritud igale korrusele 4 väikest ca 26 m2 külaliskorterit (kokku 12 tk), kus igas oma köök, WC ja dušinurk. Hoonel on 2-4 korruse mahus lodžad. Lodžad on standardse suurusega, ca 3 m².
Lodžade seinad on analoogselt teistega kolmekihilisest raudbetoon paneelidest, lagi on
alumiiniumkomposiit plaatidest, põrand on viimistletud kiviplaatidega.
Hoone energiatõhususklass on A ja katusele planeeritud päikesepark.
Pakutava projektiga tutvumiseks lisainformatsiooni saamiseks palun võtke minuga ühendust!
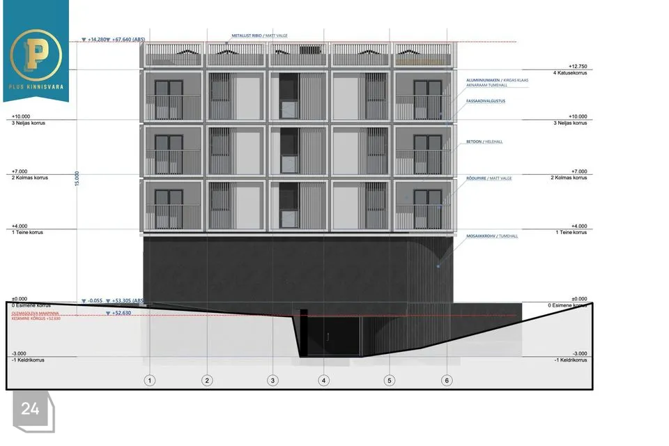
I-korrusele on projekteeritud toitlustuspind 74 m2;
-I korrusele on paigutatud parkimine 5-le autole + tehnoruumid, rattaparkla;
II - IV korrus on planeeritud igale korrusele 4 väikest ca 26 m2 külaliskorterit (kokku 12 tk), kus igas oma köök, WC ja dušinurk. Hoonel on 2-4 korruse mahus lodžad. Lodžad on standardse suurusega, ca 3 m².
Lodžade seinad on analoogselt teistega kolmekihilisest raudbetoon paneelidest, lagi on
alumiiniumkomposiit plaatidest, põrand on viimistletud kiviplaatidega.
Hoone energiatõhususklass on A ja katusele planeeritud päikesepark.
Pakutava projektiga tutvumiseks lisainformatsiooni saamiseks palun võtke minuga ühendust!










