ELAMUMAA
Müüa kauni kõrghaljastusega avar elamumaa krunt Rahumäel, Rahumäe tee 7b.
Kinnistu suuruseks on 1534 m² - paikneb Rahumä tee ning Kitsarööpa tee vahel.
Nõmmele omaselt on tegemist looduskauni ning rohelise kinnistuga, millele
juurdepääs on Rahumäe teelt.
Kinnistu on puhastatud ja ette valmistatud uue hoone rajamiseks.
Hoone kavandatakse paigutada kinnistu keskele, paralleelselt Rahumäe teega.
Kinnistule on võimalik ehitada üks elamu.
Huvi korral on võimalik projektide ning dokumentidega täpsemalt tutvuda.
Ühistranspordipeatused lähedal - nii rong kui ka buss (nr 23).
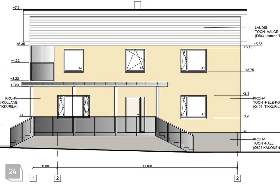
Pildigaleriis on projekteerimistingimuste alusel tehtud projekti asendiplaan ja
maja projekt, et saada ettekujutust majast ja selle paiknemisest. Küsi lisa!
Kommunikatsioonid
Elekter, vee- ja kanalisatsioonitrassi ühenduspunktid on kinnistu lähedal.












