Müüa elamumaa aadressil Suur-Ameerika 33, Tallinna Kesklinnas, Tõnismäe asumis.
Krunt: 682m²
Ümbrus: Üks pealinna tuiksoontest, kus asuvad korterelamud, Superministeerium, saatkonnad, koolid, kultuuri- ja spordikeskused, pargid ning kaubanduskeskused. Jalutuskäigu kaugusel Vanalinn.
Kinnistu on sobilik kaasaegse kuni 5-korruselise mürakindla korruselamu ehitamiseks.
DETAILPLANEERING
Suur-Ameerika tn 33 kinnistule Tallinna Linnavalitsuse otsusega 16.06.2006 kehtestatud detailplaneering nr DP019360.
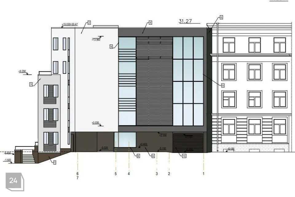
Detailplaneeringu järgi on kavandatud Suur-Ameerika tn.33 kinnistule kuni viiekorruseline, mitme korteriga elamu.
KINNISTU
682 m2 kinnistule on alustavalt planeeritud kuni 5-korruselise elamu maapealne osa ehitusaluse pinnaga 350,0 m2, s.o. täisehitus on 51,5 % ja maa-aluse ehituspinnaga 500,0 m2. Planeeritud brutopind maa peal on 1450,0 m2 ja maa all 500,0 m2. Uuel omanikul on projektlahenduse viimistlemiseks vajalik teha koostööd projekteeriva arhitekti ja linna esindavate arhitektidega.
TEHNOVÕRGUD
Tehnovõrkudest paiknevad Suur-Ameerika tänava alal elektri- ja sidekaabelliinid, ühisveevärgi- ning
kanalisatsioontrassid, sadeveetrass. Kõik trassid paiknevad kinnistu piiri vahetus läheduses.
Tegemist ehitusmaaga ja tehing kuulub kohustuslikus korras käibemaksuga maksustamisele.
MÜÜGIHIND EI SISALDA KÄIBEMAKSU!
Käesoleval hetkel on kinnistu kasutusel parklana.
Foto kuulutuses on illustratiivne.
Helista kohe, küsi lisa ning tule tutvuma!
Krunt: 682m²
Ümbrus: Üks pealinna tuiksoontest, kus asuvad korterelamud, Superministeerium, saatkonnad, koolid, kultuuri- ja spordikeskused, pargid ning kaubanduskeskused. Jalutuskäigu kaugusel Vanalinn.
Kinnistu on sobilik kaasaegse kuni 5-korruselise mürakindla korruselamu ehitamiseks.
DETAILPLANEERING
Suur-Ameerika tn 33 kinnistule Tallinna Linnavalitsuse otsusega 16.06.2006 kehtestatud detailplaneering nr DP019360.
Detailplaneeringu järgi on kavandatud Suur-Ameerika tn.33 kinnistule kuni viiekorruseline, mitme korteriga elamu.
KINNISTU
682 m2 kinnistule on alustavalt planeeritud kuni 5-korruselise elamu maapealne osa ehitusaluse pinnaga 350,0 m2, s.o. täisehitus on 51,5 % ja maa-aluse ehituspinnaga 500,0 m2. Planeeritud brutopind maa peal on 1450,0 m2 ja maa all 500,0 m2. Uuel omanikul on projektlahenduse viimistlemiseks vajalik teha koostööd projekteeriva arhitekti ja linna esindavate arhitektidega.
TEHNOVÕRGUD
Tehnovõrkudest paiknevad Suur-Ameerika tänava alal elektri- ja sidekaabelliinid, ühisveevärgi- ning
kanalisatsioontrassid, sadeveetrass. Kõik trassid paiknevad kinnistu piiri vahetus läheduses.
Tegemist ehitusmaaga ja tehing kuulub kohustuslikus korras käibemaksuga maksustamisele.
MÜÜGIHIND EI SISALDA KÄIBEMAKSU!
Käesoleval hetkel on kinnistu kasutusel parklana.
Foto kuulutuses on illustratiivne.
Helista kohe, küsi lisa ning tule tutvuma!
















