Müüa kehtestatud detailplaneeringuga krunt Luite asumis, kuhu võimalik ehitada 2 paarismaja!
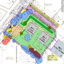
EHITUSVÕIMALUS
*Hoonete suurim lubatud arv krundil: 2
*Planeeritavate hoonete kasutusotstarve on kahe korteriga elamu.
*Hoonete suurim lubatud hoonealune pindala: 400 m² (maapealne), 400 m² (maa-alune)
*Hoonete suurim lubatud kõrgus ABS. h = 38,00 m; arvestatud on asjaolu, et krundi maapinna keskmine ABS kõrgus on 29,0 meetrit.
* Katusekalle: lamekatus (põhikalle 0 kuni 1:10);
* Välisviimistlus: klaaspinnad, puit, betoon- ja/või krohvipinnad; Värvitoonide kasutamisel eelistada põhjamaiseid st. mustaga segatud toone.
* Katusekate: rullmaterjal, betoon, puit, kuumtsingitud metall.
* Stiil: Uushoonestus kavandada arhitektuurselt vormilt ja materjalikäsitluselt kaasaegses arhitektuurikeeles. Üksikhooned modelleerida risttahukaks või vähese liigendusega risttahukaks.
* Piirded: Tänavapoolsete piirete lahendamisel lähtuda ühtse tänavaruumi kujunduspõhimõtetest, kasutada puitlippidest piiret (max kõrgus 1,5m). Kruntide vahelised piirded traatvõrgust (paneelidena, kõrgus kuni 1,5m) või analoogselt tänavapoolsete piiretega, soovitavalt koos hekiga.
KOMMUNIKATSIOONID
Krundil puuduvad liitumised kommunikatsioonidega.
Võimalus liituda tsentraase vee ja kanalisatsiooniga, elektri, gaasi ja Telia sideteenusega.
Piirkonnas ei ole Tallinna kaugkütte trassi. Hoonestuse soojavarustus kujundada maa-soojuspumba, õhk-vesi soojuspumba, päikesepatareide, lokaalse gaasikatla või eelpoolnimetatute kombineerimise baasil.
DETAILPLANEERING
Kogu detailplaneeringu elektroonilised materjalid on leitavad tutvumiseks siit : https://tpr.tallinn.ee/DetailPlanning/Details/DP035480
JUURDEPÄÄS
Sissesõit krundile on Luite tänavalt.
ASUKOHT
Rahulik Luite asum, mis oma nime on saanud Ülemiste järve ümbritsenud luidete järgi. Piirkonnas ei ole suurt häirivat autoliiklust, rahulik elukeskkond! Luite 11a krundi ees on kohe bussipeatus (Auru), Tallinn-Väike rongipeatuseni 500m.
HELISTA ja uuri lisa!
Hea kinnistu Kesklinnas ootab tublit arendajat!
(Hind ei ole seotud käibemaksuga)
EHITUSVÕIMALUS
*Hoonete suurim lubatud arv krundil: 2
*Planeeritavate hoonete kasutusotstarve on kahe korteriga elamu.
*Hoonete suurim lubatud hoonealune pindala: 400 m² (maapealne), 400 m² (maa-alune)
*Hoonete suurim lubatud kõrgus ABS. h = 38,00 m; arvestatud on asjaolu, et krundi maapinna keskmine ABS kõrgus on 29,0 meetrit.
* Katusekalle: lamekatus (põhikalle 0 kuni 1:10);
* Välisviimistlus: klaaspinnad, puit, betoon- ja/või krohvipinnad; Värvitoonide kasutamisel eelistada põhjamaiseid st. mustaga segatud toone.
* Katusekate: rullmaterjal, betoon, puit, kuumtsingitud metall.
* Stiil: Uushoonestus kavandada arhitektuurselt vormilt ja materjalikäsitluselt kaasaegses arhitektuurikeeles. Üksikhooned modelleerida risttahukaks või vähese liigendusega risttahukaks.
* Piirded: Tänavapoolsete piirete lahendamisel lähtuda ühtse tänavaruumi kujunduspõhimõtetest, kasutada puitlippidest piiret (max kõrgus 1,5m). Kruntide vahelised piirded traatvõrgust (paneelidena, kõrgus kuni 1,5m) või analoogselt tänavapoolsete piiretega, soovitavalt koos hekiga.
KOMMUNIKATSIOONID
Krundil puuduvad liitumised kommunikatsioonidega.
Võimalus liituda tsentraase vee ja kanalisatsiooniga, elektri, gaasi ja Telia sideteenusega.
Piirkonnas ei ole Tallinna kaugkütte trassi. Hoonestuse soojavarustus kujundada maa-soojuspumba, õhk-vesi soojuspumba, päikesepatareide, lokaalse gaasikatla või eelpoolnimetatute kombineerimise baasil.
DETAILPLANEERING
Kogu detailplaneeringu elektroonilised materjalid on leitavad tutvumiseks siit : https://tpr.tallinn.ee/DetailPlanning/Details/DP035480
JUURDEPÄÄS
Sissesõit krundile on Luite tänavalt.
ASUKOHT
Rahulik Luite asum, mis oma nime on saanud Ülemiste järve ümbritsenud luidete järgi. Piirkonnas ei ole suurt häirivat autoliiklust, rahulik elukeskkond! Luite 11a krundi ees on kohe bussipeatus (Auru), Tallinn-Väike rongipeatuseni 500m.
HELISTA ja uuri lisa!
Hea kinnistu Kesklinnas ootab tublit arendajat!
(Hind ei ole seotud käibemaksuga)














