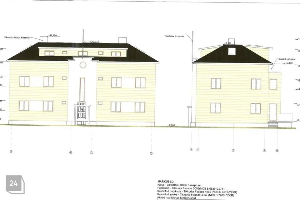
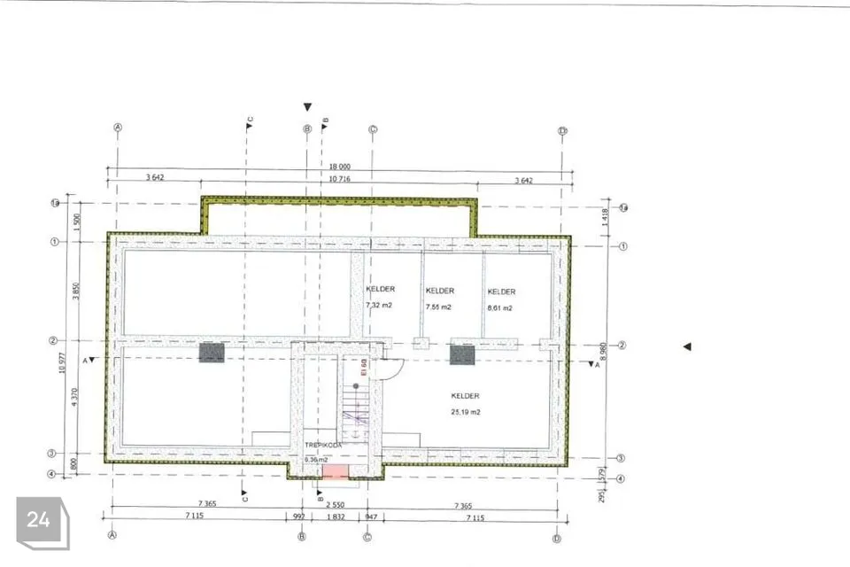
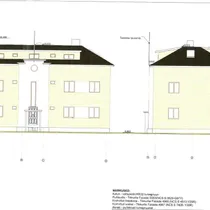
Müügile on tulnud väga hea potentsiaaliga arendusprojekt Nõmmel, Vabaduse pst 33. Tegu on renoveerimist vajava korterelamuga kuhu võimalik ehitada 6 korterit. Maja asub suurel (2556m2) kõrghaljastatud kinnistul, hetkel majas 4 korterit, mis on üürilepingutega kaetud (võimalus kiiresti lõpetada). Ehitusluba väljastatud + tehtud ka ehitamise alustamise teatis.
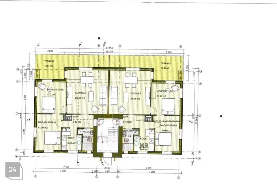
Korter 1:
3-toaline, köetav pind 67.9m2 + terrass 18.9m2, sissepääsukorrus 1.
Korter 2:
3-toaline, köetav pind 67.9m2 + terrass 18.9m2, sissepääsukorrus 1.
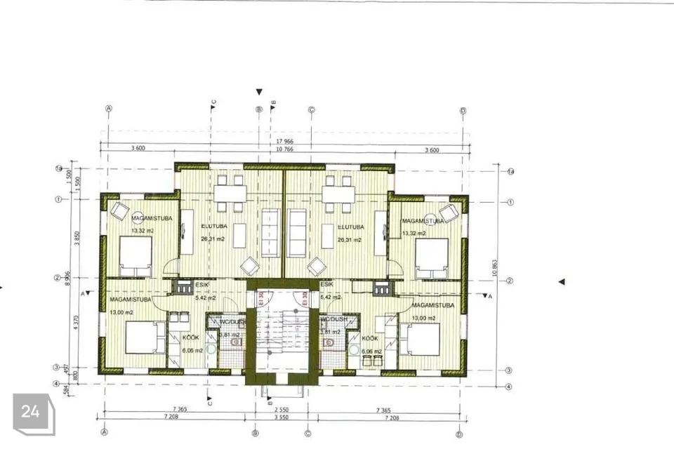
Korter 3:
3-toaline, köetav pind 67.9m2, sissepääsukorrus 2.
Korter 4:
3-toaline, köetav pind 67.9m2, sissepääsukorrus 2.
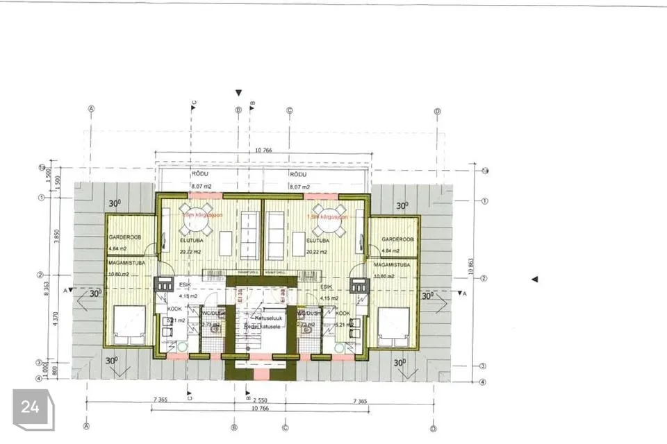
Korter 5:
2.toaline, köetav pind 47.95m2 + rõdu 8.1m2, sissepääsukorrus 3.
Korter 6:
2.toaline, köetav pind 47.95m2 + rõdu 8.1m2, sissepääsukorrus 3.
Lisaks on kinnistule teoreetiline võimalus ehitada eraldiseisev 1-kordne hoone pinnaga ca. 100m2.
Projektis küttelahenduseks planeeritud maaküte, võimalus ka õhk-vesi kütte paigaldamiseks. Igale korterile mõeldud kindel parkimiskoht ja panipaik.
Lisainfo saamiseks võtke minuga ühendust!
Korter 1:
3-toaline, köetav pind 67.9m2 + terrass 18.9m2, sissepääsukorrus 1.
Korter 2:
3-toaline, köetav pind 67.9m2 + terrass 18.9m2, sissepääsukorrus 1.
Korter 3:
3-toaline, köetav pind 67.9m2, sissepääsukorrus 2.
Korter 4:
3-toaline, köetav pind 67.9m2, sissepääsukorrus 2.
Korter 5:
2.toaline, köetav pind 47.95m2 + rõdu 8.1m2, sissepääsukorrus 3.
Korter 6:
2.toaline, köetav pind 47.95m2 + rõdu 8.1m2, sissepääsukorrus 3.
Lisaks on kinnistule teoreetiline võimalus ehitada eraldiseisev 1-kordne hoone pinnaga ca. 100m2.
Projektis küttelahenduseks planeeritud maaküte, võimalus ka õhk-vesi kütte paigaldamiseks. Igale korterile mõeldud kindel parkimiskoht ja panipaik.
Lisainfo saamiseks võtke minuga ühendust!


























