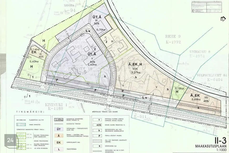
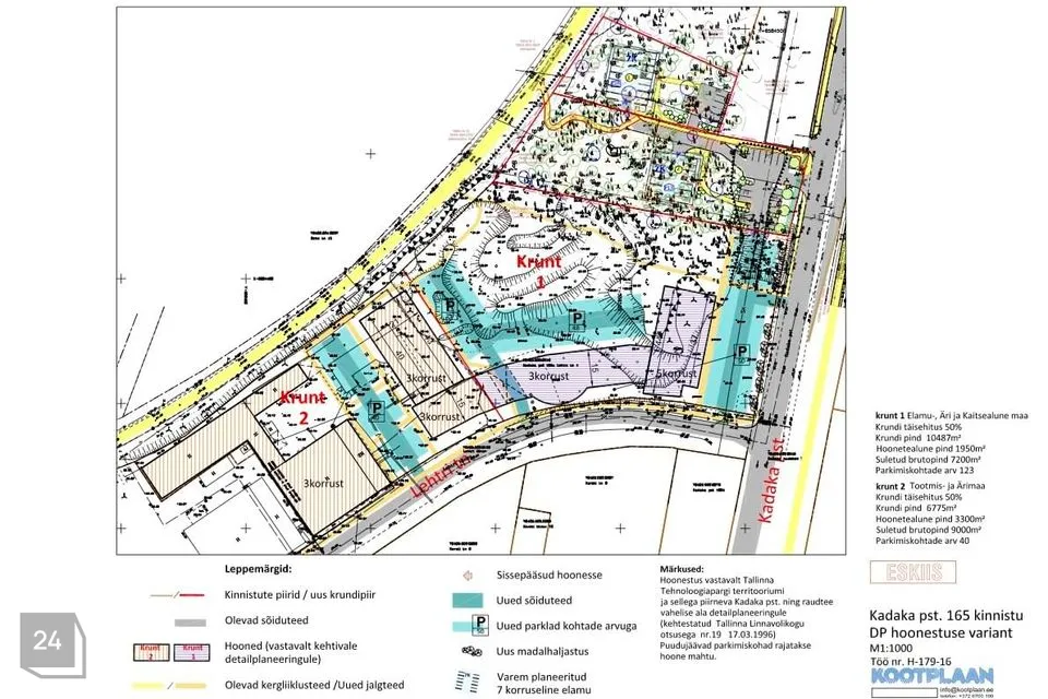
Kadaka pst 165a, Mustamäe, with the new address Lehtri tn 2 // 4. The land to be sold is the part of the property on the side of Kadaka pst, with a size of approx. 10 000 m2. The intended use is elmu-, commercial land. Currently valid building right; building area 1950 m2 closed gross area 7200 m2.
Possibility to initiate new detailed planning.
Large retail chains have expressed interest in renting commercial space on this property.
Possibility to initiate new detailed planning.
Large retail chains have expressed interest in renting commercial space on this property.





