Müüa perspektiivsed elamumaa krundid Alliku külas, Saue vallas.
Krundid asuvad vaid 15 km kaugusel Tallinna kesklinnast ning paiknevad kauni Vääna jõe ääres, kus rannajoone pikkus on 100 meetrit.
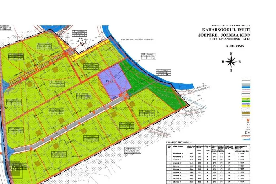
Kinnistu kogupindala on 5,3 hektarit. Olemas on kehtiv detailplaneering (pilt on saadaval).
Saue Vallavalitsusega on kooskõlastatud, kuid veel kinnitamata detailplaneeringu muudatus, mis võimaldab kruntide suurust vähendada.
Hetkel kommunikatsioonid puuduvad.
Katastri tunnused:
72701:002:1546 – 5008 m2
72701:002:1547 – 5815 m2
72701:002:1548 – 5006 m2
72701:002:1549 – 5024 m2
72701:002:1551 – 5007 m2
72701:002:1552 – 5024 m2
72701:002:1553 – 5016 m2
72701:002:1554 – 5001 m2
72701:002:1555 – 3226 m2
72701:002:1556 – 5634 m2
72701:002:1557 – 3533 m2
Müü oma kinnisvara kiiresti ja tulemuslikult, tehes koostööd meie rahvusvahelise Habita Tallinn kinnisvarabürooga.
Meie meeskond koosneb 15+ aastase kinnisvaraalase kogemusega professionaalidest ning me reklaamime kinnisvara nii kohalikul kui rahvusvahelisel turul. Tagame seega Sinu kinnisvaraobjektile maksimaalse katvuse ja nähtavuse, suurendame potentsiaalsete ostjate arvu ja kiirema tehingu tõenäosust.
Võta minuga ühendust kohe, et avastada Habita Tallinna pakutavad võimalused!
Krundid asuvad vaid 15 km kaugusel Tallinna kesklinnast ning paiknevad kauni Vääna jõe ääres, kus rannajoone pikkus on 100 meetrit.
Kinnistu kogupindala on 5,3 hektarit. Olemas on kehtiv detailplaneering (pilt on saadaval).
Saue Vallavalitsusega on kooskõlastatud, kuid veel kinnitamata detailplaneeringu muudatus, mis võimaldab kruntide suurust vähendada.
Hetkel kommunikatsioonid puuduvad.
Katastri tunnused:
72701:002:1546 – 5008 m2
72701:002:1547 – 5815 m2
72701:002:1548 – 5006 m2
72701:002:1549 – 5024 m2
72701:002:1551 – 5007 m2
72701:002:1552 – 5024 m2
72701:002:1553 – 5016 m2
72701:002:1554 – 5001 m2
72701:002:1555 – 3226 m2
72701:002:1556 – 5634 m2
72701:002:1557 – 3533 m2
Müü oma kinnisvara kiiresti ja tulemuslikult, tehes koostööd meie rahvusvahelise Habita Tallinn kinnisvarabürooga.
Meie meeskond koosneb 15+ aastase kinnisvaraalase kogemusega professionaalidest ning me reklaamime kinnisvara nii kohalikul kui rahvusvahelisel turul. Tagame seega Sinu kinnisvaraobjektile maksimaalse katvuse ja nähtavuse, suurendame potentsiaalsete ostjate arvu ja kiirema tehingu tõenäosust.
Võta minuga ühendust kohe, et avastada Habita Tallinna pakutavad võimalused!






