Müüa EHITUSLOA ja PROJEKTIGA elamumaa Saue linna lähistel, Jõgisoo külas, Sepametsa tee 6
Kuulutusele on lisatud 3D pildid, mis annavad parema ülevaate planeeritud elamust ning milline see võiks olla valmis kujul!
Müüdav elamumaa asub Saue linna piirist ca 2 km ja Tallinna piirist ca 9 km kaugusel.
Kinnistul on olemas kehtiv detailplaneering, mille kohaselt on lubatud ehitada eluhoone põhjapindalaga kuni 250 m2, maksimaalselt 2-korrust, kõrgusega kuni 9 meetrit katuseharjani ja kõrvalhoone pindalaga kuni 100 m2 ja kõrgusega kuni 4 meetrit.
Detailplaneeringu ja ehitusloa järgi on uue elamu ehitusala Sepametsa tee ääres ning kõrghaljastus mis jääb Kanama-Jõgisoo tee äärde võtab kenasti teemüra ära ning jätab piisavalt privaatse sisehoovi.
Kinnistule on väljastatud ehitusluba üksikelamu püstitamiseks, mille andmed on järgnevad:
Ehitusalune pind – 244,3 m2
Köetav pind ja suletud netopind – 131,2 m2
Maapealsete korruste arv – 1
Tubade arv - 5
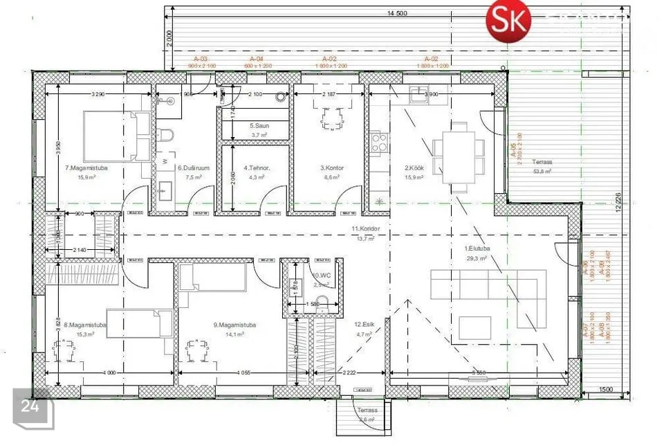
Kuulutuses olevad 3D pildid on näitlikud ning korruse plaan õige.
Kinnistul kasvavad männid, kadakad, leht- ja okaspuud.
Müügihind sisaldab lisaks ehitusloale ja projektile liitumisi:
- Veetrass (tsentraalne vesi, olemas pumpla ja veetrass viidud kinnistu piirile)
- Elektriliitumist (elektrikilp kinnistu piiril, võimsust 3 x 6A, võimalus võimsust juurde osta)
- Juurdepääsu kinnistule (tolmuvaba kattega tee)
- Valguskaabel kinnistu piiril
Kanalisatsioon tuleb rajada lokaalselt kogumismahuti näol.
Tule kindlasti kinnistuga tutvuma!
Lisainfo ja täpsem ülevaade eelneval kokkuleppel kohapeal.
Kuulutusele on lisatud 3D pildid, mis annavad parema ülevaate planeeritud elamust ning milline see võiks olla valmis kujul!
Müüdav elamumaa asub Saue linna piirist ca 2 km ja Tallinna piirist ca 9 km kaugusel.
Kinnistul on olemas kehtiv detailplaneering, mille kohaselt on lubatud ehitada eluhoone põhjapindalaga kuni 250 m2, maksimaalselt 2-korrust, kõrgusega kuni 9 meetrit katuseharjani ja kõrvalhoone pindalaga kuni 100 m2 ja kõrgusega kuni 4 meetrit.
Detailplaneeringu ja ehitusloa järgi on uue elamu ehitusala Sepametsa tee ääres ning kõrghaljastus mis jääb Kanama-Jõgisoo tee äärde võtab kenasti teemüra ära ning jätab piisavalt privaatse sisehoovi.
Kinnistule on väljastatud ehitusluba üksikelamu püstitamiseks, mille andmed on järgnevad:
Ehitusalune pind – 244,3 m2
Köetav pind ja suletud netopind – 131,2 m2
Maapealsete korruste arv – 1
Tubade arv - 5
Kuulutuses olevad 3D pildid on näitlikud ning korruse plaan õige.
Kinnistul kasvavad männid, kadakad, leht- ja okaspuud.
Müügihind sisaldab lisaks ehitusloale ja projektile liitumisi:
- Veetrass (tsentraalne vesi, olemas pumpla ja veetrass viidud kinnistu piirile)
- Elektriliitumist (elektrikilp kinnistu piiril, võimsust 3 x 6A, võimalus võimsust juurde osta)
- Juurdepääsu kinnistule (tolmuvaba kattega tee)
- Valguskaabel kinnistu piiril
Kanalisatsioon tuleb rajada lokaalselt kogumismahuti näol.
Tule kindlasti kinnistuga tutvuma!
Lisainfo ja täpsem ülevaade eelneval kokkuleppel kohapeal.

































