Müüa arenduseks valmis krundid Jälgimäe külas, Saku vallas
Pakume müügiks Tallinna piiril asuvaid arenduseks valmis krunte Jälgimäe külas, Saku vallas. Tallinna kesklinn on ca 20 km ja Saue keskus vaid 2 km kaugusel.
Krundid asuvad rahulikus, loodusrikkas ja turvalises piirkonnas – ideaalne koht, kus majaomanikud saavad puhata ja nautida linna müravaba keskkonda. Kinnistu asetus ilmakaarte suhtes annab vabaduse projekteerida maju nii, et näiteks elutoa terrass oleks päikesepoolne hommikust õhtuni.
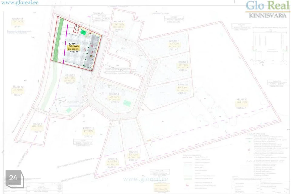
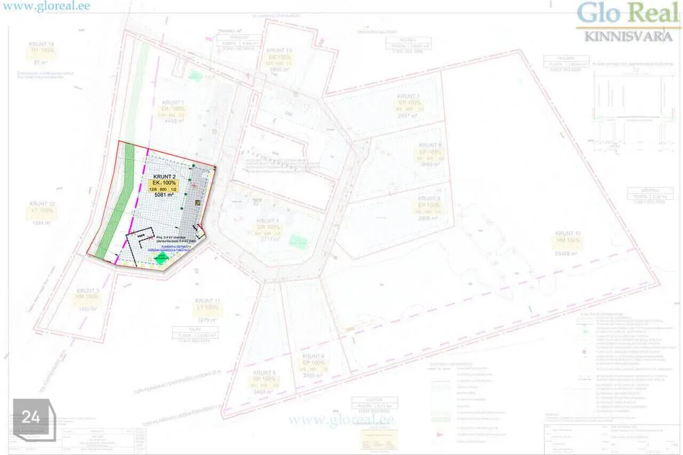
Kõik arendatavad krundid on elamumaa sihtotstarbega (100%) ja detailplaneering kehtestatud juulis 2016. Kommunikatsioonid on välja ehitamata, kuid projektid infrastruktuuri väljaehitamiseks on valmis ning ehitisregistris menetlemisel. Vallaga tuleb sõlmida haldusleping infrastruktuuri rajamiseks.
Hetkel on võimalik välja arendada 8 krunti, kogupind 24 511 m²:
- 5 eramu krunti: suurim lubatud ehitusalune pind 480 m², hoone arv 1 + abihooneid 2, maksimaalne kõrgus 9 m (abihoone 6 m)
- 1 krunt kolmekorterilise ridaelamu jaoks: suurim lubatud ehitusalune pind 540 m², kuni 3 korterit
- 2 krunti kahekorruselise kortermaja jaoks: suurim lubatud ehitusalune pind 800 m², hoone arv 1 + abihooneid 2, maksimaalne kõrgus 12 m (abihoone 6 m)
Projekt asub täpselt Laagri, Saue ja Saku vahel. Tallinna ringtee ja Pärnu maantee lähedus tagab mugava ühenduse igasse Tallinna linnaossa.
See võib olla sinu tuleviku kodu või tulus arendusprojekt!
Hea elukeskkond ja soodne asukoht on muutnud Saku valla populaarseks elupaigaks. Lähim bussipeatus on vaid mõnesaja meetri kaugusel, koolibuss viib igapäevaselt lapsi Saku Gümnaasiumisse. 4 km kaugusel Sakus on kõik eluks vajalik olemas (koolid, lasteaed, kauplused, spordihooned, vallamaja, bensiinijaamad jne).
Hinnale lisandub käibemaks.
Võta ühendust ja broneeri aeg krundi külastamiseks!
Pakume müügiks Tallinna piiril asuvaid arenduseks valmis krunte Jälgimäe külas, Saku vallas. Tallinna kesklinn on ca 20 km ja Saue keskus vaid 2 km kaugusel.
Krundid asuvad rahulikus, loodusrikkas ja turvalises piirkonnas – ideaalne koht, kus majaomanikud saavad puhata ja nautida linna müravaba keskkonda. Kinnistu asetus ilmakaarte suhtes annab vabaduse projekteerida maju nii, et näiteks elutoa terrass oleks päikesepoolne hommikust õhtuni.
Kõik arendatavad krundid on elamumaa sihtotstarbega (100%) ja detailplaneering kehtestatud juulis 2016. Kommunikatsioonid on välja ehitamata, kuid projektid infrastruktuuri väljaehitamiseks on valmis ning ehitisregistris menetlemisel. Vallaga tuleb sõlmida haldusleping infrastruktuuri rajamiseks.
Hetkel on võimalik välja arendada 8 krunti, kogupind 24 511 m²:
- 5 eramu krunti: suurim lubatud ehitusalune pind 480 m², hoone arv 1 + abihooneid 2, maksimaalne kõrgus 9 m (abihoone 6 m)
- 1 krunt kolmekorterilise ridaelamu jaoks: suurim lubatud ehitusalune pind 540 m², kuni 3 korterit
- 2 krunti kahekorruselise kortermaja jaoks: suurim lubatud ehitusalune pind 800 m², hoone arv 1 + abihooneid 2, maksimaalne kõrgus 12 m (abihoone 6 m)
Projekt asub täpselt Laagri, Saue ja Saku vahel. Tallinna ringtee ja Pärnu maantee lähedus tagab mugava ühenduse igasse Tallinna linnaossa.
See võib olla sinu tuleviku kodu või tulus arendusprojekt!
Hea elukeskkond ja soodne asukoht on muutnud Saku valla populaarseks elupaigaks. Lähim bussipeatus on vaid mõnesaja meetri kaugusel, koolibuss viib igapäevaselt lapsi Saku Gümnaasiumisse. 4 km kaugusel Sakus on kõik eluks vajalik olemas (koolid, lasteaed, kauplused, spordihooned, vallamaja, bensiinijaamad jne).
Hinnale lisandub käibemaks.
Võta ühendust ja broneeri aeg krundi külastamiseks!

































