Müüa elamumaa kinnistu 2007 aastal pooleli jäänud arenduses.
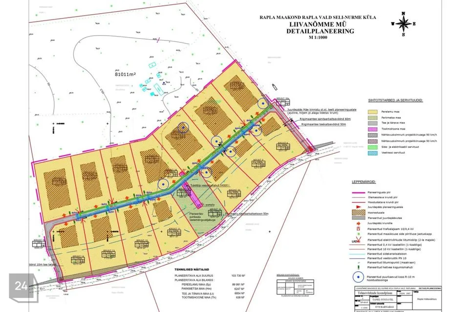
Piirkonnas on planeeritud 14 elamumaa kinnistut, lisaks puurkaevu kinnistu, ja planeeritav puhkeala vänguväljakuga. Kehtestatud detailplaneering. Tee on välja ehitamata piirkonnas. Puurkaev on rajatud. Vaatamata sellele on piirkonnas kahel kinnistul hoone, väike ehitis, mis ei vaja luba.
JUURDEPÄÄSU TEE
Juurdepääsu tee on eraomandis, ehk 6 eraisiku ühis ja kaasomandis. Juurdepääsu teelt on pealt kooritud pinnas, ehk kinnistuni võimalik sõita mõõda paekivi pinda ja pinnase teed. Tee on tugev. Aga talvisel ajal ei hoolda seda keegi, ja siis tõenäoliselt kinnistuni juurdepääsu pole. Juurdepääsu tee oli planeeritud kruusakattega.
HOONESTUSTINGIMUSED DETAILPLANEERINGU KOHASELT
Krundi suurus m²- 5824m2
Ehitusalune pind m² - 500m2
Max korruselisus - 1,5
Hoonete arv krundil - 2
Hoone max kõrgus - 9m
Abihoone max kõrgus - 7m
Katuse kalle - 25º-50º
Katuse harja suund - Risti või paralleelselt tänavaga
Tulepüsivusklass - TP3
Viimistlusmaterjalid ja piirded - Puit, kivi, krohv. Piirdehekk, looduslik kiviaed ja puitaed h max 1,5m
Kütte lahendab krundiaomanik individuaalse küttekolde või elektrienergia baasil.
Kogumismahuti suurus on soovituslikult 10 000 l, mis eeldab tühjendusintervalli 20-30 päeva tagant.
Sadeveed immutatakse kinnistu piires murupindadele
Piirkonna veeallikaks on puurkaev, mis on rajatud. Piirkonnas üks kinnistu, millel asub kergehitis, on voolikuga suvise maapealse ühenduse enda ehitiseni loonud.
ELEKTRIVARUSTUS
Piirkonda on rajatud uus alajaam. Müüdavale kinnistule ei ole tehtud elektriliitumist ega elektri kilpi. Liitumine on võimalik ampritasu põhiselt. Amper maksab 410,63€ X näiteks 20A=8 206€, millele lisandub menetlustasu 101,90€=8 307,90€. 25A vastavalt seega 10 367,65€.
HALJASTUS
Krundi suurus 5824m2, millest metsamaa 5721m2. Kinnistul kasvavad kõrged ja suured puud - kuusk, kask, mänd, tamm, vaher, ehk hoonestusala puhastamisel saab korraliku küttepuude varu. Kinnistu on tasapinnaline ja neljakandiline.
Haljastuses tuleb säilitada maksimaalselt olemasolev kõrghaljastus. Hoonestuse iseloomust ja
asukohast lähtuvalt oleksid aiakujunduslahendused looduslähedased (maakivid, puidust
piirded või hekk jne).
Juurdeistutatav perspektiivne kõrghaljastus ei tohi varjata naaberkrunte päikesevalguse eest.
Prügikonteinerid on kohustuslikud igal individuaalelamu krundil võimalikult sissepääsu lähedal, et tagada äravedu.
Parkimine on lahendatud krundisiseselt
Piirkonda oli planeeritud tuletõrje veevõtu mahuti 54 000l. Tõenäoliselt ei ole seda rajatud. Lisaks on 2,5 km raadiuses veel 2 tuletõrje veevõtukohta, üks SeliKoigi ja teine Suislepa suunas.
INFRASTRUKTUUR JA PIIRKOND
Bussipeatus Raka 3km kaugusel, kus sõidavad Raplamaa bussid marsuudil Ohulepa-Kodila-.Alu-Rapla raudteejaam, ja Kohila-Hageri-Karumaa-Alu-Rpla. Lähim kaupslus Hagudi Coopi kauplus 6,3km kaugusel.
Piirkonnas on väga seene ja marja rohked metsad. Jahipiirkond ja jääb hundiohjamise alale.
Huvi korral annan meeleldi lisainfot!
Piirkonnas on planeeritud 14 elamumaa kinnistut, lisaks puurkaevu kinnistu, ja planeeritav puhkeala vänguväljakuga. Kehtestatud detailplaneering. Tee on välja ehitamata piirkonnas. Puurkaev on rajatud. Vaatamata sellele on piirkonnas kahel kinnistul hoone, väike ehitis, mis ei vaja luba.
JUURDEPÄÄSU TEE
Juurdepääsu tee on eraomandis, ehk 6 eraisiku ühis ja kaasomandis. Juurdepääsu teelt on pealt kooritud pinnas, ehk kinnistuni võimalik sõita mõõda paekivi pinda ja pinnase teed. Tee on tugev. Aga talvisel ajal ei hoolda seda keegi, ja siis tõenäoliselt kinnistuni juurdepääsu pole. Juurdepääsu tee oli planeeritud kruusakattega.
HOONESTUSTINGIMUSED DETAILPLANEERINGU KOHASELT
Krundi suurus m²- 5824m2
Ehitusalune pind m² - 500m2
Max korruselisus - 1,5
Hoonete arv krundil - 2
Hoone max kõrgus - 9m
Abihoone max kõrgus - 7m
Katuse kalle - 25º-50º
Katuse harja suund - Risti või paralleelselt tänavaga
Tulepüsivusklass - TP3
Viimistlusmaterjalid ja piirded - Puit, kivi, krohv. Piirdehekk, looduslik kiviaed ja puitaed h max 1,5m
Kütte lahendab krundiaomanik individuaalse küttekolde või elektrienergia baasil.
Kogumismahuti suurus on soovituslikult 10 000 l, mis eeldab tühjendusintervalli 20-30 päeva tagant.
Sadeveed immutatakse kinnistu piires murupindadele
Piirkonna veeallikaks on puurkaev, mis on rajatud. Piirkonnas üks kinnistu, millel asub kergehitis, on voolikuga suvise maapealse ühenduse enda ehitiseni loonud.
ELEKTRIVARUSTUS
Piirkonda on rajatud uus alajaam. Müüdavale kinnistule ei ole tehtud elektriliitumist ega elektri kilpi. Liitumine on võimalik ampritasu põhiselt. Amper maksab 410,63€ X näiteks 20A=8 206€, millele lisandub menetlustasu 101,90€=8 307,90€. 25A vastavalt seega 10 367,65€.
HALJASTUS
Krundi suurus 5824m2, millest metsamaa 5721m2. Kinnistul kasvavad kõrged ja suured puud - kuusk, kask, mänd, tamm, vaher, ehk hoonestusala puhastamisel saab korraliku küttepuude varu. Kinnistu on tasapinnaline ja neljakandiline.
Haljastuses tuleb säilitada maksimaalselt olemasolev kõrghaljastus. Hoonestuse iseloomust ja
asukohast lähtuvalt oleksid aiakujunduslahendused looduslähedased (maakivid, puidust
piirded või hekk jne).
Juurdeistutatav perspektiivne kõrghaljastus ei tohi varjata naaberkrunte päikesevalguse eest.
Prügikonteinerid on kohustuslikud igal individuaalelamu krundil võimalikult sissepääsu lähedal, et tagada äravedu.
Parkimine on lahendatud krundisiseselt
Piirkonda oli planeeritud tuletõrje veevõtu mahuti 54 000l. Tõenäoliselt ei ole seda rajatud. Lisaks on 2,5 km raadiuses veel 2 tuletõrje veevõtukohta, üks SeliKoigi ja teine Suislepa suunas.
INFRASTRUKTUUR JA PIIRKOND
Bussipeatus Raka 3km kaugusel, kus sõidavad Raplamaa bussid marsuudil Ohulepa-Kodila-.Alu-Rapla raudteejaam, ja Kohila-Hageri-Karumaa-Alu-Rpla. Lähim kaupslus Hagudi Coopi kauplus 6,3km kaugusel.
Piirkonnas on väga seene ja marja rohked metsad. Jahipiirkond ja jääb hundiohjamise alale.
Huvi korral annan meeleldi lisainfot!


























