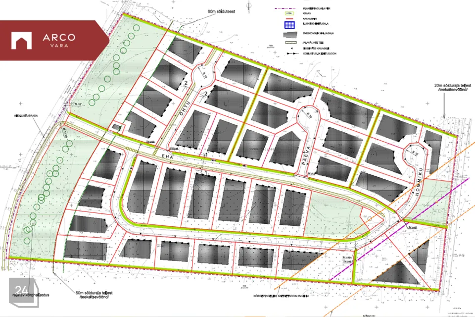
According to the detailed plan, 36 residential land plots have been formed. Residential land plots range in size from 1206 - 2506 m².
Building Rights for Plots.
Each residential plot allows for the construction of two buildings. One single-family house and one auxiliary building. The plot coverage percentage is 11-20%, depending on the plot size. The maximum permitted height of a single-family house from the designed ground level is 9 m. Two floors are allowed for the single-family house. The maximum permitted height of the auxiliary building is 6 m. One floor is permitted for the auxiliary building. The residential house will have a single-sided or double-sided gable roof solution.
Water supply and sewerage are planned through the centralized water and sewage system. Production land plots are designated for the construction of a sewage pumping station and an electricity substation. Four plots of public land are planned for the creation of green areas.
Building Rights for Plots.
Each residential plot allows for the construction of two buildings. One single-family house and one auxiliary building. The plot coverage percentage is 11-20%, depending on the plot size. The maximum permitted height of a single-family house from the designed ground level is 9 m. Two floors are allowed for the single-family house. The maximum permitted height of the auxiliary building is 6 m. One floor is permitted for the auxiliary building. The residential house will have a single-sided or double-sided gable roof solution.
Water supply and sewerage are planned through the centralized water and sewage system. Production land plots are designated for the construction of a sewage pumping station and an electricity substation. Four plots of public land are planned for the creation of green areas.
















