Mere lähedal asuv ehitusvalmis kinnistu – kommunikatsioonid olemas, hea infrastruktuur
Müüa kinnistu looduskaunis ja rahulikus piirkonnas, vaid lühikese jalutuskäigu kaugusel merest!
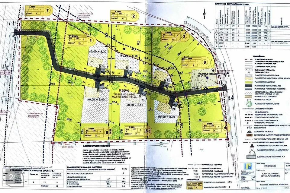
KRUNT
Krundi piirini viib freesasfaldiga kaetud tee ning kõik peamised kommunikatsioonid on juba olemas:
Elektriliitumine (20 A)
Vee liitumispunkt (5 krundi peale on ühine puurkaev ja veeühendus on juba krundile veetud)
Paigaldatud septik
Detailplaneeringu alusel saab krundile ehitada kaks hoonet max ehitusalusepinnaga 150ruutmeetrit.
Kinnistu on ümbritsetud elupuudega, mis tagavad privaatsuse, ning hoovis kasvavad juba viljapuud. Krundil ei ole ehitust alustatud – see annab võimaluse rajada kodu vastavalt oma soovidele.
PIIRKOND
Lähim kool ja lasteaed asuvad Padisel, ca 3 km kaugusel – Padise Põhikool ja Lasteaed.
Alternatiivina on saadaval Laulasmaa Kool ja Lasteaed, umbes 12 km kaugusel.
Igapäevaostudeks sobib hästi Padise kohalik pood (u 3 km), suurema valikuga Laulasmaa Selver jääb ligikaudu 12 km kaugusele.
Ühistransport on hästi korraldatud: Madise küla ääres paiknevast Hobuse bussipeatusest väljub buss nr 146, mis viib otse Paldiski suunas.
Lisaks on ca 6,5 km kaugusel Põllküla rongipeatus, mis pakub ühendust Tallinna ja teiste suuremate keskustega
Madise küla võlub oma looduslähedase keskkonnaga, olles samal ajal piisavalt lähedal igapäevaeluks vajalikele teenustele. Meri, rohelus ja rahu teevad sellest piirkonnast suurepärase paiga nii aastaringseks elamiseks kui ka suvekoduks.
Küsi lisa ja tule tutvuma – sinu uus algus võib alata just siit.
Müüa kinnistu looduskaunis ja rahulikus piirkonnas, vaid lühikese jalutuskäigu kaugusel merest!
KRUNT
Krundi piirini viib freesasfaldiga kaetud tee ning kõik peamised kommunikatsioonid on juba olemas:
Elektriliitumine (20 A)
Vee liitumispunkt (5 krundi peale on ühine puurkaev ja veeühendus on juba krundile veetud)
Paigaldatud septik
Detailplaneeringu alusel saab krundile ehitada kaks hoonet max ehitusalusepinnaga 150ruutmeetrit.
Kinnistu on ümbritsetud elupuudega, mis tagavad privaatsuse, ning hoovis kasvavad juba viljapuud. Krundil ei ole ehitust alustatud – see annab võimaluse rajada kodu vastavalt oma soovidele.
PIIRKOND
Lähim kool ja lasteaed asuvad Padisel, ca 3 km kaugusel – Padise Põhikool ja Lasteaed.
Alternatiivina on saadaval Laulasmaa Kool ja Lasteaed, umbes 12 km kaugusel.
Igapäevaostudeks sobib hästi Padise kohalik pood (u 3 km), suurema valikuga Laulasmaa Selver jääb ligikaudu 12 km kaugusele.
Ühistransport on hästi korraldatud: Madise küla ääres paiknevast Hobuse bussipeatusest väljub buss nr 146, mis viib otse Paldiski suunas.
Lisaks on ca 6,5 km kaugusel Põllküla rongipeatus, mis pakub ühendust Tallinna ja teiste suuremate keskustega
Madise küla võlub oma looduslähedase keskkonnaga, olles samal ajal piisavalt lähedal igapäevaeluks vajalikele teenustele. Meri, rohelus ja rahu teevad sellest piirkonnast suurepärase paiga nii aastaringseks elamiseks kui ka suvekoduks.
Küsi lisa ja tule tutvuma – sinu uus algus võib alata just siit.











