Müüa arendusvalmis kinnistu Kose veskijärve kaldal – ehitusloaga 33 korteriga korterelamu jaoks!
Eksklusiivne võimalus soetada kinnistu Kose hinnatud piirkonnas, kus on kehtiv ehitusluba väljastatud ja kinnistu haljastus tööd juba tehtud!
• Asukoht: Ravila mnt 12, Kose alevik
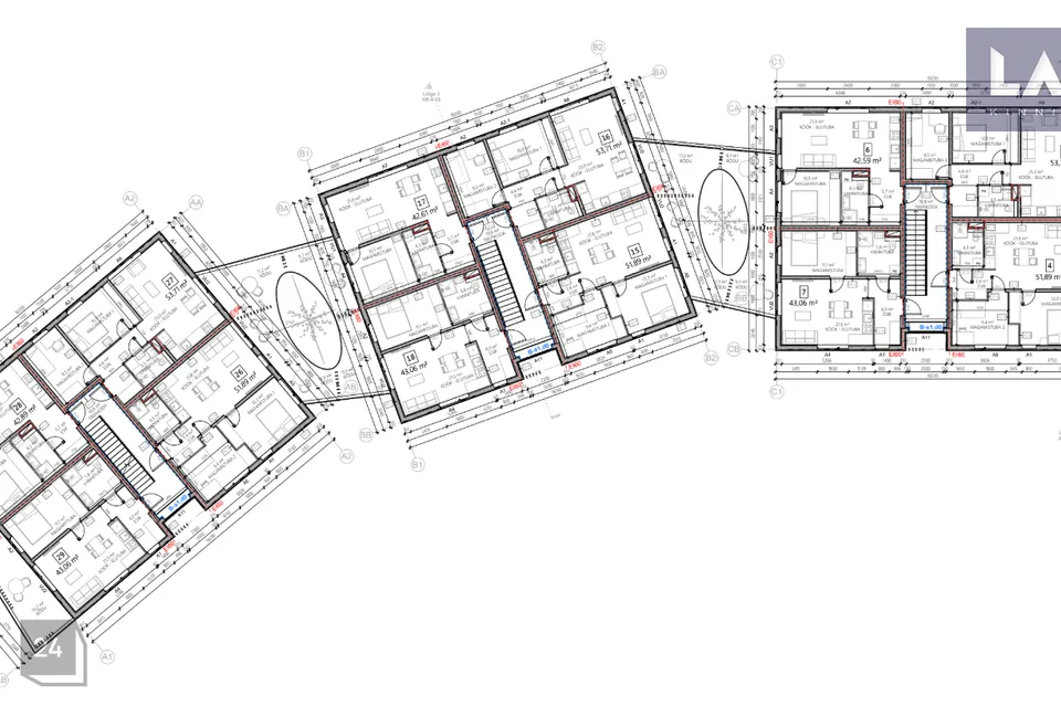
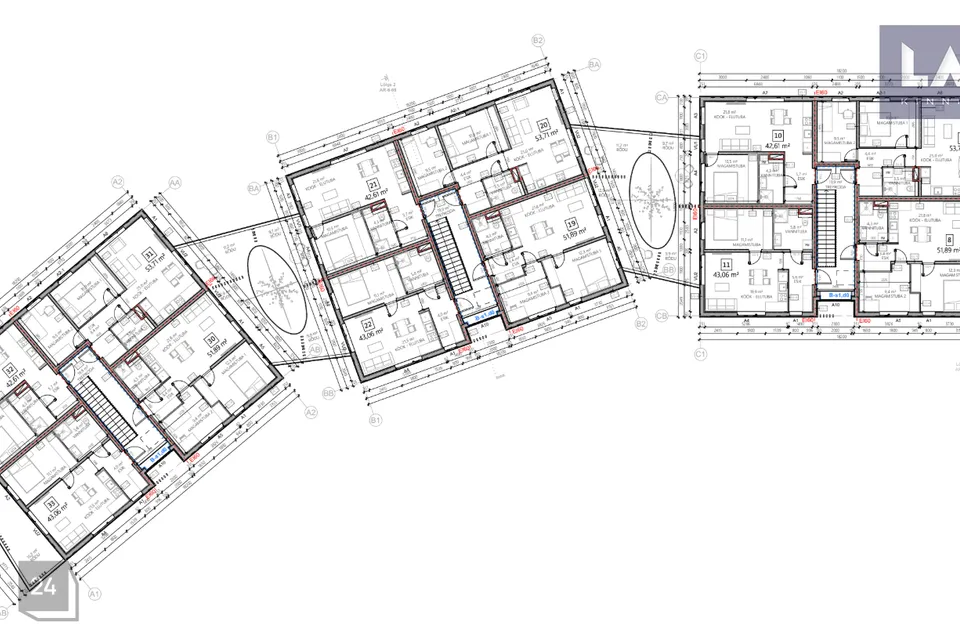
• Kinnistu otstarve: Elamumaa, korterelamu rajamiseks (33 korteriga)
• Kaasa kuuluvad dokumendid:
- Ehitusloa projekt, konstruktiivne projekt ja eriosade projektid
- Sisearhitektuurne projekt
Tegemist on ainsa järvekaldal oleva korterelamu ehitusloaga Kosel mille valmimist ootavad mitmed kohalikud korterite ostuhuvilist. Ehitusõiguse annab värskelt kehtestatud detailplaneeringu järgselt väljastatud ehitusluba.
• Valmidus ehituseks - arendajale ideaalne kinnistu, kus alustada viivitamatult ehitusega. Üle jõe naaber on vallale esitanud vaide detailplaneeringu osas ning selle osas palun saatke päring lisainfo saamiseks.
• Müügihind: 950 000 € +km
Huvi korral võtke ühendust, et tutvuda dokumentatsiooniga ning leppida kokku kohtumine kinnistul!
Eksklusiivne võimalus soetada kinnistu Kose hinnatud piirkonnas, kus on kehtiv ehitusluba väljastatud ja kinnistu haljastus tööd juba tehtud!
• Asukoht: Ravila mnt 12, Kose alevik
• Kinnistu otstarve: Elamumaa, korterelamu rajamiseks (33 korteriga)
• Kaasa kuuluvad dokumendid:
- Ehitusloa projekt, konstruktiivne projekt ja eriosade projektid
- Sisearhitektuurne projekt
Tegemist on ainsa järvekaldal oleva korterelamu ehitusloaga Kosel mille valmimist ootavad mitmed kohalikud korterite ostuhuvilist. Ehitusõiguse annab värskelt kehtestatud detailplaneeringu järgselt väljastatud ehitusluba.
• Valmidus ehituseks - arendajale ideaalne kinnistu, kus alustada viivitamatult ehitusega. Üle jõe naaber on vallale esitanud vaide detailplaneeringu osas ning selle osas palun saatke päring lisainfo saamiseks.
• Müügihind: 950 000 € +km
Huvi korral võtke ühendust, et tutvuda dokumentatsiooniga ning leppida kokku kohtumine kinnistul!














