Müüa privaatne ja suurem üksikelamu krunt uues, metsade vahel asuvas looduskaunis Kureoja elurajoonis.
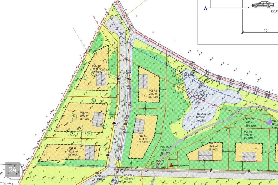
Müüdav elamumaa asub Kureoja arenduse tagumises osas, tupiktänaval ja on tänava eelviimane kinnistu.
Lähedal paikneb kaks tiiki, mis on Üldkasutatav maa ning millele on elanikel juurdepääs
Olemas tänavalgustus, vee ja kanalisatsiooni ning elektri liitumised.
DP kohaselt on ehitatava eluhoone ehitusalune pind 250 m2 ja abihoone 50m2.
Põhihoone lubatud max kõrgus 8,5 m (2 korrust) ja abihoonel 5m, katusekalle 35-45
Hind sisaldab:
Kinnistu
Elekter 3x16A
Vesi- ja kanal (Emajōe Veevärk)
Side kaabli paigadamise valmidus
Tänavavalgustus
Asfalteeritud teed
Hind sisaldab käibemaksu.
Tartu linna piir ca 8 km kaugusel.
Müüdav elamumaa asub Kureoja arenduse tagumises osas, tupiktänaval ja on tänava eelviimane kinnistu.
Lähedal paikneb kaks tiiki, mis on Üldkasutatav maa ning millele on elanikel juurdepääs
Olemas tänavalgustus, vee ja kanalisatsiooni ning elektri liitumised.
DP kohaselt on ehitatava eluhoone ehitusalune pind 250 m2 ja abihoone 50m2.
Põhihoone lubatud max kõrgus 8,5 m (2 korrust) ja abihoonel 5m, katusekalle 35-45
Hind sisaldab:
Kinnistu
Elekter 3x16A
Vesi- ja kanal (Emajōe Veevärk)
Side kaabli paigadamise valmidus
Tänavavalgustus
Asfalteeritud teed
Hind sisaldab käibemaksu.
Tartu linna piir ca 8 km kaugusel.















