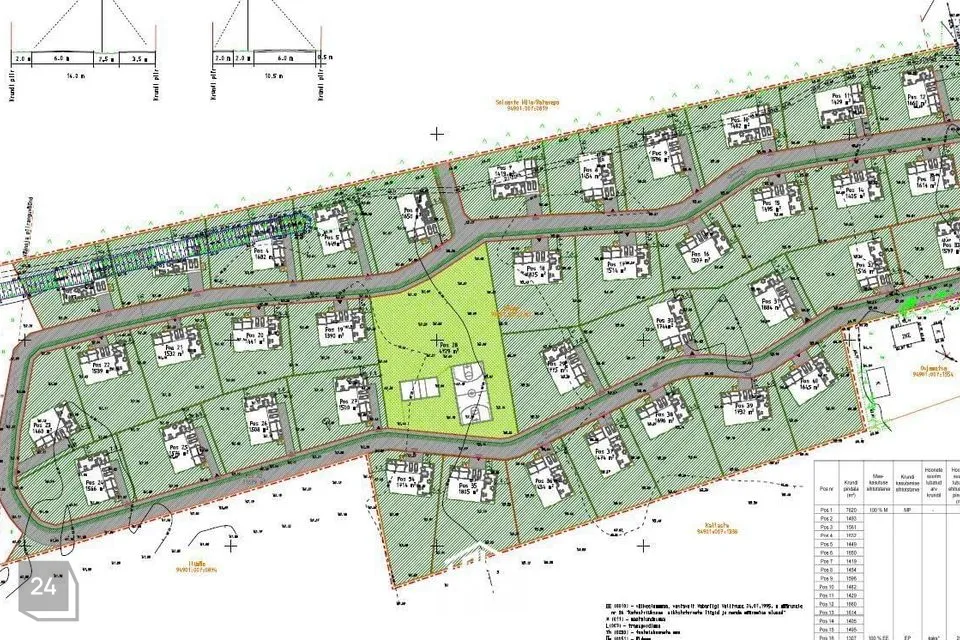
Müüa kehtiva detailplaneeringuga alal ühtekokku 26 elamukrunti! Kinnistu on osaliselt kõrghaljastatud ning piirneb läänest Väänojaga!
Täpseks pildi- ja infomaterjaliks küsi lisa! Krundid alates 1400-1800 m2.
Lubatud on ehitada ehitisealuse pinnaga 250 m2, elamu + üks abihoone. Elamu korruselisus kuni 2.
Elektriliitumine vastavalt ampritasu hinnakirjale.
Tõrvandi ja Soinaste näol on vaieldamatult tegu eelistatud elamupiirkonnaga ning välja on kujunenud terviklik infrastruktuur. Müüdava kinnistu läheduses kergliiklusteed, spordirajatised, Tõrvandi terviserajad ja parkmets.
Täpseks pildi- ja infomaterjaliks küsi lisa! Krundid alates 1400-1800 m2.
Lubatud on ehitada ehitisealuse pinnaga 250 m2, elamu + üks abihoone. Elamu korruselisus kuni 2.
Elektriliitumine vastavalt ampritasu hinnakirjale.
Tõrvandi ja Soinaste näol on vaieldamatult tegu eelistatud elamupiirkonnaga ning välja on kujunenud terviklik infrastruktuur. Müüdava kinnistu läheduses kergliiklusteed, spordirajatised, Tõrvandi terviserajad ja parkmets.
Kinnisvara hindamine ja kinnisvara müük Lahe Kinnisvara kutselistelt hindajatelt ja maakleritel, kes on pälvinud klientide kõrge tunnustuse!
















