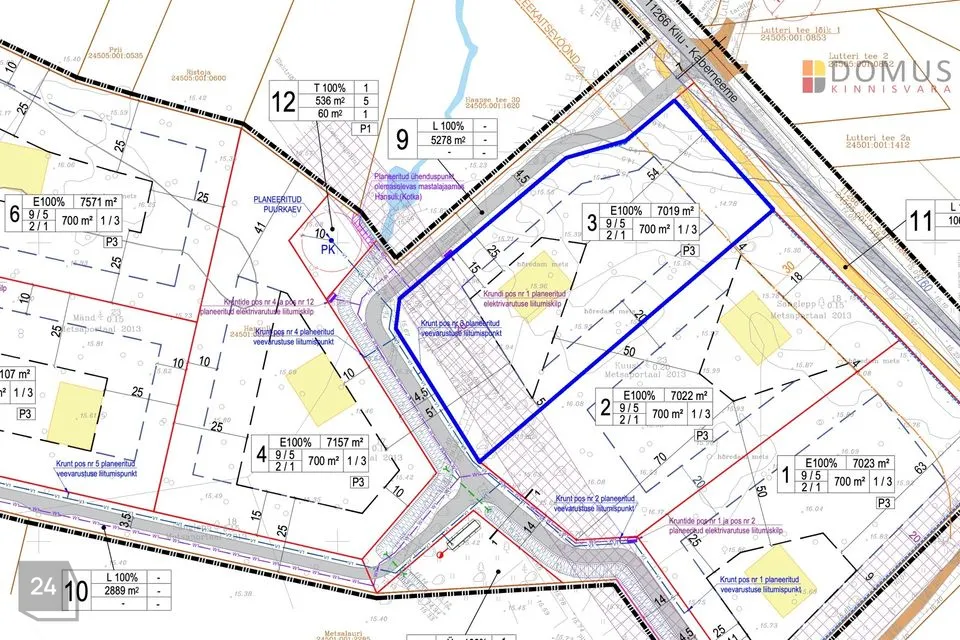
Müüa mõtteline osa kinnistust ehk tulevikus moodustatav kinnistu Hansuli tee 3, Jõelähtme vallas Haapse külas.
Moodustatava krundi pindala: 7019 m²
maa sihtotstarve: 100% elamumaa
krundi kasutamise otstarve vastavalt DP-le: üksikelamu maa ühele leibkonnale (perele) kavandatud elamu maa
hoonete suurim ehitisealune pindala: kuni 700 m²
hoonete suurim lubatud arv: kuni 4 (üksikelamu ja kuni 3 abihoonet)
hoonete suurim lubatud korruselisus: üksikelamu - kuni 2 maapealset korrust
abihoone - 1 korrus
hoonete suurim lubatud kõrgus maapinnast: üksikelamu kuni 9,0 m
abihoone kuni 5,0 m
Planeeringuala suurus on ca 7,3 ha. Detailplaneeringu järgi moodustatakse kokku 8 elamumaa kinnistut, mis on miinimum suurusega 0,7 ha. Detailplaneeringus on kavandatud elamukruntidele määratud elamute hoonestusalad, mis on üksteisest minimaalselt 50 meetri kaugusel. Abihoonetele on määratud hoonestusalad üksteisest 20 meetri kaugusele.
Elu- ja abihoonete kavandamisel arvestada, et tegemist on miljööväärtusliku piirkonnaga ranna-alal. Hoonete arhitektuur peab olema stiililt lihtne ja traditsiooniline. Hoonestuse komponeerimisel on lubatud kasutada kaasaegseid arhitektuuri- ja ehitusvõtteid ning elemente kuid planeeritavad hooned peavad sobima väljakujunenud arhitektuursesse miljöösse. Lihtsad ja heade proportsioonidega hooned loovad paikkonda rahuliku korrastatud miljöö. Hooned peavad need olema kujundatud hea maitsega. Krundile kavandatav abihooned ja piirded peavad sobituma elamu arhitektuuriga. Tulenevalt lähipiikonna hoonete arhitektuurist on detailplaneeringus kavandatud hoonete lubatud katusekalle vahemikus 200 – 500. Katusekujud kahepoolse kaldega, kelpkatus või nn pult-katus.
Kasutada tuleb naturaalseid, piirkonnale omaseid viimistlusmaterjale (puit, naturaalne kivi, krohvipind kombineerituna puidu või kiviga). Värvilahendus peab jääma pastelsete ja looduslike toonide skaalasse. Lubatud ei ole ümar-palk ja frees-ümarpalk fassaadid.
Hoonete välisviimistluses kasutada pastelseid looduslikke värvitoone. Värvide valikul vältida kirkaid värvitoone. Hoonete eskiislahendused tuleb kooskõlastada Jõelähtme valla arhitektiga.
Piirdeaia võib rajada ainult hoonestusala/õueala ümber. Piirete kõrguseks on lubatud kuni 1,5m ja materjaliks puit (puit-lipid või –latid). Piirdeaia rajamisel peab arvestama ümbritsevat looduslikku olustikku, kinni tuleb pidada väljakujunenud traditsioonidest. Arhitektuurselt peaksid piirded olema kerged, läbipaistvad. Piirded lahendada sobivas koosluses elamuga. Igale kavandatud elamukrundile on ette nähtud minimaalselt 3 parkimiskohta.
Lähimad kauplused jm teenindusettevõtted paiknevad ca 8 km kaugusel Kuusalu alevikus. Tallinna kesklinn jääb ca 30 km kaugusele. Lähimad koolid ja lasteaiad, paiknevad Kuusalu külas, Kostivere alevikus ja Loo alevikus.
Detailplaneering on koostamisel. Kasuta ainulaadset võimalust osta mõtteline osa kinnistust, et saada hiljem juba moodustatud kinnistu omanikuks. Kinnistu hind sisaldab valmisehitatud taristut ja liitumisi vesi (puurkaev), elektrivõrku 3x32A, (6500€ krundi tasu vallale). Võta ühendust ja räägime kõik võimalused läbi.
Pangad pakuvad Domus Kinnisvara klientidele eluasemelaenu lepingutasu soodustusi. Küsi lisainfot Domus Kinnisvara maaklerilt või hindajalt.
Müü ja hinda meiega! Teeme kinnisvara müügi Sinu jaoks sujuvaks ja pingevabaks.
Moodustatava krundi pindala: 7019 m²
maa sihtotstarve: 100% elamumaa
krundi kasutamise otstarve vastavalt DP-le: üksikelamu maa ühele leibkonnale (perele) kavandatud elamu maa
hoonete suurim ehitisealune pindala: kuni 700 m²
hoonete suurim lubatud arv: kuni 4 (üksikelamu ja kuni 3 abihoonet)
hoonete suurim lubatud korruselisus: üksikelamu - kuni 2 maapealset korrust
abihoone - 1 korrus
hoonete suurim lubatud kõrgus maapinnast: üksikelamu kuni 9,0 m
abihoone kuni 5,0 m
Planeeringuala suurus on ca 7,3 ha. Detailplaneeringu järgi moodustatakse kokku 8 elamumaa kinnistut, mis on miinimum suurusega 0,7 ha. Detailplaneeringus on kavandatud elamukruntidele määratud elamute hoonestusalad, mis on üksteisest minimaalselt 50 meetri kaugusel. Abihoonetele on määratud hoonestusalad üksteisest 20 meetri kaugusele.
Elu- ja abihoonete kavandamisel arvestada, et tegemist on miljööväärtusliku piirkonnaga ranna-alal. Hoonete arhitektuur peab olema stiililt lihtne ja traditsiooniline. Hoonestuse komponeerimisel on lubatud kasutada kaasaegseid arhitektuuri- ja ehitusvõtteid ning elemente kuid planeeritavad hooned peavad sobima väljakujunenud arhitektuursesse miljöösse. Lihtsad ja heade proportsioonidega hooned loovad paikkonda rahuliku korrastatud miljöö. Hooned peavad need olema kujundatud hea maitsega. Krundile kavandatav abihooned ja piirded peavad sobituma elamu arhitektuuriga. Tulenevalt lähipiikonna hoonete arhitektuurist on detailplaneeringus kavandatud hoonete lubatud katusekalle vahemikus 200 – 500. Katusekujud kahepoolse kaldega, kelpkatus või nn pult-katus.
Kasutada tuleb naturaalseid, piirkonnale omaseid viimistlusmaterjale (puit, naturaalne kivi, krohvipind kombineerituna puidu või kiviga). Värvilahendus peab jääma pastelsete ja looduslike toonide skaalasse. Lubatud ei ole ümar-palk ja frees-ümarpalk fassaadid.
Hoonete välisviimistluses kasutada pastelseid looduslikke värvitoone. Värvide valikul vältida kirkaid värvitoone. Hoonete eskiislahendused tuleb kooskõlastada Jõelähtme valla arhitektiga.
Piirdeaia võib rajada ainult hoonestusala/õueala ümber. Piirete kõrguseks on lubatud kuni 1,5m ja materjaliks puit (puit-lipid või –latid). Piirdeaia rajamisel peab arvestama ümbritsevat looduslikku olustikku, kinni tuleb pidada väljakujunenud traditsioonidest. Arhitektuurselt peaksid piirded olema kerged, läbipaistvad. Piirded lahendada sobivas koosluses elamuga. Igale kavandatud elamukrundile on ette nähtud minimaalselt 3 parkimiskohta.
Lähimad kauplused jm teenindusettevõtted paiknevad ca 8 km kaugusel Kuusalu alevikus. Tallinna kesklinn jääb ca 30 km kaugusele. Lähimad koolid ja lasteaiad, paiknevad Kuusalu külas, Kostivere alevikus ja Loo alevikus.
Detailplaneering on koostamisel. Kasuta ainulaadset võimalust osta mõtteline osa kinnistust, et saada hiljem juba moodustatud kinnistu omanikuks. Kinnistu hind sisaldab valmisehitatud taristut ja liitumisi vesi (puurkaev), elektrivõrku 3x32A, (6500€ krundi tasu vallale). Võta ühendust ja räägime kõik võimalused läbi.
Pangad pakuvad Domus Kinnisvara klientidele eluasemelaenu lepingutasu soodustusi. Küsi lisainfot Domus Kinnisvara maaklerilt või hindajalt.
Müü ja hinda meiega! Teeme kinnisvara müügi Sinu jaoks sujuvaks ja pingevabaks.




