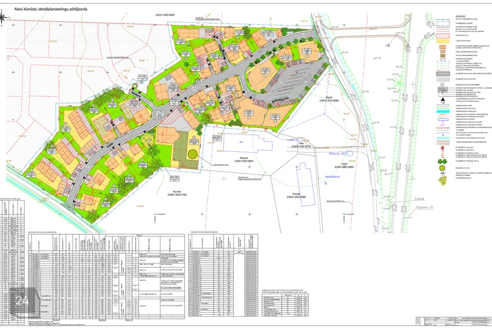
Kehtiv detailplaneering.
Asub Imavere keskuses. Läheduses asuvad poed, kool, lasteaed, Tikupoiss (taluturg ja toitlustus), valla teeninduspunkt, tanklad, Navesti jõgi, Eesti Piimandusmuuseum, kõrts.
Imaveres on palju töökohti tänu seal asuvatele suurtele tootmisettevõtetele.
Lubatud ehitada tehnorajatis.
Hoone lubatud suurim kõrgus 1.5m.
Ehitusalune pind 70m2, täisehituse protsent 100%.
Lubatud katusekalle 45°.
Välisseinte materjal hele krohv. Katusel punane või pruun katusekivi.
Hind ei sisalda teede ja tehnovõrkude väljaehitamist ega liitumist tehnovõrkudega.









