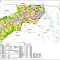
Kehtiv detailplaneering.
Asub Imavere keskuses. Läheduses asuvad poed, kool, lasteaed, Tikupoiss (taluturg ja toitlustus), valla teeninduspunkt, tanklad, Navesti jõgi, Eesti Piimandusmuuseum, kõrts.
Imaveres on palju töökohti tänu seal asuvatele suurtele tootmisettevõtetele.
Lubatud ehitada ärihoone. Parkimiskohti krundil 8tk. Ärihoone lubatud suurim kõrgus 9m. Lubatud 3 korrust.
Ehitusalune pind 440m2, täisehituse protsent 59,2%.
Lubatud katusekalle elamul 0-20°.
Välisseinte materjal plekk, kivi, krohv, tellis; katusel plekk või rullmaterjal.
Hind ei sisalda teede ja tehnovõrkude väljaehitamist ega liitumist tehnovõrkudega.









