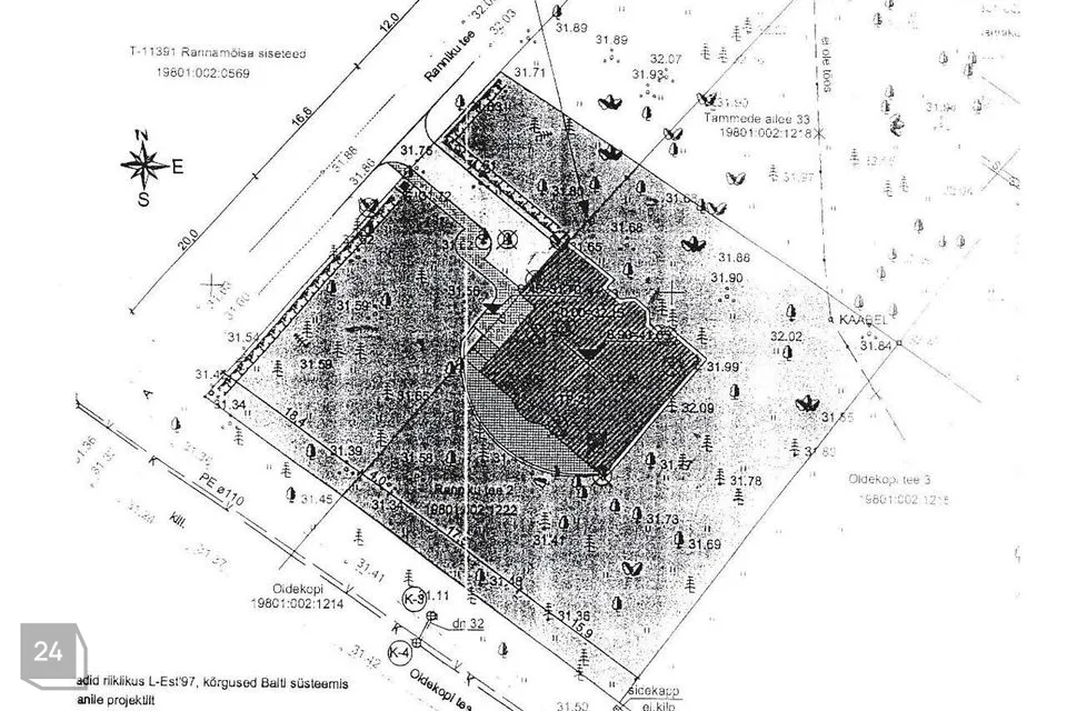
Müüja ehitamisel majakarp krundi suurusega 2644 m2 Tabasalu alevikus, Ranniku tänaval.
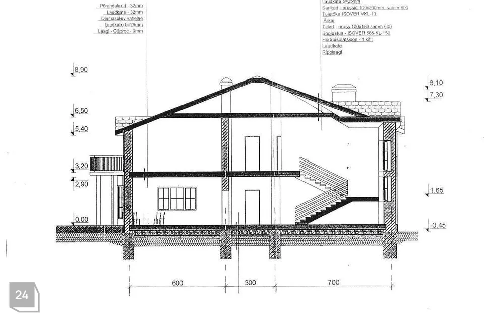
Majakarp on madalvundamendi peal, 1 korruse seinad on fibo-blokk.
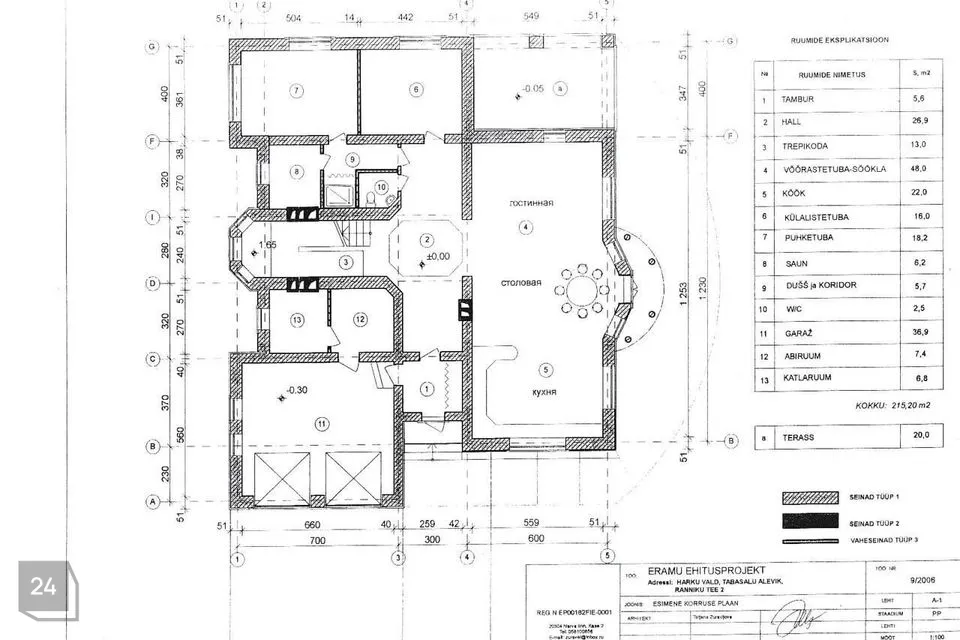
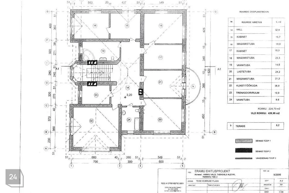
Ehitusalune pind – 300 m2
Kogu maja netto pind - 439,9 m2
Maja kõrgus – 8,9 m
Ehitusluba oli väljastatud 26.06.2007 aastal.
Hea ja vaikne asukoht.
Tabasalu spordikeskus, kool ja lasteaed – 1,5 km
Tabasalu keskuse 2 km.
Rocca al Maare keskus 8 km
Mereni – 500 m.
Ümber männid, segamets.
Teed on hea korras.
Helista, küsi lisa ja lähme vaatama!
Majakarp on madalvundamendi peal, 1 korruse seinad on fibo-blokk.
Ehitusalune pind – 300 m2
Kogu maja netto pind - 439,9 m2
Maja kõrgus – 8,9 m
Ehitusluba oli väljastatud 26.06.2007 aastal.
Hea ja vaikne asukoht.
Tabasalu spordikeskus, kool ja lasteaed – 1,5 km
Tabasalu keskuse 2 km.
Rocca al Maare keskus 8 km
Mereni – 500 m.
Ümber männid, segamets.
Teed on hea korras.
Helista, küsi lisa ja lähme vaatama!









































