Üürile anda kõrgesti hinnatud eksklusiivses elurajoonis Kadrioru uusehitises (2004) sisehoovi rõduga täielikult möbleeritud korter, mille üldpind on 93 m2, ja mis koosneb kõetavast pinnast 80,9 m2, rõdust ja parkimiskohast maja all olevas garaazis
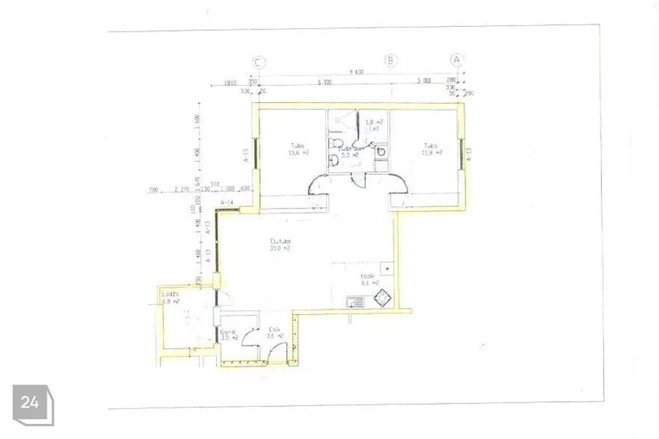
ARHITEKTUURNE LAHENDUS:
- 2 eraldi magamistuba ( 13,6 ja 13,9 m2, mõlemas üle seina lükandustega garderoob, 2-in voodi, töölaud,
- avar elutuba avatud köögiga (39 m2) ja sisehoovi avaneva rõduga (ca 6,8 m2),
- märgruumis dushinurk, saun, kraanikauss, WC ja korralik pesumasin,
- lisaks eraldi garderoobi/panipaiga ruum (4,5 m2), maja sisene gaasikeskküte (põrandaküte, soojuse kandjaks vesi),
- auto parkimine maa-aluses garaazis.
KULUD:
suvel ca 120 € + vesi ja elekter, talvel 220 + vesi ja elekter, lisandub interneti teenus. Kuu üürile lisandub ühe kuu deposiit, maaklertasu 1 kuu üüri ulatuses ja kõik kom. maksed, va remondifond.
ASUKOHT:
Logistiliselt väga hea asukoht, kõrval ERR peamaja, Vanalinn 10 min jälutuskäigu kaugusel, modernne Rotermanni kvartal ja Reisisadam ca 15 min jalutada, Tallinna Ülikool ca 10 min jalutamist. Samas vaikne rahulik tänav mitmete romantiliste väikeste kohvikutega ja restoranidega, mis ongi tõeline Kadriorg!
ARHITEKTUURNE LAHENDUS:
- 2 eraldi magamistuba ( 13,6 ja 13,9 m2, mõlemas üle seina lükandustega garderoob, 2-in voodi, töölaud,
- avar elutuba avatud köögiga (39 m2) ja sisehoovi avaneva rõduga (ca 6,8 m2),
- märgruumis dushinurk, saun, kraanikauss, WC ja korralik pesumasin,
- lisaks eraldi garderoobi/panipaiga ruum (4,5 m2), maja sisene gaasikeskküte (põrandaküte, soojuse kandjaks vesi),
- auto parkimine maa-aluses garaazis.
KULUD:
suvel ca 120 € + vesi ja elekter, talvel 220 + vesi ja elekter, lisandub interneti teenus. Kuu üürile lisandub ühe kuu deposiit, maaklertasu 1 kuu üüri ulatuses ja kõik kom. maksed, va remondifond.
ASUKOHT:
Logistiliselt väga hea asukoht, kõrval ERR peamaja, Vanalinn 10 min jälutuskäigu kaugusel, modernne Rotermanni kvartal ja Reisisadam ca 15 min jalutada, Tallinna Ülikool ca 10 min jalutamist. Samas vaikne rahulik tänav mitmete romantiliste väikeste kohvikutega ja restoranidega, mis ongi tõeline Kadriorg!





















