Üürile anda eksklusiivne äsja renoveeritud perekorter Kristiine roheluses koos nelja parkimiskohaga.
VÕIMALIK RENTIDA KA TAGATISRAHATA ******* lepinguga.
Fassaadi viimistlustööd on lõpusirgel ja korter on uuteks elanikeks valmis!
Hästikäituvad väiksemad lemmikloomad on kokkuleppel lubatud.
HOONE
Laine 3 on 1946. aastal valminud 3-korruseline kivimaja, mille loomisel on olnud oma osa arhitektil Herbert Johansonil. 2025. aastal tehtud totaalne renoveering nii korterile, kui maja fassaadile. Maja asub Järve metsade roheluses, vaikses ja rahulikus piirkonnas.
Maja taga asub hoov.
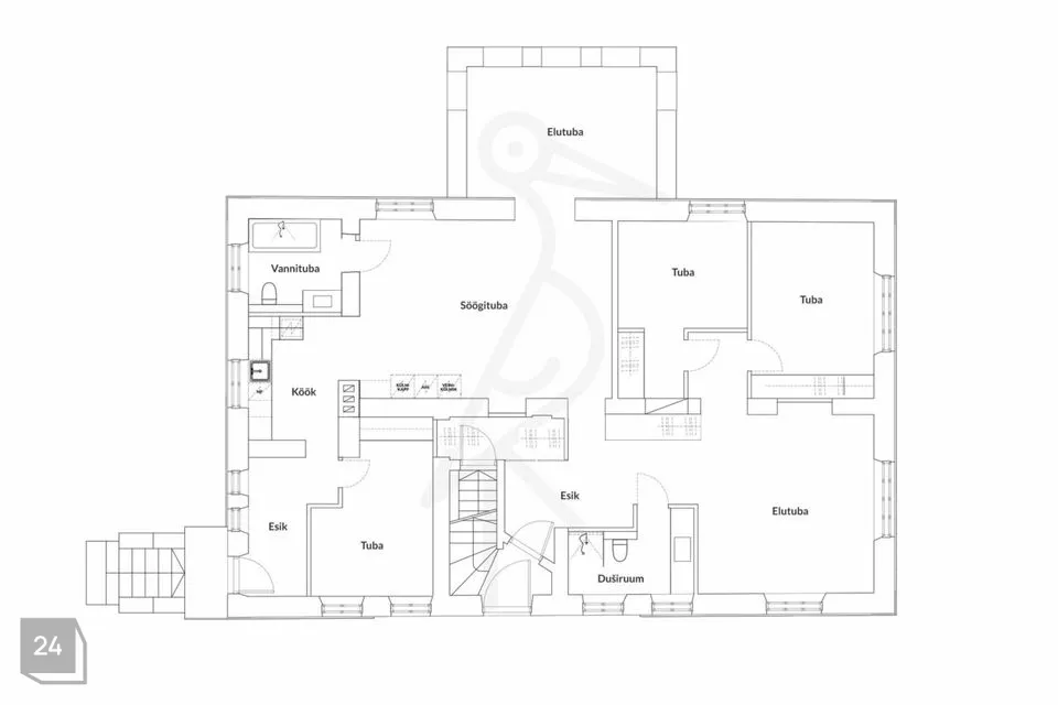
PLANEERING JA SISEVIIMISTLUS
162,2 m² suuruse korteri koosseisu kuulub: esik, 3 magamistuba, 2 elutuba, söögituba, köök, duširuum koos WC-ga ja vannituba.
Tegemist on kaasaegsete lahenduste, avatud planeeringu ning valgusküllase koduga, mille interjööri iseloomustavad puhtad jooned, naturaalsed materjalid ning hubane lõppviimistlus.
Ruumides on põrandatel kalasaba parkett; esiku ja vannitubade seinu ning põrandaid katavad keraamilised plaadid.
Korteri renoveerimisel ja sisustamisel on kasutatud kõrgekvaliteedilisi ja hinnalisi materjale.
Korter asub maja esimesel korrusel ja sellel on 2 eraldi sissepääsu.
SISUSTUS JA TEHNIKA
Korteris on olemas eluks vajalik sisustus, valgustid, kardinad ja tehnika.
Kvaliteetsesse ja funktsionaalsesse köögimööblisse on integreeritud kõrge kvaliteedi ning suurepärase ja ajatu disainiga kodumasinad: pliit ja praeahi, õhupuhasti, nõudepesumasin, mikrolaineahi, külmkapp koos sügavkülmikuga ja veinikülmik.
Köögi tööpinda hakkab katma must looduslikust kivist tasapind.
Suures magamistoas on kahekohaline voodi koos voodikastidega ja kaks öökappi. Lastetoas on voodi, kirjutuslaud ja riiulitega kapp.
Kolmas magamistuba on hetkel sisustatud kodukontoriks.
Elutubades on suured diivanid. Samuti jäävad üürniku kasutada 2 televiisorit.
Duširuumis on olemas lisaks sanitaartehnikale ja vannitoamööblile ka Samsung pesumasin.
Esikus on sisseehitatud mahukas garderoobikapp.
KÜTE
Täieliku renoveerimise käigus on maja hinnatud B-energiaklassi ehitiseks.
Soojavarustuse korteris tagab õhk-vesisoojuspump, millelt saadav soojus jaotub läbi põrandakütte. See tagab ühtlase soojuse ja madalad küttekulud aastaringselt.
PARKIMINE
Korteri juurde kuulub 4 parkimiskohta: 2 maja ees ja 2 maja taga kinnises hoovis.
ASUKOHT
Laine tänava asukoht pakub igaühele just seda, mida vaja. Ühtpidi on kogu elu kesklinnale mugavalt lähedal. Teistpidi annab kodulähedane rohelus võimaluse nautida elu ilu.
Lähedal on kõik eluks vajalik: terviserajad, sprodisaal (MyFitness Järve klubi), kohvikud ja restoranid.
Lähim ühistranspordipeatus 100 meetri kaugusel.
Lähimad kauplused Järve Keskus 900m ja Tondi selver 700m kaugusel. Lasteaed ja kool 800m kaugusel.
Suitsetamine korteris ei ole lubatud.
Huvi korral võtke ühendust, et kokku leppida sobiv aeg oma uue koduga tutvumiseks.
Lepingu sõlmimisel tuleb tasuda: esimese kuu üür ettemaksuna, tagatisraha ühe kuu üürisumma ulatuses ja maakleritasu+km.
VÕIMALIK RENTIDA KA TAGATISRAHATA ******* lepinguga.
Fassaadi viimistlustööd on lõpusirgel ja korter on uuteks elanikeks valmis!
Hästikäituvad väiksemad lemmikloomad on kokkuleppel lubatud.
HOONE
Laine 3 on 1946. aastal valminud 3-korruseline kivimaja, mille loomisel on olnud oma osa arhitektil Herbert Johansonil. 2025. aastal tehtud totaalne renoveering nii korterile, kui maja fassaadile. Maja asub Järve metsade roheluses, vaikses ja rahulikus piirkonnas.
Maja taga asub hoov.
PLANEERING JA SISEVIIMISTLUS
162,2 m² suuruse korteri koosseisu kuulub: esik, 3 magamistuba, 2 elutuba, söögituba, köök, duširuum koos WC-ga ja vannituba.
Tegemist on kaasaegsete lahenduste, avatud planeeringu ning valgusküllase koduga, mille interjööri iseloomustavad puhtad jooned, naturaalsed materjalid ning hubane lõppviimistlus.
Ruumides on põrandatel kalasaba parkett; esiku ja vannitubade seinu ning põrandaid katavad keraamilised plaadid.
Korteri renoveerimisel ja sisustamisel on kasutatud kõrgekvaliteedilisi ja hinnalisi materjale.
Korter asub maja esimesel korrusel ja sellel on 2 eraldi sissepääsu.
SISUSTUS JA TEHNIKA
Korteris on olemas eluks vajalik sisustus, valgustid, kardinad ja tehnika.
Kvaliteetsesse ja funktsionaalsesse köögimööblisse on integreeritud kõrge kvaliteedi ning suurepärase ja ajatu disainiga kodumasinad: pliit ja praeahi, õhupuhasti, nõudepesumasin, mikrolaineahi, külmkapp koos sügavkülmikuga ja veinikülmik.
Köögi tööpinda hakkab katma must looduslikust kivist tasapind.
Suures magamistoas on kahekohaline voodi koos voodikastidega ja kaks öökappi. Lastetoas on voodi, kirjutuslaud ja riiulitega kapp.
Kolmas magamistuba on hetkel sisustatud kodukontoriks.
Elutubades on suured diivanid. Samuti jäävad üürniku kasutada 2 televiisorit.
Duširuumis on olemas lisaks sanitaartehnikale ja vannitoamööblile ka Samsung pesumasin.
Esikus on sisseehitatud mahukas garderoobikapp.
KÜTE
Täieliku renoveerimise käigus on maja hinnatud B-energiaklassi ehitiseks.
Soojavarustuse korteris tagab õhk-vesisoojuspump, millelt saadav soojus jaotub läbi põrandakütte. See tagab ühtlase soojuse ja madalad küttekulud aastaringselt.
PARKIMINE
Korteri juurde kuulub 4 parkimiskohta: 2 maja ees ja 2 maja taga kinnises hoovis.
ASUKOHT
Laine tänava asukoht pakub igaühele just seda, mida vaja. Ühtpidi on kogu elu kesklinnale mugavalt lähedal. Teistpidi annab kodulähedane rohelus võimaluse nautida elu ilu.
Lähedal on kõik eluks vajalik: terviserajad, sprodisaal (MyFitness Järve klubi), kohvikud ja restoranid.
Lähim ühistranspordipeatus 100 meetri kaugusel.
Lähimad kauplused Järve Keskus 900m ja Tondi selver 700m kaugusel. Lasteaed ja kool 800m kaugusel.
Suitsetamine korteris ei ole lubatud.
Huvi korral võtke ühendust, et kokku leppida sobiv aeg oma uue koduga tutvumiseks.
Lepingu sõlmimisel tuleb tasuda: esimese kuu üür ettemaksuna, tagatisraha ühe kuu üürisumma ulatuses ja maakleritasu+km.

























