Moodsa disainiga ja läbimõeldud lahendustega mereäärne Kalaranna Kvartali elupiirkond hõlmab kuue hektari suurust sadama ja rannapiirkonna ala, kus asub 12 elumaja koos restoranide, butiikide ja teeninduspindadega. Piirkonna keskseks punktiks on pea Raekoja platsi suurune väljak välikohvikute ja kultuurisündmustega.
Kalaranna Kvartal asub Tallinna kõige eksklusiivsemas piirkonnas "Kuldsel Miilil". Vahetus läheduses on vanalinn, kesklinn ja uut hingamist saav Patarei merekindlus, Kultuurikatel, Lennusadam ja palju muud.
Üürileantav korter asub Kalaranna 8/2 maja 3. korrusel. Korteris on sisseehitatud mööbel, tehnika, valgustid ja aknakatted. Korter antakse üürile möbleerimata kujul, et uued elanikud saaksid kodu kujundada vastavalt oma maitsele ja vajadusele.
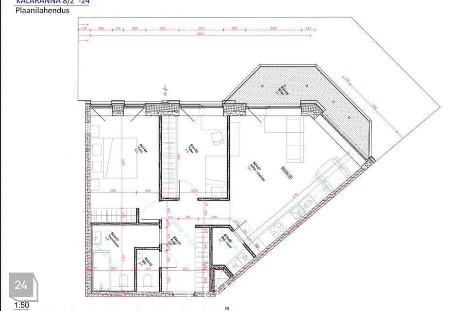
PLANEERING
Korter on kolmetoaline ning selle üldpind on 74.6 m2, millele lisandub 9 m2 suurune merepoolne terrass.
Esikus ja magamistoas on mahukas, sisseehitatud valgustusega garderoobikapp, esikust pääseb suurde vannituppa. Kõik toad on eraldiseisvad.
Korteris on kasutatud vaid kvaliteetseid ja looduslikke materjale - läbivalt heledates toonides. Seinad on värvitud ning põrandatel on õlitatud kalasaba tammeparkett. Kogu sisseehitatud mööbel on eritellimusel valmistatud.
Köögis on kvaliteetne uueväärne integreeritud tehnika – külmik, nõudepesumasin, induktsioonpliit ja ahi. Majapidamisruumis on pesumasin koos kuivatiga.
TEHNILINE INFO
Küte on kaugkütte baasil vesipõrandaküttesüsteem, temperatuuri on võimalik igas ruumis eraldi reguleerida. Maja energiaklass on B.
Üldventilatsioon on teostatud läbi tsentraalse soojustagastusega sissepuhke-väljatõmbe seadme, mis on korteripõhiselt reguleeritav. Kiire interneti tagab Telia valguskaabel.
PARKIMINE JA PANIPAIK
Üürihinna sees on kindel parkimiskoht soojas maa-aluses garaažis ning panipaik. Lisaks on eraldi suletud ruum rataste ja lapsevankrite hoiustamiseks.
KÕRVALKULUD
Ökonoomne B-energiaklassile vastav hoone tagab mõistlikud ülalpidamiskulud aastaringselt. Kommunaalkulude arvetega on võimalik kohapeal lähemalt tutvuda.
Üür: 1 500 eurot/kuus, mis sisaldab 1 kord kuus koristust, lisanduvad kõrvalkulud
Tagatisraha: 1 500 eurot
Vahendustasu: 1 500 eurot (lisandub käibemaks 24%)
PIIRKOND
Kalaranna on unikaalne kodu inimesele, kes naudib põhjamaise arhitektuuri esteetikat ja läbimõeldud elukeskkonda, hindab kõrgelt kvaliteeti ning väärtustab aega, soovides seejuures suunata pilku kaugusesse, et lasta mõttel rännata.
Kõik, mida vajad, on siinsamas – lai valik restorane ja kohvikuid. 500 m raadiuses asub suur hulk butiike ja kaubanduskeskuseid, vanalinn, Kalamaja ja Noblessner, lai valik kvaliteetset meelelahutust ja sportimisvõimalusi.
Korter on vaba sissekolimiseks!
Huvi korral võta ühendust ja läheme koos Sinu uut mereäärset kodu vaatama.
KONTAKTINFO
Lepime kokku aja ja läheme Sinu uut kodu vaatama!
Piret Rannala
***@***.ee
+372 *******
LUXUM Real Estate
LUXUM on pühendunud Eesti premium-kinnisvara rahvusvahelisele müügile ja üürile. Meie enam kui 33-aastane kogemus, premium-kinnisvarale spetsialiseerunud maaklerid, ulatuslik kontaktivõrgustik ja värske turuinfo annavad meile võimaluse leida teie kinnisvarale sobiva ostja või teile sellise kodu, millest unistanud olete.
LUXUM Real Estate on tunnustatud rahvusvaheliselt Eesti parimaks premium-kinnisvara vahendusbürooks, misläbi on kõikidel LUXUMi logo kandvatel kodudel rahvusvahelise kõrgkvaliteedi, professionaalsuse ja usaldusväärsuse kinnitus.
Kui soovite osta, müüa või üürida premium-kinnisvara, võtke julgelt minuga ühendust!
Kui antud kodu ei ole täpselt see, mida oled otsinud, siis meil on veel sarnaseid pakkumisi ja kõik meie pakkumised ei ole avalikud, mistõttu tasub alati minuga otse ühendust võtta!
JAGA MINU KONTAKTI KÕIGILE, KES VAJAVAD KINNISVARANÕU!
- - - - - - - - - -
Telli hindamine UUS MAA Kinnisvarabüroolt https://uusmaa.ee/teenused/hindamine/
ning saad:
- Eksperthinnangu kuni 20% soodsamalt kui võtad koduga seotud laenu Swedbankist
- Pankadest parimad kodulaenutingimused
- Kiire, kvaliteetse ning usaldusväärse hindamisteenuse Eestis
UUS MAA KINNISVARABÜROO EKSPERTHINNANGUID AKTSEPTEERIVAD KÕIK FINANTSASUTUSED.
- - - - - - - - - -
Liitu Uus Maa uudiskirjaga ja saa homset kinnisvarainfot juba täna!
https://www.uusmaa.ee/uudiskirjagaliitumine/
- - - - - - - - - -
Kodu aitab osta Swedbank.
Pakkumise saamiseks kasuta koodi UUSMAA ja Sind teenindatakse eelisjärjekorras.
Võtame ühendust 1 tööpäeva jooksul.
Uus Maa kliendile soodsam lepingutasu. Küsi täpsemat infot maaklerilt.
Finantsteenuseid pakub Swedbank AS. Tutvu tingimustega, pea nõu.
Kalaranna Kvartal asub Tallinna kõige eksklusiivsemas piirkonnas "Kuldsel Miilil". Vahetus läheduses on vanalinn, kesklinn ja uut hingamist saav Patarei merekindlus, Kultuurikatel, Lennusadam ja palju muud.
Üürileantav korter asub Kalaranna 8/2 maja 3. korrusel. Korteris on sisseehitatud mööbel, tehnika, valgustid ja aknakatted. Korter antakse üürile möbleerimata kujul, et uued elanikud saaksid kodu kujundada vastavalt oma maitsele ja vajadusele.
PLANEERING
Korter on kolmetoaline ning selle üldpind on 74.6 m2, millele lisandub 9 m2 suurune merepoolne terrass.
Esikus ja magamistoas on mahukas, sisseehitatud valgustusega garderoobikapp, esikust pääseb suurde vannituppa. Kõik toad on eraldiseisvad.
Korteris on kasutatud vaid kvaliteetseid ja looduslikke materjale - läbivalt heledates toonides. Seinad on värvitud ning põrandatel on õlitatud kalasaba tammeparkett. Kogu sisseehitatud mööbel on eritellimusel valmistatud.
Köögis on kvaliteetne uueväärne integreeritud tehnika – külmik, nõudepesumasin, induktsioonpliit ja ahi. Majapidamisruumis on pesumasin koos kuivatiga.
TEHNILINE INFO
Küte on kaugkütte baasil vesipõrandaküttesüsteem, temperatuuri on võimalik igas ruumis eraldi reguleerida. Maja energiaklass on B.
Üldventilatsioon on teostatud läbi tsentraalse soojustagastusega sissepuhke-väljatõmbe seadme, mis on korteripõhiselt reguleeritav. Kiire interneti tagab Telia valguskaabel.
PARKIMINE JA PANIPAIK
Üürihinna sees on kindel parkimiskoht soojas maa-aluses garaažis ning panipaik. Lisaks on eraldi suletud ruum rataste ja lapsevankrite hoiustamiseks.
KÕRVALKULUD
Ökonoomne B-energiaklassile vastav hoone tagab mõistlikud ülalpidamiskulud aastaringselt. Kommunaalkulude arvetega on võimalik kohapeal lähemalt tutvuda.
Üür: 1 500 eurot/kuus, mis sisaldab 1 kord kuus koristust, lisanduvad kõrvalkulud
Tagatisraha: 1 500 eurot
Vahendustasu: 1 500 eurot (lisandub käibemaks 24%)
PIIRKOND
Kalaranna on unikaalne kodu inimesele, kes naudib põhjamaise arhitektuuri esteetikat ja läbimõeldud elukeskkonda, hindab kõrgelt kvaliteeti ning väärtustab aega, soovides seejuures suunata pilku kaugusesse, et lasta mõttel rännata.
Kõik, mida vajad, on siinsamas – lai valik restorane ja kohvikuid. 500 m raadiuses asub suur hulk butiike ja kaubanduskeskuseid, vanalinn, Kalamaja ja Noblessner, lai valik kvaliteetset meelelahutust ja sportimisvõimalusi.
Korter on vaba sissekolimiseks!
Huvi korral võta ühendust ja läheme koos Sinu uut mereäärset kodu vaatama.
KONTAKTINFO
Lepime kokku aja ja läheme Sinu uut kodu vaatama!
Piret Rannala
***@***.ee
+372 *******
LUXUM Real Estate
LUXUM on pühendunud Eesti premium-kinnisvara rahvusvahelisele müügile ja üürile. Meie enam kui 33-aastane kogemus, premium-kinnisvarale spetsialiseerunud maaklerid, ulatuslik kontaktivõrgustik ja värske turuinfo annavad meile võimaluse leida teie kinnisvarale sobiva ostja või teile sellise kodu, millest unistanud olete.
LUXUM Real Estate on tunnustatud rahvusvaheliselt Eesti parimaks premium-kinnisvara vahendusbürooks, misläbi on kõikidel LUXUMi logo kandvatel kodudel rahvusvahelise kõrgkvaliteedi, professionaalsuse ja usaldusväärsuse kinnitus.
Kui soovite osta, müüa või üürida premium-kinnisvara, võtke julgelt minuga ühendust!
Kui antud kodu ei ole täpselt see, mida oled otsinud, siis meil on veel sarnaseid pakkumisi ja kõik meie pakkumised ei ole avalikud, mistõttu tasub alati minuga otse ühendust võtta!
JAGA MINU KONTAKTI KÕIGILE, KES VAJAVAD KINNISVARANÕU!
- - - - - - - - - -
Telli hindamine UUS MAA Kinnisvarabüroolt https://uusmaa.ee/teenused/hindamine/
ning saad:
- Eksperthinnangu kuni 20% soodsamalt kui võtad koduga seotud laenu Swedbankist
- Pankadest parimad kodulaenutingimused
- Kiire, kvaliteetse ning usaldusväärse hindamisteenuse Eestis
UUS MAA KINNISVARABÜROO EKSPERTHINNANGUID AKTSEPTEERIVAD KÕIK FINANTSASUTUSED.
- - - - - - - - - -
Liitu Uus Maa uudiskirjaga ja saa homset kinnisvarainfot juba täna!
https://www.uusmaa.ee/uudiskirjagaliitumine/
- - - - - - - - - -
Kodu aitab osta Swedbank.
Pakkumise saamiseks kasuta koodi UUSMAA ja Sind teenindatakse eelisjärjekorras.
Võtame ühendust 1 tööpäeva jooksul.
Uus Maa kliendile soodsam lepingutasu. Küsi täpsemat infot maaklerilt.
Finantsteenuseid pakub Swedbank AS. Tutvu tingimustega, pea nõu.
































