Üürile anda unikaalse arhitektuuriga poolringmajas kahe suure terrassiga 2-toaline korter Kristiine põiktänaval.
Kui soovid hommikujooksu teha Merimetsa parkmetsas linnulaulu saatel või hoopis õhtul Stroomi rannas jalutada ning Sulle ei meeldi klassikalised kortermajad ja otsid midagi erilisemat, siis see pakkumine on just Sinule!
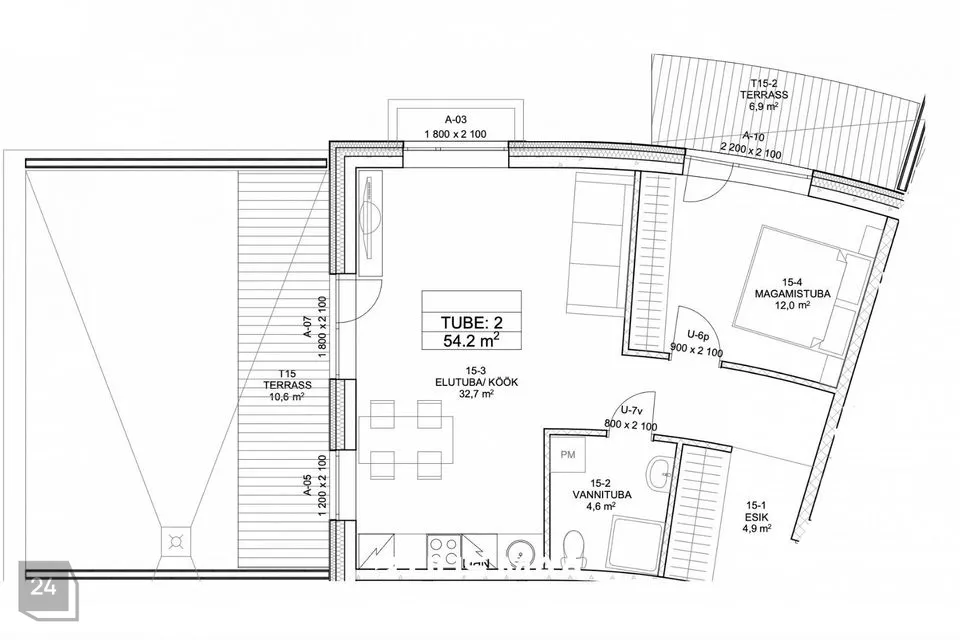
KORTER
See ilus 1. korruse korter on väga hea planeeringuga ning sobib suurepärase neile peredele, kes otsivad omale kodu, mis ei oleks lihtsalt tavaline korter vaid rohkem ridaelamu tüüpi lahendus, kus on olemas ka suur terrass ja mõnus hoov. Ja sellel korteril ei ole mitte 1 vaid suisa kaks suurt terrassi - magamistoas olevale terrassile paistab hommiku- ning elutoa juures olevale terrassile õhtupäike.
Korterisse sisse astudes ootab ees suur esik. Sealt edasi liikudes jääb paremale magamistuba, mille vastas on ruumikas WC'ga vannituba, mis on äsja värskenduskuuri läbinud. Selle kodu südameks on avatud köögiga ühendatud elutuba, mille väga suured maast laeni aknad ja rõduuksed lisavad korterile rohkelt avarust ja valgust.
Korter on hubaselt sisustatud ja soovi korral võib korteris olev sisustus hinna sees korterisse jääda.
Korteri mugava sisekliima tagab vesipõrandaküte, mida saab reguleerida ruumipõhiselt. Vannitoas on olemas ka elektri põrandaküte, mida suvel vajadusel kasutada saab. Ruumide hea õhuvahetuse ja tervisliku siseõhu tagab korteripõhine soojustagastusega ventilatsioon.
KORTERMAJA
Välja 3 kinnistul on kaks väikest kortermaja, mille vahel moodustub hubane hooviala ja mis on igast küljest suletud aiaga piiratud. Maja on ehitatud 2017. aastal ning 2019. aastal väljastati kasutusluba.
PARKIMINE JA PANIPAIK
Korteri juurde kuulub ka panipaik, parkimiskohta sellel korteril ei ole. Kuna see kodu asub Kristiine vaiksel kõrvaltänaval, on parkimine tänaval tasuta ning ruumi alati nii enda kui külla tulevate sõprade autode jaoks.
KOMMUNAALARVED
Suvised kommunaalarved on olnud veidi alla 200 euro ning talvised arved ca 300 eurot.
ASUKOHT
Välja 3 maja asub Kristiine linnaosas Lilleküla asumis. Ümbruses on palju rohelust ja vaikseid kõrvaltänavaid, kus on mõnus jalutada. Kiire ühendus igas suunas nii auto kui ühistranspordiga. Ühistranspordi peatus Välja on 100 m kaugusel maja välisuksest, kust erinevatesse linnaosadesse viib hulgaliselt busse ja trolle. Trennihuvilistele on heaks uudiseks see, et üle tee asub 24/7 avatud spordisaal.
LEPING
Lepingu sõlmimisel tuleb tasuda 1 kuu üür ning vahendustasu 1 kuu üüri summas (+ käibemaks).
Selle korteri üürileandja kasutab Rendin (*******) üürilepingu mugavusteenust, mis vabastab üürniku tagatisraha maksmisest ja annab kaasa ootamatu sissetulekute kaotuse kindlustuse - koondamise ning tõsiste tervisemurede korral.
Alusta oma uue kodu üürimist väiksemate stardikuludega - tagatisraha on asendatud väikese kuutasuga, mis on 4% üürisummast. 700 EUR üüri puhul on täiendav kuutasu üürnikule 28 EUR.
Helista ja lähme vaatama!
JAGA MINU KONTAKTI KÕIGILE, KES VAJAVAD KINNISVARANÕU!
- - - - - - - - - -
Telli hindamine UUS MAA Kinnisvarabüroolt https://uusmaa.ee/teenused/hindamine/
ning saad:
- Eksperthinnangu kuni 20% soodsamalt kui võtad koduga seotud laenu Swedbankist
- Pankadest parimad kodulaenutingimused
- Kiire, kvaliteetse ning usaldusväärse hindamisteenuse Eestis
UUS MAA KINNISVARABÜROO EKSPERTHINNANGUID AKTSEPTEERIVAD KÕIK FINANTSASUTUSED.
- - - - - - - - - -
Liitu Uus Maa uudiskirjaga ja saa homset kinnisvarainfot juba täna!
https://www.uusmaa.ee/uudiskirjagaliitumine/
- - - - - - - - - -
Kodu aitab osta Swedbank.
Pakkumise saamiseks kasuta koodi UUSMAA ja Sind teenindatakse eelisjärjekorras.
Võtame ühendust 1 tööpäeva jooksul.
Uus Maa kliendile soodsam lepingutasu. Küsi täpsemat infot maaklerilt.
Finantsteenuseid pakub Swedbank AS. Tutvu tingimustega, pea nõu.
Kui soovid hommikujooksu teha Merimetsa parkmetsas linnulaulu saatel või hoopis õhtul Stroomi rannas jalutada ning Sulle ei meeldi klassikalised kortermajad ja otsid midagi erilisemat, siis see pakkumine on just Sinule!
KORTER
See ilus 1. korruse korter on väga hea planeeringuga ning sobib suurepärase neile peredele, kes otsivad omale kodu, mis ei oleks lihtsalt tavaline korter vaid rohkem ridaelamu tüüpi lahendus, kus on olemas ka suur terrass ja mõnus hoov. Ja sellel korteril ei ole mitte 1 vaid suisa kaks suurt terrassi - magamistoas olevale terrassile paistab hommiku- ning elutoa juures olevale terrassile õhtupäike.
Korterisse sisse astudes ootab ees suur esik. Sealt edasi liikudes jääb paremale magamistuba, mille vastas on ruumikas WC'ga vannituba, mis on äsja värskenduskuuri läbinud. Selle kodu südameks on avatud köögiga ühendatud elutuba, mille väga suured maast laeni aknad ja rõduuksed lisavad korterile rohkelt avarust ja valgust.
Korter on hubaselt sisustatud ja soovi korral võib korteris olev sisustus hinna sees korterisse jääda.
Korteri mugava sisekliima tagab vesipõrandaküte, mida saab reguleerida ruumipõhiselt. Vannitoas on olemas ka elektri põrandaküte, mida suvel vajadusel kasutada saab. Ruumide hea õhuvahetuse ja tervisliku siseõhu tagab korteripõhine soojustagastusega ventilatsioon.
KORTERMAJA
Välja 3 kinnistul on kaks väikest kortermaja, mille vahel moodustub hubane hooviala ja mis on igast küljest suletud aiaga piiratud. Maja on ehitatud 2017. aastal ning 2019. aastal väljastati kasutusluba.
PARKIMINE JA PANIPAIK
Korteri juurde kuulub ka panipaik, parkimiskohta sellel korteril ei ole. Kuna see kodu asub Kristiine vaiksel kõrvaltänaval, on parkimine tänaval tasuta ning ruumi alati nii enda kui külla tulevate sõprade autode jaoks.
KOMMUNAALARVED
Suvised kommunaalarved on olnud veidi alla 200 euro ning talvised arved ca 300 eurot.
ASUKOHT
Välja 3 maja asub Kristiine linnaosas Lilleküla asumis. Ümbruses on palju rohelust ja vaikseid kõrvaltänavaid, kus on mõnus jalutada. Kiire ühendus igas suunas nii auto kui ühistranspordiga. Ühistranspordi peatus Välja on 100 m kaugusel maja välisuksest, kust erinevatesse linnaosadesse viib hulgaliselt busse ja trolle. Trennihuvilistele on heaks uudiseks see, et üle tee asub 24/7 avatud spordisaal.
LEPING
Lepingu sõlmimisel tuleb tasuda 1 kuu üür ning vahendustasu 1 kuu üüri summas (+ käibemaks).
Selle korteri üürileandja kasutab Rendin (*******) üürilepingu mugavusteenust, mis vabastab üürniku tagatisraha maksmisest ja annab kaasa ootamatu sissetulekute kaotuse kindlustuse - koondamise ning tõsiste tervisemurede korral.
Alusta oma uue kodu üürimist väiksemate stardikuludega - tagatisraha on asendatud väikese kuutasuga, mis on 4% üürisummast. 700 EUR üüri puhul on täiendav kuutasu üürnikule 28 EUR.
Helista ja lähme vaatama!
JAGA MINU KONTAKTI KÕIGILE, KES VAJAVAD KINNISVARANÕU!
- - - - - - - - - -
Telli hindamine UUS MAA Kinnisvarabüroolt https://uusmaa.ee/teenused/hindamine/
ning saad:
- Eksperthinnangu kuni 20% soodsamalt kui võtad koduga seotud laenu Swedbankist
- Pankadest parimad kodulaenutingimused
- Kiire, kvaliteetse ning usaldusväärse hindamisteenuse Eestis
UUS MAA KINNISVARABÜROO EKSPERTHINNANGUID AKTSEPTEERIVAD KÕIK FINANTSASUTUSED.
- - - - - - - - - -
Liitu Uus Maa uudiskirjaga ja saa homset kinnisvarainfot juba täna!
https://www.uusmaa.ee/uudiskirjagaliitumine/
- - - - - - - - - -
Kodu aitab osta Swedbank.
Pakkumise saamiseks kasuta koodi UUSMAA ja Sind teenindatakse eelisjärjekorras.
Võtame ühendust 1 tööpäeva jooksul.
Uus Maa kliendile soodsam lepingutasu. Küsi täpsemat infot maaklerilt.
Finantsteenuseid pakub Swedbank AS. Tutvu tingimustega, pea nõu.













































