Korraliku maja mõõtu 274,3 m² sisepinnaga korter on üsnagi erilises majas kus kokku vaid 15 suurt korterit. Pakkumine on võrreldav ridamaja boksiga.
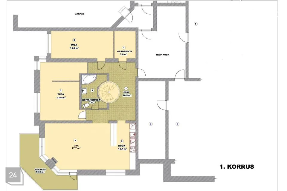
Elupinna paigutus on läbi kolme korruse. Magamistube võiks lugeda neli. Esimese korruse eluruumid on nö põhikorrus kus avatud köögiga elutuba millest pääs terrassile, suur garderoobiga magamistuba, väiksem magamistuba ja pesuruum. Lisaks on esikus, kohe sissepääsu kõrval mahukas walk-in garderoob. Teist korrust saab iseloomustada kui eraldi asetsevat korterit - seal on trepihall, tuba ja selle taga veel üks magamistuba. See sobib ideaalselt veel vanematega koos elavale noorukile. Suurt lisaväärtust annab ka avar teiselt korruselt avanev terrass.
Kõige alumisel korrusel on nn hobiruumid, kus eraldi köök ja mida võiks kasutada ka laste elamise ruumidena. Sealne kamin on vaid dekoratiivse iseloomuga ja ei ole mõeldud päris küttekaminana, kuid annab effekti siiski. Alumisel korrusel on ka jõusaal/sauna eesruum, eraldi wc ja saun koos pesuruumidega. Lisaks on veel eraldi sissepääsuga korraliku suurusega töötuba kus saab tegeleda näiteks puidutöö hobiga vms.
Ruumide paigutusest ülevaadet saamaks vaadake piltide juures olevaid korruste plaane.
Küte on nö kombineeritud küte - olemas on tulikivi ahi ja õhksoojuspumbad, millest uusim loob kütte esimese korruse radiaatoritesse ja teeb sooja vee. Kuna maja on korralik, paksude seintega kivimaja, siis arvestades korteri suurust on kulud küttele mõistlikud. Küsige minult kommunaalide arveid. Magamistubades on autonoomsed ventilatsioonid.
Internet on Telia kaabliga.
Lisaväärtust annavad veel maja ümber olev aiaga piiratud territoorium, kus ka KÜ poolt lastele batuut; kohe trepikoja kõrval asuvas garaazis 1/3 pinda, kuhu saab parkida 2 autot ja hoiustada näiteks talverehve jms; kinnistul asuv lastenurk kus pidada näiteks suviseid laste sünnipäevi ja kindlasti on märkimistvääriv maja oma tenniseväljak kus elanikud saavad teha trenni vastavalt kalendrile kuhu pannakse kirja omad väljaku kasutamise soovid.
Üldiselt võib seda korterit minu subjektiivsel hinnangul nimetada kiire elutempoga inimese majaks - olemas on eramaja hüved (naabritega puutub kokku vaid paar seina), sh grillimisvõimalused, vaade kaunisse aeda, aiaga piiratud territoorium, mitmed panipaigad jms, kuid hoolitseb kogu korterist välja jääva eest KÜ poolt palgatud isik.
Asukoht on mugav nii suurematele kui väiksematele - läheduses on lasteaed, ühistransport, Merivälja kool ja Haabneeme koolid. Paarisaja meetri kaugusel on uus lasteaed ja üle tee uus jalgpalli- ja kergejõustiku hall.
Kui Teid see pakkumine kõnetas võtke minuga ühendust ja räägime pikemalt või lepime kokku aja selle vägagi erilise kodu ülevaatuseks.
Pangad pakuvad Domus Kinnisvara klientidele eluasemelaenu lepingutasu soodustusi. Küsi lisainfot Domus Kinnisvara maaklerilt või hindajalt.
Müü ja hinda meiega! Teeme kinnisvara müügi Sinu jaoks sujuvaks ja pingevabaks.
Elupinna paigutus on läbi kolme korruse. Magamistube võiks lugeda neli. Esimese korruse eluruumid on nö põhikorrus kus avatud köögiga elutuba millest pääs terrassile, suur garderoobiga magamistuba, väiksem magamistuba ja pesuruum. Lisaks on esikus, kohe sissepääsu kõrval mahukas walk-in garderoob. Teist korrust saab iseloomustada kui eraldi asetsevat korterit - seal on trepihall, tuba ja selle taga veel üks magamistuba. See sobib ideaalselt veel vanematega koos elavale noorukile. Suurt lisaväärtust annab ka avar teiselt korruselt avanev terrass.
Kõige alumisel korrusel on nn hobiruumid, kus eraldi köök ja mida võiks kasutada ka laste elamise ruumidena. Sealne kamin on vaid dekoratiivse iseloomuga ja ei ole mõeldud päris küttekaminana, kuid annab effekti siiski. Alumisel korrusel on ka jõusaal/sauna eesruum, eraldi wc ja saun koos pesuruumidega. Lisaks on veel eraldi sissepääsuga korraliku suurusega töötuba kus saab tegeleda näiteks puidutöö hobiga vms.
Ruumide paigutusest ülevaadet saamaks vaadake piltide juures olevaid korruste plaane.
Küte on nö kombineeritud küte - olemas on tulikivi ahi ja õhksoojuspumbad, millest uusim loob kütte esimese korruse radiaatoritesse ja teeb sooja vee. Kuna maja on korralik, paksude seintega kivimaja, siis arvestades korteri suurust on kulud küttele mõistlikud. Küsige minult kommunaalide arveid. Magamistubades on autonoomsed ventilatsioonid.
Internet on Telia kaabliga.
Lisaväärtust annavad veel maja ümber olev aiaga piiratud territoorium, kus ka KÜ poolt lastele batuut; kohe trepikoja kõrval asuvas garaazis 1/3 pinda, kuhu saab parkida 2 autot ja hoiustada näiteks talverehve jms; kinnistul asuv lastenurk kus pidada näiteks suviseid laste sünnipäevi ja kindlasti on märkimistvääriv maja oma tenniseväljak kus elanikud saavad teha trenni vastavalt kalendrile kuhu pannakse kirja omad väljaku kasutamise soovid.
Üldiselt võib seda korterit minu subjektiivsel hinnangul nimetada kiire elutempoga inimese majaks - olemas on eramaja hüved (naabritega puutub kokku vaid paar seina), sh grillimisvõimalused, vaade kaunisse aeda, aiaga piiratud territoorium, mitmed panipaigad jms, kuid hoolitseb kogu korterist välja jääva eest KÜ poolt palgatud isik.
Asukoht on mugav nii suurematele kui väiksematele - läheduses on lasteaed, ühistransport, Merivälja kool ja Haabneeme koolid. Paarisaja meetri kaugusel on uus lasteaed ja üle tee uus jalgpalli- ja kergejõustiku hall.
Kui Teid see pakkumine kõnetas võtke minuga ühendust ja räägime pikemalt või lepime kokku aja selle vägagi erilise kodu ülevaatuseks.
Pangad pakuvad Domus Kinnisvara klientidele eluasemelaenu lepingutasu soodustusi. Küsi lisainfot Domus Kinnisvara maaklerilt või hindajalt.
Müü ja hinda meiega! Teeme kinnisvara müügi Sinu jaoks sujuvaks ja pingevabaks.























































