2026. aasta kevadel valmiv Raadiraja 14 kortermaja on kui neljas pusletükk Raadiraja Kvartali kaheksast kortermajast koosnevas projektis. See 4-korruseline liftiga maja pakub nutikalt planeeritud 2-, 3- ja 4-toalisi kortereid suuruses 46–84 m². Korterid sobivad hästi nii esimeseks koduks kui ka pere laienemise puhul, erinevalt Raadiraja 16 majast on siin saadaval avaramate planeeringutega korterid, sealhulgas ka 70+ m² 3-toalisi. Esimesel korrusel on privaatne hooviala ja terrass, teistel korrustel suured, ca 8m² rõdud. Kõigis korterites on jahutuse valmidus.
Hinnad:
• 2-toalised: 152 900 - 159 900 €
• 3-toalised: 185 900 – 212 900 €
• 4-toalised: MÜÜDUD
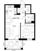
Raadiraja 14 maja 2-toaline korter nr 27 asub neljandal korrusel. Kodu koosneb esikust, avatud köögiga elutoast, magamistoast ja WC/duširuumist. Avar 8,2 m² rõdu on justkui sinu isiklik lisatuba vabas õhus. Siia mahub vabalt rohelusest pakatav botaanikaaed, suvine võrkkiik või väike hommikukohvi nurgake, kus päeva rahulikult alustada. Soovi korral saab rõdu klaasida, et nautida loodust igal aastaajal. Rõdu on sellel korteril roheluse ja metsa suunas, teisi maju vastas ei ole. 4. korruse korterid on Raadirajal hinnatud, sest liftiga majas saad igale korrusele ilma ühegi trepiastmeta, kuid kõrgemal on rohkem privaatsust ja valgust.
Et paremat ettekujutust saada, tule vaatama näidiskodu Raadiraja 10 majas, kus on olemas ka siseviimistlusmaterjalide näidised.
Lisade hindade kohta:
• Parkimiskoht: 2500 €
• Rattakoht kahetasandilises rattamajas: 700–900 € (olenevalt asukohast)
• Igal korteril on jahutuse valmidus, jahutussseadme saab juurde tellida lisatasu eest.
Köögid ei ole hinna sees, kuid kvaliteetsete köökide valmistaja Arens pakub soodsaid ja kaasaegseid lahendusi.
Tule ja koge seda ise – broneeri aeg ning tutvustan sulle nii Raadiraja kvartalit kui sinu uut võimalikku kodu. Siseviimistluspaketid ja lisainfo leiad: www.raadiraja.ee
Nb! Pildigalerii sisaldab illustreerivaid fotosid ning 2-toalise näidiskodu pilte.
Pangad pakuvad Domus Kinnisvara klientidele eluasemelaenu lepingutasu soodustusi. Küsi lisainfot Domus Kinnisvara maaklerilt või hindajalt.
Müü ja hinda meiega! Teeme kinnisvara müügi Sinu jaoks sujuvaks ja pingevabaks.
Hinnad:
• 2-toalised: 152 900 - 159 900 €
• 3-toalised: 185 900 – 212 900 €
• 4-toalised: MÜÜDUD
Raadiraja 14 maja 2-toaline korter nr 27 asub neljandal korrusel. Kodu koosneb esikust, avatud köögiga elutoast, magamistoast ja WC/duširuumist. Avar 8,2 m² rõdu on justkui sinu isiklik lisatuba vabas õhus. Siia mahub vabalt rohelusest pakatav botaanikaaed, suvine võrkkiik või väike hommikukohvi nurgake, kus päeva rahulikult alustada. Soovi korral saab rõdu klaasida, et nautida loodust igal aastaajal. Rõdu on sellel korteril roheluse ja metsa suunas, teisi maju vastas ei ole. 4. korruse korterid on Raadirajal hinnatud, sest liftiga majas saad igale korrusele ilma ühegi trepiastmeta, kuid kõrgemal on rohkem privaatsust ja valgust.
Et paremat ettekujutust saada, tule vaatama näidiskodu Raadiraja 10 majas, kus on olemas ka siseviimistlusmaterjalide näidised.
Lisade hindade kohta:
• Parkimiskoht: 2500 €
• Rattakoht kahetasandilises rattamajas: 700–900 € (olenevalt asukohast)
• Igal korteril on jahutuse valmidus, jahutussseadme saab juurde tellida lisatasu eest.
Köögid ei ole hinna sees, kuid kvaliteetsete köökide valmistaja Arens pakub soodsaid ja kaasaegseid lahendusi.
Tule ja koge seda ise – broneeri aeg ning tutvustan sulle nii Raadiraja kvartalit kui sinu uut võimalikku kodu. Siseviimistluspaketid ja lisainfo leiad: www.raadiraja.ee
Nb! Pildigalerii sisaldab illustreerivaid fotosid ning 2-toalise näidiskodu pilte.
Pangad pakuvad Domus Kinnisvara klientidele eluasemelaenu lepingutasu soodustusi. Küsi lisainfot Domus Kinnisvara maaklerilt või hindajalt.
Müü ja hinda meiega! Teeme kinnisvara müügi Sinu jaoks sujuvaks ja pingevabaks.








































