Kas unistad kodust, kus suvel varbaid muru kõdistaks ja hommikukohvi saad nautida omaenda rohelises oaasis? Siin see on – ruumikas ja stiilne 3-toaline korter privaatse hooviga, vaid 10-minutilise jalutuskäigu kaugusel Tartu kesklinnast!
Müügile on tulnud avar ja läbimõeldud planeeringuga 3-toaline korter, mis asub Jaama tänaval, Raatuse ja Jaama tn nurgal, Jaama 52 sisehoovis. Asukoht on ideaalne – kesklinn jääb vaid 10-minutilise jalutuskäigu kaugusele ning kõik eluks vajalik, nagu toidupoed, kool, lasteaed ja muud teenused, on samuti vaid lühikese jalutuskäigu kaugusel. See korter sobib suurepäraselt nii peredele kui ka neile, kes hindavad privaatsust ja rohelust oma koduhoovis.
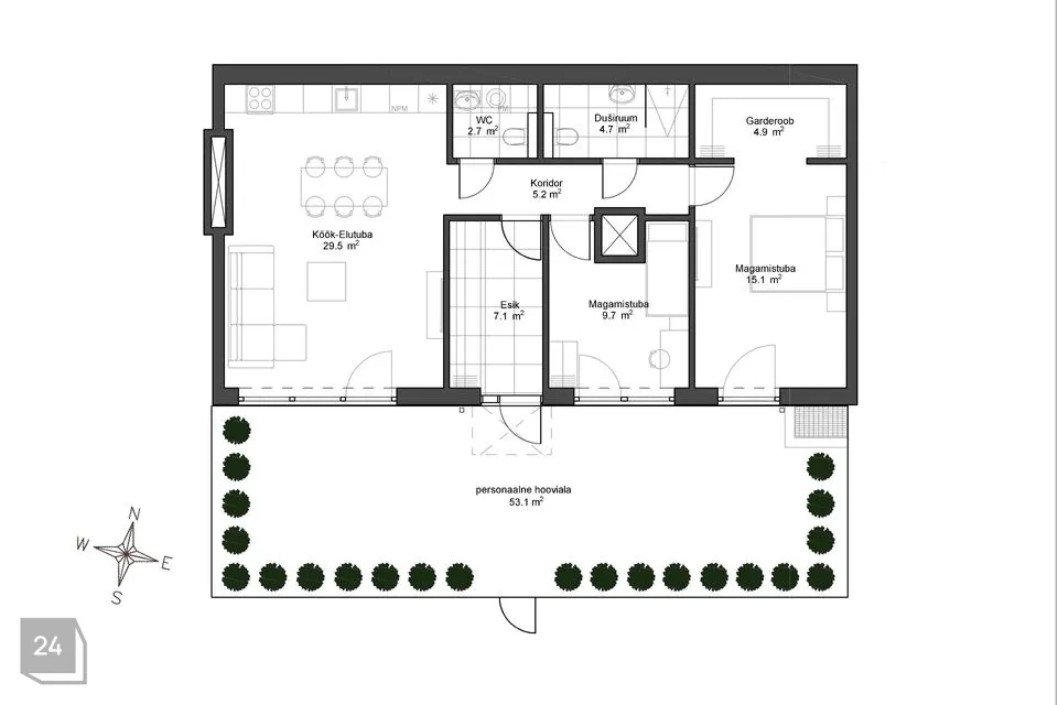
Korter on avara ja läbimõeldud planeeringuga, pakkudes ideaalset elukeskkonda nii peredele kui ka neile, kes hindavad privaatsust ja rohelust. Elutoa ja köögi (29,5 m²) avatud lahendus loob ruumikuse ning valgusküllase õhkkonna, samal ajal kui kaks magamistuba (15,1 m² ja 9,7 m²) tagavad hubasuse ja rahu. Suurima magamistoa juurde kuulub ka praktiline walk-in garderoob (4,9 m²), mis pakub rohkelt panipaika. Lisaks on korteris kaks eraldi sanitaarruumi – eraldi WC (2,7 m²) ning pesuruum koos tualetiga (4,7 m²), tagades mugavuse igapäevaelus.
Korteri tõeline pärl on selle privaatne hooviala (53,1 m²), kuhu pääseb otse kõigist tubadest. See on ideaalne koht, kus nautida hommikukohvi, lasta lastel turvaliselt mängida või veeta sumedaid suveõhtuid.
Korteri siseviimistluses on kasutatud kvaliteetseid materjale: seinad on värvitud heledates toonides, laed on viimistletud valgeks, eluruumide põrandaid katab naturaalne tammeparkett ning niisked ruumid ja esikupõrand on plaaditud keraamiliste plaatidega. Kodu südameks on köök ning sellesse korterisse on paigaldatud kvaliteetne ja funktsionaalne Arens köögimööbel koos integreeritud tehnikaga. Lisaks on korteris rohkelt panipaiku – esikus ootab teid mahukas garderoobikapp ning suure magamistoa juurde kuulub avar walk-in garderoob, mis tagab maksimaalse mugavuse ja hoiuruumi.
Maja keldrikorrusel asub soe panipaik ning korteri hinna sees on ka kindel parkimiskoht hoovis.
Kütmiseks kasutatakse vesipõrandakütet, mis põhineb linna keskküttesüsteemil ja on korteripõhise arvestusega. Samuti on korteris soojustagastusega sundventilatsioon, mis tagab energiasäästliku ja tervisliku sisekliima.
Terve hoovi territoorium on turvaline – piiratud aiaga, puldiga avatava väravaautomaatikaga ning fonolukusüsteemiga. Lisaks on elanike kasutuses 11-kohaline jalgrattamaja ning pere pisimatele on rajatud turvaline mänguväljak.
Kui oled otsimas kvaliteetset ja energiasäästlikku kodu suurepärase planeeringu ning privaatse hooviga, siis võta minuga ühendust ja tule vaatama – see võib olla just sinu unistuste kodu!
Pangad pakuvad Domus Kinnisvara klientidele eluasemelaenu lepingutasu soodustusi. Küsi lisainfot Domus Kinnisvara maaklerilt või hindajalt.
Müü ja hinda meiega! Teeme kinnisvara müügi Sinu jaoks sujuvaks ja pingevabaks.
Müügile on tulnud avar ja läbimõeldud planeeringuga 3-toaline korter, mis asub Jaama tänaval, Raatuse ja Jaama tn nurgal, Jaama 52 sisehoovis. Asukoht on ideaalne – kesklinn jääb vaid 10-minutilise jalutuskäigu kaugusele ning kõik eluks vajalik, nagu toidupoed, kool, lasteaed ja muud teenused, on samuti vaid lühikese jalutuskäigu kaugusel. See korter sobib suurepäraselt nii peredele kui ka neile, kes hindavad privaatsust ja rohelust oma koduhoovis.
Korter on avara ja läbimõeldud planeeringuga, pakkudes ideaalset elukeskkonda nii peredele kui ka neile, kes hindavad privaatsust ja rohelust. Elutoa ja köögi (29,5 m²) avatud lahendus loob ruumikuse ning valgusküllase õhkkonna, samal ajal kui kaks magamistuba (15,1 m² ja 9,7 m²) tagavad hubasuse ja rahu. Suurima magamistoa juurde kuulub ka praktiline walk-in garderoob (4,9 m²), mis pakub rohkelt panipaika. Lisaks on korteris kaks eraldi sanitaarruumi – eraldi WC (2,7 m²) ning pesuruum koos tualetiga (4,7 m²), tagades mugavuse igapäevaelus.
Korteri tõeline pärl on selle privaatne hooviala (53,1 m²), kuhu pääseb otse kõigist tubadest. See on ideaalne koht, kus nautida hommikukohvi, lasta lastel turvaliselt mängida või veeta sumedaid suveõhtuid.
Korteri siseviimistluses on kasutatud kvaliteetseid materjale: seinad on värvitud heledates toonides, laed on viimistletud valgeks, eluruumide põrandaid katab naturaalne tammeparkett ning niisked ruumid ja esikupõrand on plaaditud keraamiliste plaatidega. Kodu südameks on köök ning sellesse korterisse on paigaldatud kvaliteetne ja funktsionaalne Arens köögimööbel koos integreeritud tehnikaga. Lisaks on korteris rohkelt panipaiku – esikus ootab teid mahukas garderoobikapp ning suure magamistoa juurde kuulub avar walk-in garderoob, mis tagab maksimaalse mugavuse ja hoiuruumi.
Maja keldrikorrusel asub soe panipaik ning korteri hinna sees on ka kindel parkimiskoht hoovis.
Kütmiseks kasutatakse vesipõrandakütet, mis põhineb linna keskküttesüsteemil ja on korteripõhise arvestusega. Samuti on korteris soojustagastusega sundventilatsioon, mis tagab energiasäästliku ja tervisliku sisekliima.
Terve hoovi territoorium on turvaline – piiratud aiaga, puldiga avatava väravaautomaatikaga ning fonolukusüsteemiga. Lisaks on elanike kasutuses 11-kohaline jalgrattamaja ning pere pisimatele on rajatud turvaline mänguväljak.
Kui oled otsimas kvaliteetset ja energiasäästlikku kodu suurepärase planeeringu ning privaatse hooviga, siis võta minuga ühendust ja tule vaatama – see võib olla just sinu unistuste kodu!
Pangad pakuvad Domus Kinnisvara klientidele eluasemelaenu lepingutasu soodustusi. Küsi lisainfot Domus Kinnisvara maaklerilt või hindajalt.
Müü ja hinda meiega! Teeme kinnisvara müügi Sinu jaoks sujuvaks ja pingevabaks.



































