Kas sa tahaksid elada privaatses looduslähedases piirkonnas eemal suuremast linnamelust, kuid siiski kesklinnale mugavalt lähedal? LADVAOTSA KODUD pakuvad kõike seda ja rohkem veel. Lääne 14 korterelamus on 34 stiilset erineva suurusega korterit pakkudes valikut nii investorile, esimest kodu otsivatele noortele kui ka peredele. Korterelamu on valmis!
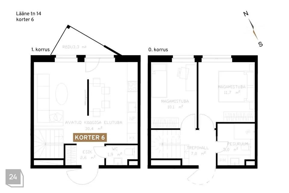
Müüdava korteri suletud netopindala on 68,70 m2, millele lisandub 3,3 m2 suurune rõdu. Korter paikneb läbi kahe korruse. 1. korrusel on esik, avatud köögiga elutuba ja wc ning 0. korrusel on kaks magamistuba ja duširuum-wc. Korteri hind sisaldab lõplikku siseviimistlust. Eluruumi põrandatele on parkett, seinad ja laed värvitud. San. ruumide seinad ja põrandad plaaditud ning paigaldatud sanitaartehnika (wc-pott, kraanikauss, dušisegisti).
Tänu iga korteri juurde kuuluvale hubastele rõdudele saad nautida päikest ja värsket õhku aastaringselt. Ruumipuuduse pärast ei ole vaja muretseda, keldrikorruse panipaigas on piisavalt ruumi hooajaliste asjade jaoks. Oma auto saad parkida rahulikult elamu juures olevasse avarasse parklasse. Kui eelistad oma igapäevasõite teha jalgrattaga, saad ratast hoida elamu keldrikorrusel paiknevas eraldi rattaruumis.
Uues korterelamus ei ole vaja muret tunda kõrgete energiahindade ja suure süsinikujalajälje maha jätmise pärast - liginullenergia hoones on väga madalad küttekulud. Kasutusel on kaugküte, mis on Tartu kõige rohelisem ja soodsam. Mõnusa sisekliima tagab soojustagastusega ventilatsioon. Lisaks toodavad katusel olevad päikesepaneelid osa vajaminevast elektrienergiast.
Parkimiskoht tuleb korterile lisaks osta, mis maksab 3000 €.
Rohkem infot: www.ladvaotsa.ee
NB! Kuulutuse juurde lisatud pildid on illustratiivsed.
Müüdava korteri suletud netopindala on 68,70 m2, millele lisandub 3,3 m2 suurune rõdu. Korter paikneb läbi kahe korruse. 1. korrusel on esik, avatud köögiga elutuba ja wc ning 0. korrusel on kaks magamistuba ja duširuum-wc. Korteri hind sisaldab lõplikku siseviimistlust. Eluruumi põrandatele on parkett, seinad ja laed värvitud. San. ruumide seinad ja põrandad plaaditud ning paigaldatud sanitaartehnika (wc-pott, kraanikauss, dušisegisti).
Tänu iga korteri juurde kuuluvale hubastele rõdudele saad nautida päikest ja värsket õhku aastaringselt. Ruumipuuduse pärast ei ole vaja muretseda, keldrikorruse panipaigas on piisavalt ruumi hooajaliste asjade jaoks. Oma auto saad parkida rahulikult elamu juures olevasse avarasse parklasse. Kui eelistad oma igapäevasõite teha jalgrattaga, saad ratast hoida elamu keldrikorrusel paiknevas eraldi rattaruumis.
Uues korterelamus ei ole vaja muret tunda kõrgete energiahindade ja suure süsinikujalajälje maha jätmise pärast - liginullenergia hoones on väga madalad küttekulud. Kasutusel on kaugküte, mis on Tartu kõige rohelisem ja soodsam. Mõnusa sisekliima tagab soojustagastusega ventilatsioon. Lisaks toodavad katusel olevad päikesepaneelid osa vajaminevast elektrienergiast.
Parkimiskoht tuleb korterile lisaks osta, mis maksab 3000 €.
Rohkem infot: www.ladvaotsa.ee
NB! Kuulutuse juurde lisatud pildid on illustratiivsed.


















