Müügile on tulnud erilise iseloomuga katusekorter Kalamaja südames mere ja linna vahel.
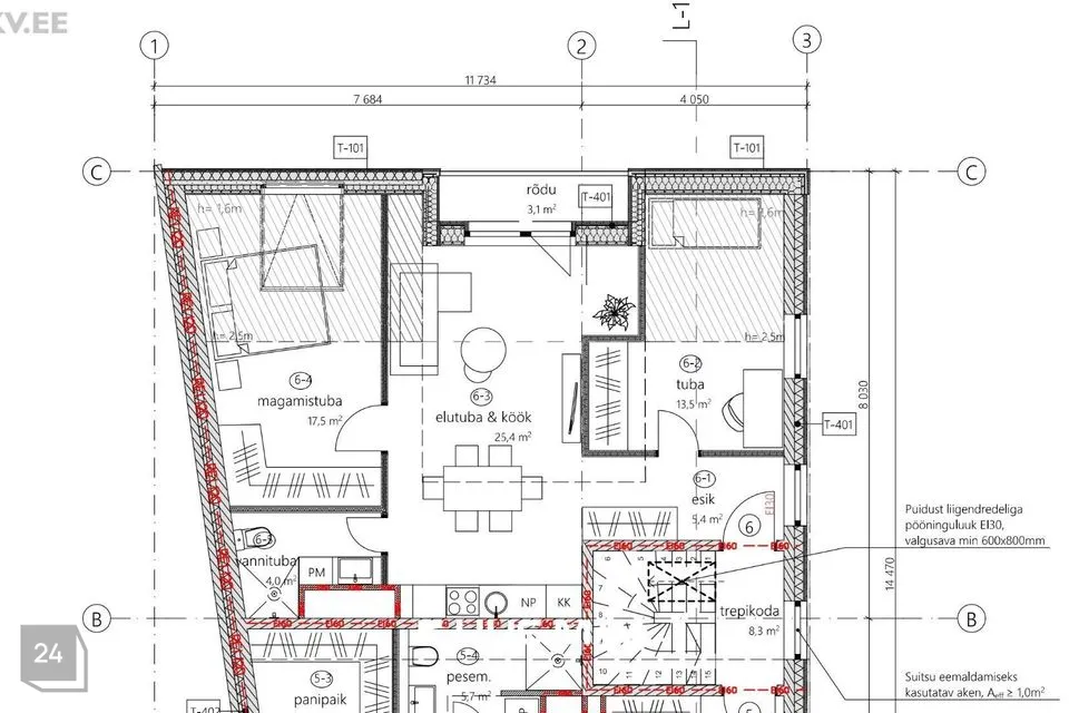
Korteri koosseisu kuulub avatud köögiga elutuba; hoovipoolne rõdu; seinakappidega varustatud magamistoad; duširuum ja WC ning esik.
Korter on viimistletud heledates skandidaavia toonides. Põrandaid katab naturaalne tammespoonparkett. Köök on varustatud integreeritud induktsioonpliidi, praeahju, nõudepesumasina, külmkapi ja valamuga.
Maja küttesüsteem on gaasipõhine ning soojus juhitakse korteritesse vesipõrandakütte abil. Lisaks kuulub maja varustuse hulka ka soojustagastusega ventilatsioon.
Korteri kõrvalkulud on väga mõistliku suurusega. Küsi maaklerilt näiteid.
Tööstuse 16 on üks väheseid asukohti Kalamajas, kus on mugav logistika ka autoomanikule.
Samas asub Kalamaja põhitänav koos restoranide ja kohvikutega vaid veerandi kilomeetri kaugusel ehk siit jõuad kõikjale ka jalgsi minnes.
Gustav Adolfi Gümnaasium 300m
Balti Jaama Turg 500m
Uus-Volta 500m
Kalaranna 700m
Noblessner 700m
Parkimise jaoks on notariaalselt eraldatud üks koht kinnises hoovis.
Asjade hoiustamiseks on loodud ühine hoiuruum esimesel korrusel.
Hoovis asub ka puhke- ja mängunurk.
Tunned, et hing karjub uusarenduste nelja seina vahel, kuid soovid siiski uut maja ja kaasaegseid mugavusi?
Tule tutvuma selle väärt pakkumisega!
JAGA MINU KONTAKTI KÕIGILE, KES VAJAVAD KINNISVARANÕU!
- - - - - - - - - -
Telli hindamine UUS MAA Kinnisvarabüroolt https://uusmaa.ee/teenused/hindamine/
ning saad:
- Eksperthinnangu kuni 20% soodsamalt kui võtad koduga seotud laenu Swedbankist
- Pankadest parimad kodulaenutingimused
- Kiire, kvaliteetse ning usaldusväärse hindamisteenuse Eestis
UUS MAA KINNISVARABÜROO EKSPERTHINNANGUID AKTSEPTEERIVAD KÕIK FINANTSASUTUSED.
- - - - - - - - - -
Liitu Uus Maa uudiskirjaga ja saa homset kinnisvarainfot juba täna!
https://www.uusmaa.ee/uudiskirjagaliitumine/
- - - - - - - - - -
Kodu aitab osta Swedbank.
Pakkumise saamiseks kasuta koodi UUSMAA ja Sind teenindatakse eelisjärjekorras.
Võtame ühendust 1 tööpäeva jooksul.
Uus Maa kliendile soodsam lepingutasu. Küsi täpsemat infot maaklerilt.
Finantsteenuseid pakub Swedbank AS. Tutvu tingimustega, pea nõu.
Korteri koosseisu kuulub avatud köögiga elutuba; hoovipoolne rõdu; seinakappidega varustatud magamistoad; duširuum ja WC ning esik.
Korter on viimistletud heledates skandidaavia toonides. Põrandaid katab naturaalne tammespoonparkett. Köök on varustatud integreeritud induktsioonpliidi, praeahju, nõudepesumasina, külmkapi ja valamuga.
Maja küttesüsteem on gaasipõhine ning soojus juhitakse korteritesse vesipõrandakütte abil. Lisaks kuulub maja varustuse hulka ka soojustagastusega ventilatsioon.
Korteri kõrvalkulud on väga mõistliku suurusega. Küsi maaklerilt näiteid.
Tööstuse 16 on üks väheseid asukohti Kalamajas, kus on mugav logistika ka autoomanikule.
Samas asub Kalamaja põhitänav koos restoranide ja kohvikutega vaid veerandi kilomeetri kaugusel ehk siit jõuad kõikjale ka jalgsi minnes.
Gustav Adolfi Gümnaasium 300m
Balti Jaama Turg 500m
Uus-Volta 500m
Kalaranna 700m
Noblessner 700m
Parkimise jaoks on notariaalselt eraldatud üks koht kinnises hoovis.
Asjade hoiustamiseks on loodud ühine hoiuruum esimesel korrusel.
Hoovis asub ka puhke- ja mängunurk.
Tunned, et hing karjub uusarenduste nelja seina vahel, kuid soovid siiski uut maja ja kaasaegseid mugavusi?
Tule tutvuma selle väärt pakkumisega!
JAGA MINU KONTAKTI KÕIGILE, KES VAJAVAD KINNISVARANÕU!
- - - - - - - - - -
Telli hindamine UUS MAA Kinnisvarabüroolt https://uusmaa.ee/teenused/hindamine/
ning saad:
- Eksperthinnangu kuni 20% soodsamalt kui võtad koduga seotud laenu Swedbankist
- Pankadest parimad kodulaenutingimused
- Kiire, kvaliteetse ning usaldusväärse hindamisteenuse Eestis
UUS MAA KINNISVARABÜROO EKSPERTHINNANGUID AKTSEPTEERIVAD KÕIK FINANTSASUTUSED.
- - - - - - - - - -
Liitu Uus Maa uudiskirjaga ja saa homset kinnisvarainfot juba täna!
https://www.uusmaa.ee/uudiskirjagaliitumine/
- - - - - - - - - -
Kodu aitab osta Swedbank.
Pakkumise saamiseks kasuta koodi UUSMAA ja Sind teenindatakse eelisjärjekorras.
Võtame ühendust 1 tööpäeva jooksul.
Uus Maa kliendile soodsam lepingutasu. Küsi täpsemat infot maaklerilt.
Finantsteenuseid pakub Swedbank AS. Tutvu tingimustega, pea nõu.


































































