Kesklinna lähedus, väiksema tänava ääres
2015.a. valminud kortermaja
Korteri hea seisukord
Hoovipoolne planeering teisel korrusel
Lõunapäikesele avatud rõdu 7,2 m²
Parkimiskoht soojas garaažis (sisaldub hinnas)
KORTER
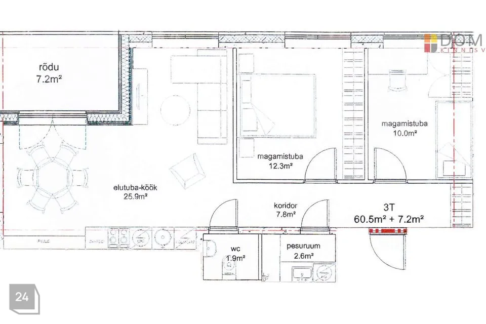
Korter paikneb teisel korrusel ja on oma ruumilahenduselt mugav ning praktiline. Korteri südameks on avatud köögiga elutuba, kust on pääs katusega rõdule, mis on ideaalse asetusega ilmakaarte suhtes - paistab nii lõuna- kui õhtupäike. Siit on ka avarad vaated ümbrusele. Magamistoad jäävad korteri teise otsa. Duširuum ja wc paiknevad eraldi. Korteri välisukse kõrvale jääb hästi peidetud walk-in garderoob, mis mahutab nii mõndagi ja on sügavam kui esialgu tundub.
Korterit on heaperemehelikult hoitud ja viimistlust on jooksvalt värskendatud, viimased värvitööd tehti käesoleva aasta jaanuaris. Köögimööbel on moodne, funktsionaalne ning kogu tehnika töökorras. Korteri praeguse omaniku suureks armastuseks on köögis paiknev ratastel liigutatav köögisaar, millel on mitu funktsiooni (abipind toiduvalmistamisel, baarilett, asjade hoiustamise koht). Korteri põrandaid katab naturaalparkett, esiku osas keraamiline plaat, seinapinnad on kõik värvitud ja lihtne uuendada oma maitse järgi. Soovi korral läheb uuele omanikule üle kogu mööbel.
KORTERMAJA
4-korruseline ja 25-korteriga hoone valmis 2015.a. Nordlin Ehituse poolt. Hoones on gaasiküte ja korterites radiaatorid. Igapäevase korrashoiu eest hoolitseb korteriühistu koostöös haldusfirmaga. Kui trepist kõndida ei armasta, siis on hoones olemas lift. Maja hoov on suletud lukustatavate väravatega. Hoonele on väljastatud energiaklass C (energiamärgise kehtivus lõppes aprill 2025).
PARKIMISKOHT, PANIPAIK
Korteri kasutada on parkimiskoht majaaluses soojas garaažis, mis läheb uuele omanikule üle vastavalt notariaalsele kasutuskorra kokkuleppele. Muu parkimisvõimalus on ümberkaudsete avalike tänavate ääres (tasuline kesklinna piirkond) ja tasulistel parkimisplatsidel. Garaaži sissesõit on Katusepapi tn poolt, autovärav avaneb puldist. Hoones eraldi panipaigad puuduvad, kuid rataste hoiustamiseks on trepikoja vahekorrustel ette nähtud spetsiaalsed rattahoiu kohad.
Korteriomandi üldpind on 67,7 m², millest korteri suletud netopind on 60,5 m² ja rõdu 7,2 m².
Korteri kommunaalarved on väga mõistlikud, suvised kulud ca 140 eurot, talvised ca 200 eurot.
Korter on koheselt vaba ja ootab uusi omanikke.
Logistiliselt tõesti hea asukoht, kuna kõik vajalik on käe-jala juures. Mugav ja kiire liikuda ühistranspordi või autoga. Sikupilli kaubanduskeskus jalutuskäigu kaugusel.
Kui pakkumine tundub põnev, anna märku ja vaatame koos üle.
Pangad pakuvad Domus Kinnisvara klientidele eluasemelaenu lepingutasu soodustusi. Küsi lisainfot Domus Kinnisvara maaklerilt või hindajalt.
Müü ja hinda meiega! Teeme kinnisvara müügi Sinu jaoks sujuvaks ja pingevabaks.
2015.a. valminud kortermaja
Korteri hea seisukord
Hoovipoolne planeering teisel korrusel
Lõunapäikesele avatud rõdu 7,2 m²
Parkimiskoht soojas garaažis (sisaldub hinnas)
KORTER
Korter paikneb teisel korrusel ja on oma ruumilahenduselt mugav ning praktiline. Korteri südameks on avatud köögiga elutuba, kust on pääs katusega rõdule, mis on ideaalse asetusega ilmakaarte suhtes - paistab nii lõuna- kui õhtupäike. Siit on ka avarad vaated ümbrusele. Magamistoad jäävad korteri teise otsa. Duširuum ja wc paiknevad eraldi. Korteri välisukse kõrvale jääb hästi peidetud walk-in garderoob, mis mahutab nii mõndagi ja on sügavam kui esialgu tundub.
Korterit on heaperemehelikult hoitud ja viimistlust on jooksvalt värskendatud, viimased värvitööd tehti käesoleva aasta jaanuaris. Köögimööbel on moodne, funktsionaalne ning kogu tehnika töökorras. Korteri praeguse omaniku suureks armastuseks on köögis paiknev ratastel liigutatav köögisaar, millel on mitu funktsiooni (abipind toiduvalmistamisel, baarilett, asjade hoiustamise koht). Korteri põrandaid katab naturaalparkett, esiku osas keraamiline plaat, seinapinnad on kõik värvitud ja lihtne uuendada oma maitse järgi. Soovi korral läheb uuele omanikule üle kogu mööbel.
KORTERMAJA
4-korruseline ja 25-korteriga hoone valmis 2015.a. Nordlin Ehituse poolt. Hoones on gaasiküte ja korterites radiaatorid. Igapäevase korrashoiu eest hoolitseb korteriühistu koostöös haldusfirmaga. Kui trepist kõndida ei armasta, siis on hoones olemas lift. Maja hoov on suletud lukustatavate väravatega. Hoonele on väljastatud energiaklass C (energiamärgise kehtivus lõppes aprill 2025).
PARKIMISKOHT, PANIPAIK
Korteri kasutada on parkimiskoht majaaluses soojas garaažis, mis läheb uuele omanikule üle vastavalt notariaalsele kasutuskorra kokkuleppele. Muu parkimisvõimalus on ümberkaudsete avalike tänavate ääres (tasuline kesklinna piirkond) ja tasulistel parkimisplatsidel. Garaaži sissesõit on Katusepapi tn poolt, autovärav avaneb puldist. Hoones eraldi panipaigad puuduvad, kuid rataste hoiustamiseks on trepikoja vahekorrustel ette nähtud spetsiaalsed rattahoiu kohad.
Korteriomandi üldpind on 67,7 m², millest korteri suletud netopind on 60,5 m² ja rõdu 7,2 m².
Korteri kommunaalarved on väga mõistlikud, suvised kulud ca 140 eurot, talvised ca 200 eurot.
Korter on koheselt vaba ja ootab uusi omanikke.
Logistiliselt tõesti hea asukoht, kuna kõik vajalik on käe-jala juures. Mugav ja kiire liikuda ühistranspordi või autoga. Sikupilli kaubanduskeskus jalutuskäigu kaugusel.
Kui pakkumine tundub põnev, anna märku ja vaatame koos üle.
Pangad pakuvad Domus Kinnisvara klientidele eluasemelaenu lepingutasu soodustusi. Küsi lisainfot Domus Kinnisvara maaklerilt või hindajalt.
Müü ja hinda meiega! Teeme kinnisvara müügi Sinu jaoks sujuvaks ja pingevabaks.


































