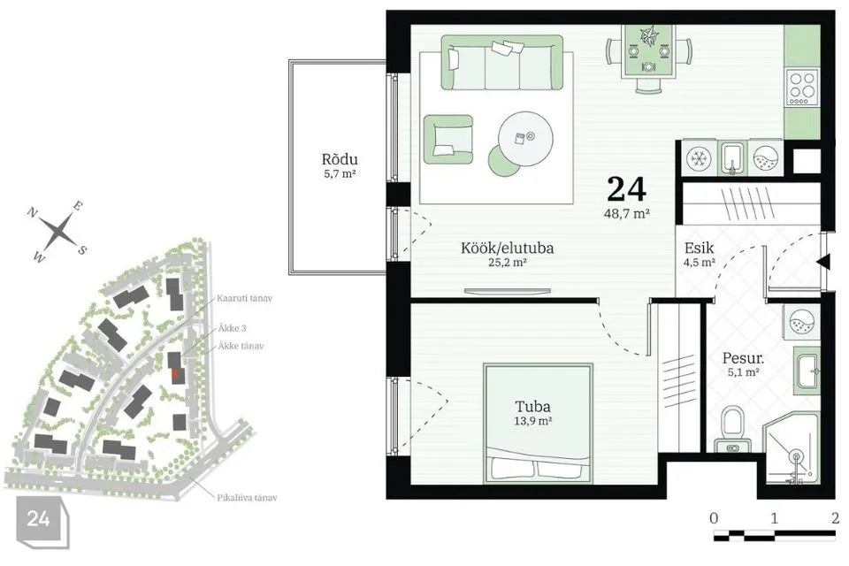
Müüa avar korter panipaigaga ning oma parkimiskohaga!
Hubane ja valgusküllane korter läbimõeldud planeeringuga.
Peamised eelised:
• Ruumikas panipaik (2,8 m²) asjade hoiustamiseks.
• Oma parkimiskoht + võimalus parkida maja kõrval otse sissepääsu vastas – parkimisega probleeme ei ole.
• Kolmekordne klaaspakett akendel – täielik rahu ja vaikus, tänavamüra ei kostu.
• Sundventilatsioon – värske õhk igal ajal.
• Videoga fonolukk teie turvalisuse tagamiseks.
• Korter on avar, köök asub nišis, mis loob mugavuse ja hubasuse. Paigaldatud on kvaliteetne Electroluxi köögitehnika.
• Aknad avanevad loode suunas – suvel on korteris jahe.
Maja asukoht:
• Vaikne ja rahulik piirkond, hoovides on mänguväljakud.
• Lähedal Harku järv, kaunid jalutuskohad.
• Jalutuskäigu kaugusel kaubanduskeskused, busside lõpp-peatus Väike-Õismäe.
• Lähedal Tallinna loomaaed, vabaõhumuuseum, Rocca al Mare promenaad.
• Ööpäevaringselt avatud tankla läheduses.
• Suurepärane transpordiühendus.
See korter on ideaalne valik neile, kes hindavad mugavust, vaikust ja head asukohta!
Maakleritel, kinnisvaramüügiagentidel ega koostööpartneritel palun mitte tülitada.
Ei luba enda kuulutust kopeerida




































