Oma kodu otsides on olulised nii ilus vaade, läbimõeldud planeering kui igapäevane mugavus. Rannakalda residentsis ootab sind kahetoaline kodu, mis ühendab kõik need väärtused.
Korteri eelised:
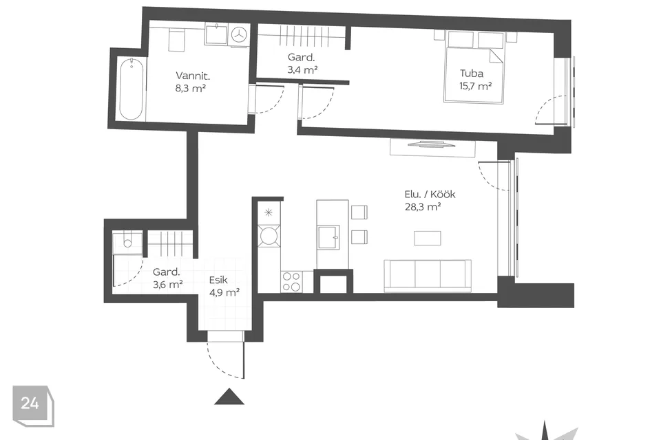
• Avar köök-elutuba koos köögisaare ja kvaliteetse tehnikaga.
• Ruumikas magamistuba, kuhu mahub ka kodukontorinurk.
• Nii esikus kui magamistoas praktiline walk-in garderoob.
• Igapäevaelu muudavad mugavamaks looduslikud toonid, naturaalne tammeparkett ning vannitoa ja esiku terrazzo-mustriga plaadid.
• Vannitoas kvaliteetne Villeroy & Boch sanitaartehnika.
Maja ja keskkond:
Rannakalda on Kodulahe kvartali kõige merepoolsem ja uuem maja – ideaalne valik neile, kes hindavad merelähedust, loodust ja kaasaegseid mugavusi.
• A-energiaklass ja madalad kõrvalkulud
• Vesipõrandaküte ja soojustagastusega ventilatsioon
• Näotuvastusega välisuks – turvaline ja mugav
• Jalgrataste hoiuala ning maa-alune parkla Enefit Volti laadimisvalmidusega
• Meri, mets ja sportimisvõimalused vaid sammu kaugusel
Asukoht:
Kodulahe kvartal asub Stroomi ranna ja Merimetsa vahel – loodus on koduuksest paari minuti kaugusel, kuid Tallinna südalinna jõuad kümne minutiga.
• Läheduses on terviserajad, koolid, lasteaiad ja haigla.
• Kvartalis endas ootab oma pagarikoda ja pitsarestoran.
See on täiuslik elukeskkond aktiivsele ja perele suunatud elustiilile.
Arendaja – Arco Vara:
Loome kodusid, kus ise tahaksime elada. Kodulahe Rannakalda on rohkem kui maja – see on kogukond, kus väärtustatakse ilu, kestvust ja häid suhteid.
Lisainfo:
• Korteri hinnale lisandub parkimiskoht 14 000 € ja panipaik 3 000 €.
• Vaata kõiki saadavalolevaid kodusid: www.kodulahe.ee
Korteri eelised:
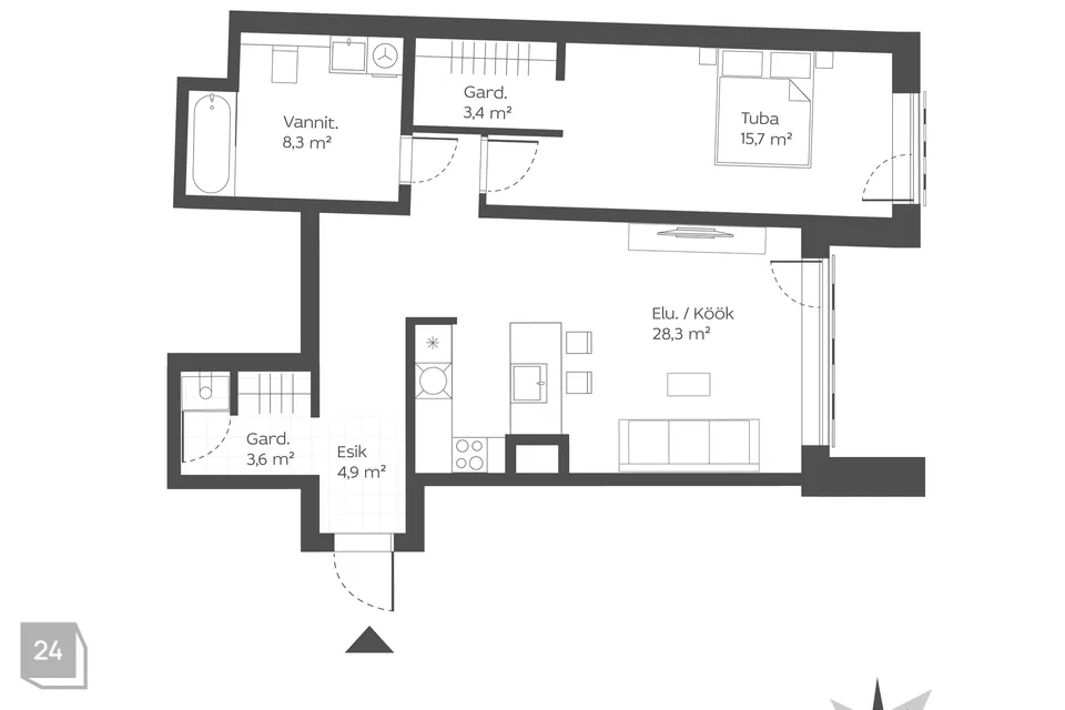
• Avar köök-elutuba koos köögisaare ja kvaliteetse tehnikaga.
• Ruumikas magamistuba, kuhu mahub ka kodukontorinurk.
• Nii esikus kui magamistoas praktiline walk-in garderoob.
• Igapäevaelu muudavad mugavamaks looduslikud toonid, naturaalne tammeparkett ning vannitoa ja esiku terrazzo-mustriga plaadid.
• Vannitoas kvaliteetne Villeroy & Boch sanitaartehnika.
Maja ja keskkond:
Rannakalda on Kodulahe kvartali kõige merepoolsem ja uuem maja – ideaalne valik neile, kes hindavad merelähedust, loodust ja kaasaegseid mugavusi.
• A-energiaklass ja madalad kõrvalkulud
• Vesipõrandaküte ja soojustagastusega ventilatsioon
• Näotuvastusega välisuks – turvaline ja mugav
• Jalgrataste hoiuala ning maa-alune parkla Enefit Volti laadimisvalmidusega
• Meri, mets ja sportimisvõimalused vaid sammu kaugusel
Asukoht:
Kodulahe kvartal asub Stroomi ranna ja Merimetsa vahel – loodus on koduuksest paari minuti kaugusel, kuid Tallinna südalinna jõuad kümne minutiga.
• Läheduses on terviserajad, koolid, lasteaiad ja haigla.
• Kvartalis endas ootab oma pagarikoda ja pitsarestoran.
See on täiuslik elukeskkond aktiivsele ja perele suunatud elustiilile.
Arendaja – Arco Vara:
Loome kodusid, kus ise tahaksime elada. Kodulahe Rannakalda on rohkem kui maja – see on kogukond, kus väärtustatakse ilu, kestvust ja häid suhteid.
Lisainfo:
• Korteri hinnale lisandub parkimiskoht 14 000 € ja panipaik 3 000 €.
• Vaata kõiki saadavalolevaid kodusid: www.kodulahe.ee
--
Müüme, hindame ja teeme Sinu kinnisvara dokumendid korda - iga päev, suurima rõõmu ja pühendumisega!
Edasta müügisoov www.arcovara.ee/et/#edasta-myygisoov
Telli hindamine www.arcovara.ee/et/#telli-hindamine
Saada ehitus- või kasutusloa soov seadustamine.arcovara.ee


















