KIRJELDUS
Müüa loogilise planeeringuga kesklinnakodu Raua ja Kreutzwaldi tänava nurgal, väärikas esimese vabariigi aegses kivimajas.
KORTER:
Korteri koosseisu kuulub:
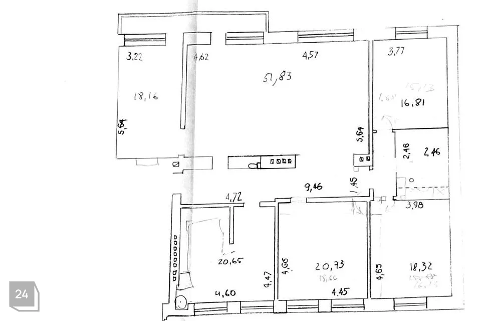
Esik, suur elutuba/saal, eraldi asetsev köök, neli magamistuba, kaks vannituba ja kaks hoovipoolset rõdu.
Suurused:
Esik ca 14 m2
Köök ca 21 m2
Elutuba ca 52 m2
I magamistuba ca 18 m2
II magamistuba ca 21 m2
III magamistuba ca 19 m2
IV magamistuba ca 18 m2
vannituba ca 6 m2
dušširuum ca 2 m2
MAJA:
Miljööväärtuslikus piirkonnas asuv väärikas 1937. aastal valminud kivimaja on projekteerinud arhitekt Elmar Lohk. Maja tellija oli ehitusettevõtja Voldemar Kilkmees, kelle neljakorruseline äripindadega korterelamu töötas üürimajana, kus üüris korterit ka tollane kohalik Läti peakonsul R. Aavakivi. Maja esimesel korrusel, ärikorrusel, asusid tarbijateühistu „Oma“ koloniaalkauplus, juukselõikusäri, puuviljakauplus. Täna teame seda disainvalgusteid müüva Laterna Magica poena.
ÜMBRUSKOND:
Praktiliselt kõrval on 21. Kool ja ka teised südalinna koolid on jalutuskäigu kaugusel. Kõik eluks vajalik -pargid, meri, restoranid-kohvikud nind poed on samuti läheduses.
ESINDUSLIK JA AVAR KODU KADRIORU PIIRIL OOTAB SIND!
JAGA MINU KONTAKTI KÕIGILE, KES VAJAVAD KINNISVARANÕU!
- - - - - - - - - -
Telli hindamine UUS MAA Kinnisvarabüroolt https://uusmaa.ee/teenused/hindamine/
ning saad:
- Eksperthinnangu kuni 20% soodsamalt kui võtad koduga seotud laenu Swedbankist
- Pankadest parimad kodulaenutingimused
- Kiire, kvaliteetse ning usaldusväärse hindamisteenuse Eestis
UUS MAA KINNISVARABÜROO EKSPERTHINNANGUID AKTSEPTEERIVAD KÕIK FINANTSASUTUSED.
- - - - - - - - - -
Liitu Uus Maa uudiskirjaga ja saa homset kinnisvarainfot juba täna!
https://www.uusmaa.ee/uudiskirjagaliitumine/
- - - - - - - - - -
Kodu aitab osta Swedbank.
Pakkumise saamiseks kasuta koodi UUSMAA ja Sind teenindatakse eelisjärjekorras.
Võtame ühendust 1 tööpäeva jooksul.
Uus Maa kliendile soodsam lepingutasu. Küsi täpsemat infot maaklerilt.
Finantsteenuseid pakub Swedbank AS. Tutvu tingimustega, pea nõu.
Müüa loogilise planeeringuga kesklinnakodu Raua ja Kreutzwaldi tänava nurgal, väärikas esimese vabariigi aegses kivimajas.
KORTER:
Korteri koosseisu kuulub:
Esik, suur elutuba/saal, eraldi asetsev köök, neli magamistuba, kaks vannituba ja kaks hoovipoolset rõdu.
Suurused:
Esik ca 14 m2
Köök ca 21 m2
Elutuba ca 52 m2
I magamistuba ca 18 m2
II magamistuba ca 21 m2
III magamistuba ca 19 m2
IV magamistuba ca 18 m2
vannituba ca 6 m2
dušširuum ca 2 m2
MAJA:
Miljööväärtuslikus piirkonnas asuv väärikas 1937. aastal valminud kivimaja on projekteerinud arhitekt Elmar Lohk. Maja tellija oli ehitusettevõtja Voldemar Kilkmees, kelle neljakorruseline äripindadega korterelamu töötas üürimajana, kus üüris korterit ka tollane kohalik Läti peakonsul R. Aavakivi. Maja esimesel korrusel, ärikorrusel, asusid tarbijateühistu „Oma“ koloniaalkauplus, juukselõikusäri, puuviljakauplus. Täna teame seda disainvalgusteid müüva Laterna Magica poena.
ÜMBRUSKOND:
Praktiliselt kõrval on 21. Kool ja ka teised südalinna koolid on jalutuskäigu kaugusel. Kõik eluks vajalik -pargid, meri, restoranid-kohvikud nind poed on samuti läheduses.
ESINDUSLIK JA AVAR KODU KADRIORU PIIRIL OOTAB SIND!
JAGA MINU KONTAKTI KÕIGILE, KES VAJAVAD KINNISVARANÕU!
- - - - - - - - - -
Telli hindamine UUS MAA Kinnisvarabüroolt https://uusmaa.ee/teenused/hindamine/
ning saad:
- Eksperthinnangu kuni 20% soodsamalt kui võtad koduga seotud laenu Swedbankist
- Pankadest parimad kodulaenutingimused
- Kiire, kvaliteetse ning usaldusväärse hindamisteenuse Eestis
UUS MAA KINNISVARABÜROO EKSPERTHINNANGUID AKTSEPTEERIVAD KÕIK FINANTSASUTUSED.
- - - - - - - - - -
Liitu Uus Maa uudiskirjaga ja saa homset kinnisvarainfot juba täna!
https://www.uusmaa.ee/uudiskirjagaliitumine/
- - - - - - - - - -
Kodu aitab osta Swedbank.
Pakkumise saamiseks kasuta koodi UUSMAA ja Sind teenindatakse eelisjärjekorras.
Võtame ühendust 1 tööpäeva jooksul.
Uus Maa kliendile soodsam lepingutasu. Küsi täpsemat infot maaklerilt.
Finantsteenuseid pakub Swedbank AS. Tutvu tingimustega, pea nõu.

































