Müüa värskelt renoveeritud 4-toaline korter!
Korter on valmis sissekolimiseks!
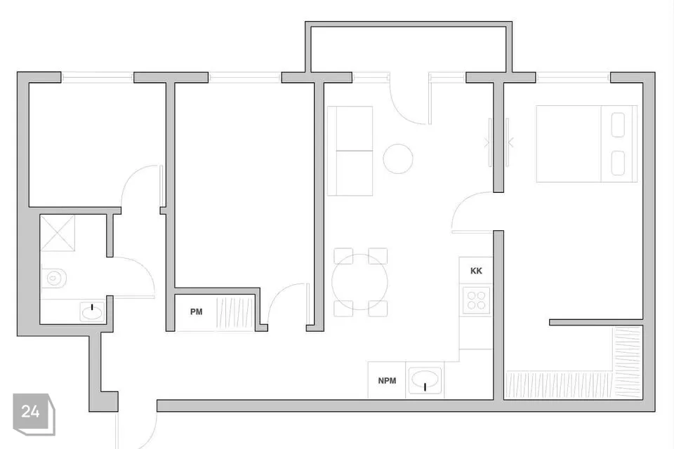
KORTER
Müügile on tulnud täielikult renoveeritud neljatoaline korter, mis asub viiekorruselise maja neljandal korrusel vaikses ja rahulikus piirkonnas. Korteri planeering on muudetud vastavalt projektile ja kasutusloale. Sa võid olla selle hiljuti renoveeritud kodu esimene omanik!
Korteri koosseisu kuuluvad esik, millest avaneb uks ruumikasse ja stiilsesse vannituppa. Vannitoas on põrandasoojendus ning lahtikäiv dušisein. Kogu torustik vannitoas on värskelt vahetatud.
Põrandaid katab kvaliteetne puitparkett, mis on laminaadist erinevalt jala all soe ja mugav. Samuti on korteris vahetatud kogu elektrijuhtmestik.
Elutuba on ühendatud avatud köögiga, mis on varustatud eritellimusel valmistatud köögimööbli ja kaasaegse tehnikaga, sh integreeritava nõudepesumasina, köögikubu ning eraldiseisva integreeritava külmkapiga. Pesumasin on paigaldatud esiku garderoobikappi.
Elutoas on mugav diivan Eesti tootjalt ning valmidus televiisori ühendamiseks. Elutoast pääseb rõdule. Magamistoas on lisaks walk-in garderoob. Lisaks on kolmas väiksem magamistuba, mida saab kasutada ka kodukontorina.
Korteri ülalpidamiskulud on aastaringselt väga madalad. Arvetega on võimalik tutvuda kohapeal.
MAJA JA PARKIMINE
Majas on tegus korteriühistu, laenu ei ole. Soojustatud on otsaseinad, veetorustik ja kanalisatsioonipüstakud on vahetatud, paigaldatud videovalve ning trepikojad on värskendatud. Parkimine maja ees on tasuta. Olemas on ka oma keldriboks.
Maja ümbrus on roheline ja korrastatud.
ASUKOHT
Asukoht on väga hea – 200 m kaugusel asuvad mitmed bussipeatused ja Männi park, kus paikneb üks Tallinna suurimaid mänguväljakuid, piknikualad, talvel ka uisuväljak. 400 m kaugusel on Rimi kauplus, 600 m kaugusel TalTech ja Elamus SPA, 900 m kaugusel Tehnopoli teadus- ja ärilinnak. Läheduses on mitmed lasteaiad, koolid ja spordiklubid. Väga hea transpordiühendus nii kesklinna kui ka teiste linnaosadega.
Võta minuga ühendust ja küsi lisa!
JAGA MINU KONTAKTI KÕIGILE, KES VAJAVAD KINNISVARANÕU!
- - - - - - - - - -
Telli hindamine UUS MAA Kinnisvarabüroolt https://uusmaa.ee/teenused/hindamine/
ning saad:
- Eksperthinnangu kuni 20% soodsamalt kui võtad koduga seotud laenu Swedbankist
- Pankadest parimad kodulaenutingimused
- Kiire, kvaliteetse ning usaldusväärse hindamisteenuse Eestis
UUS MAA KINNISVARABÜROO EKSPERTHINNANGUID AKTSEPTEERIVAD KÕIK FINANTSASUTUSED.
- - - - - - - - - -
Liitu Uus Maa uudiskirjaga ja saa homset kinnisvarainfot juba täna!
https://www.uusmaa.ee/uudiskirjagaliitumine/
- - - - - - - - - -
Kodu aitab osta Swedbank.
Pakkumise saamiseks kasuta koodi UUSMAA ja Sind teenindatakse eelisjärjekorras.
Võtame ühendust 1 tööpäeva jooksul.
Uus Maa kliendile soodsam lepingutasu. Küsi täpsemat infot maaklerilt.
Finantsteenuseid pakub Swedbank AS. Tutvu tingimustega, pea nõu.
Korter on valmis sissekolimiseks!
KORTER
Müügile on tulnud täielikult renoveeritud neljatoaline korter, mis asub viiekorruselise maja neljandal korrusel vaikses ja rahulikus piirkonnas. Korteri planeering on muudetud vastavalt projektile ja kasutusloale. Sa võid olla selle hiljuti renoveeritud kodu esimene omanik!
Korteri koosseisu kuuluvad esik, millest avaneb uks ruumikasse ja stiilsesse vannituppa. Vannitoas on põrandasoojendus ning lahtikäiv dušisein. Kogu torustik vannitoas on värskelt vahetatud.
Põrandaid katab kvaliteetne puitparkett, mis on laminaadist erinevalt jala all soe ja mugav. Samuti on korteris vahetatud kogu elektrijuhtmestik.
Elutuba on ühendatud avatud köögiga, mis on varustatud eritellimusel valmistatud köögimööbli ja kaasaegse tehnikaga, sh integreeritava nõudepesumasina, köögikubu ning eraldiseisva integreeritava külmkapiga. Pesumasin on paigaldatud esiku garderoobikappi.
Elutoas on mugav diivan Eesti tootjalt ning valmidus televiisori ühendamiseks. Elutoast pääseb rõdule. Magamistoas on lisaks walk-in garderoob. Lisaks on kolmas väiksem magamistuba, mida saab kasutada ka kodukontorina.
Korteri ülalpidamiskulud on aastaringselt väga madalad. Arvetega on võimalik tutvuda kohapeal.
MAJA JA PARKIMINE
Majas on tegus korteriühistu, laenu ei ole. Soojustatud on otsaseinad, veetorustik ja kanalisatsioonipüstakud on vahetatud, paigaldatud videovalve ning trepikojad on värskendatud. Parkimine maja ees on tasuta. Olemas on ka oma keldriboks.
Maja ümbrus on roheline ja korrastatud.
ASUKOHT
Asukoht on väga hea – 200 m kaugusel asuvad mitmed bussipeatused ja Männi park, kus paikneb üks Tallinna suurimaid mänguväljakuid, piknikualad, talvel ka uisuväljak. 400 m kaugusel on Rimi kauplus, 600 m kaugusel TalTech ja Elamus SPA, 900 m kaugusel Tehnopoli teadus- ja ärilinnak. Läheduses on mitmed lasteaiad, koolid ja spordiklubid. Väga hea transpordiühendus nii kesklinna kui ka teiste linnaosadega.
Võta minuga ühendust ja küsi lisa!
JAGA MINU KONTAKTI KÕIGILE, KES VAJAVAD KINNISVARANÕU!
- - - - - - - - - -
Telli hindamine UUS MAA Kinnisvarabüroolt https://uusmaa.ee/teenused/hindamine/
ning saad:
- Eksperthinnangu kuni 20% soodsamalt kui võtad koduga seotud laenu Swedbankist
- Pankadest parimad kodulaenutingimused
- Kiire, kvaliteetse ning usaldusväärse hindamisteenuse Eestis
UUS MAA KINNISVARABÜROO EKSPERTHINNANGUID AKTSEPTEERIVAD KÕIK FINANTSASUTUSED.
- - - - - - - - - -
Liitu Uus Maa uudiskirjaga ja saa homset kinnisvarainfot juba täna!
https://www.uusmaa.ee/uudiskirjagaliitumine/
- - - - - - - - - -
Kodu aitab osta Swedbank.
Pakkumise saamiseks kasuta koodi UUSMAA ja Sind teenindatakse eelisjärjekorras.
Võtame ühendust 1 tööpäeva jooksul.
Uus Maa kliendile soodsam lepingutasu. Küsi täpsemat infot maaklerilt.
Finantsteenuseid pakub Swedbank AS. Tutvu tingimustega, pea nõu.

































