3-Room Apartment with Spacious Views and Balcony in the Uus-Hollandi Residential Area, Sadama District
Uus-Holland offers the comfort of the city center, modern architecture, a private living environment, and, of course, a spacious promenade. A green park area separates the residential quarter from Reidi Road. Nearby, you'll find the seaside pedestrian promenade, cycling paths, and recreational park areas—all just a few minutes’ walk away.
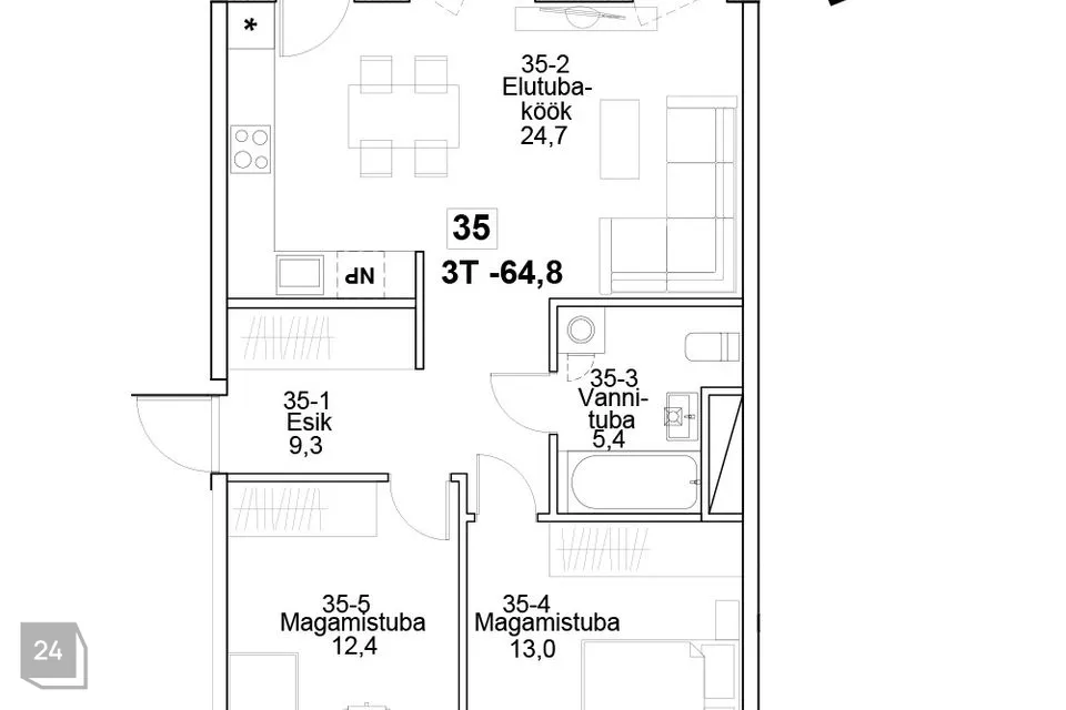
The apartment spans the full width of the building. The open-plan kitchen and living room face the sea, while both bedrooms overlook the courtyard.
The floors are finished with natural wooden parquet; the hallway and bathroom are tiled. The windows are Nordic-style wood-aluminum frames with excellent sound and thermal insulation. The living room opens onto a balcony with a magnificent view.
Heating is provided by the city’s district heating system and the apartment features water-based underfloor heating. In addition, the apartment has a heat recovery ventilation system that ensures energy efficiency even during cold winters.
A private storage room in the basement is included.
The Uus-Holland residential area was designed by Nord Projekt. The first apartment buildings were completed in 2019 and 2020.
Building Construction:
Basement and floors 1–6 constructed from prefabricated reinforced concrete.
Internal load-bearing walls between apartments and common areas are 200mm reinforced concrete panels.
Interior walls are made of plasterboard with a sound-insulated frame filled with mineral wool.
Intermediate floors consist of hollow-core reinforced concrete panels.
The building has a flat roof with roll roofing material.
The facade combines reinforced concrete (matrix finish) and construction panels, with parts clad in clinker facade system.
Balconies and terraces are structurally integrated into the building; railings are metal constructions with glass and paneling.
Domus Kinnisvara clients enjoy special offers from banks.
Sell or get Your property appraised with us!
Uus-Holland offers the comfort of the city center, modern architecture, a private living environment, and, of course, a spacious promenade. A green park area separates the residential quarter from Reidi Road. Nearby, you'll find the seaside pedestrian promenade, cycling paths, and recreational park areas—all just a few minutes’ walk away.
The apartment spans the full width of the building. The open-plan kitchen and living room face the sea, while both bedrooms overlook the courtyard.
The floors are finished with natural wooden parquet; the hallway and bathroom are tiled. The windows are Nordic-style wood-aluminum frames with excellent sound and thermal insulation. The living room opens onto a balcony with a magnificent view.
Heating is provided by the city’s district heating system and the apartment features water-based underfloor heating. In addition, the apartment has a heat recovery ventilation system that ensures energy efficiency even during cold winters.
A private storage room in the basement is included.
The Uus-Holland residential area was designed by Nord Projekt. The first apartment buildings were completed in 2019 and 2020.
Building Construction:
Basement and floors 1–6 constructed from prefabricated reinforced concrete.
Internal load-bearing walls between apartments and common areas are 200mm reinforced concrete panels.
Interior walls are made of plasterboard with a sound-insulated frame filled with mineral wool.
Intermediate floors consist of hollow-core reinforced concrete panels.
The building has a flat roof with roll roofing material.
The facade combines reinforced concrete (matrix finish) and construction panels, with parts clad in clinker facade system.
Balconies and terraces are structurally integrated into the building; railings are metal constructions with glass and paneling.
Domus Kinnisvara clients enjoy special offers from banks.
Sell or get Your property appraised with us!

































