Müüki tuli 2-toaline korter Veerenni hinnatud piirkonnas – suurepärane võimalus loovaks koduloomiseks!
Korteriomandi suurim väärtus peitub tema asukohas ja tulevases potentsiaalis – maja on lähiajal plaanis renoveerida, mille käigus uuendatakse nii hoone kui ka planeeringud ja korterite suurused. See tähendab, et uuel omanikul on võimalus olla osa uuest ja kvaliteetsest elukeskkonnast ajaloolise hõnguga puumajas. Protsessiga on juba alustatud.
EHR andmed on tegelikkusega erinevad ning saavad korda peale kogu maja renoveerimistöid.
MAJA
Tegu on eestiaegse väärika puumajaga, kus tegutseb korteriühistu.
Renoveerimisplaanide käigus:
- korrastatakse fassaad, katus jm olulised osad;
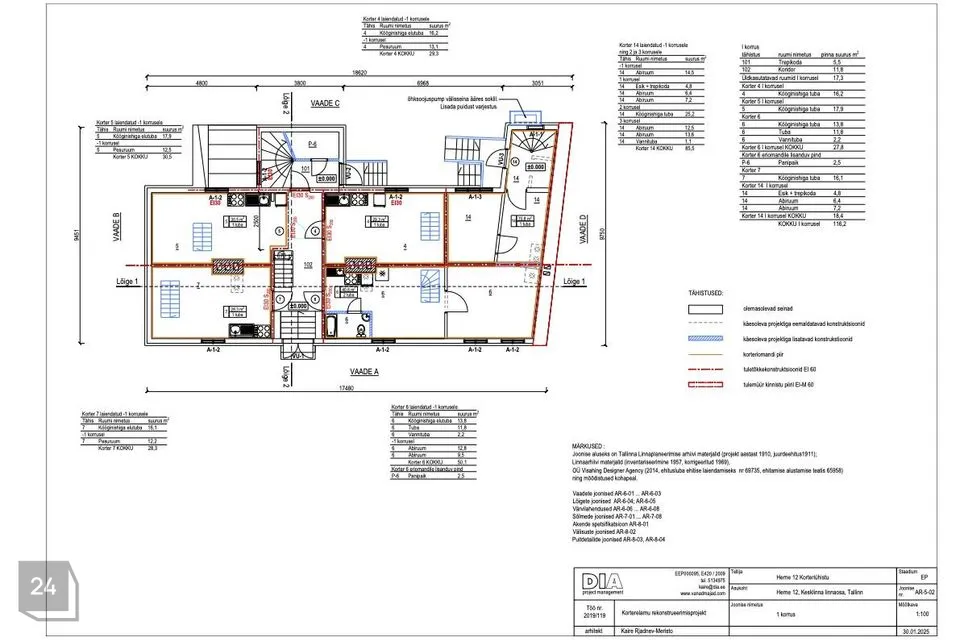
- muudetakse korterite planeeringuid (kuulutuse juures on näha 1. korruse plaan, mis pole lõplik versioon planeeritavast);
- avaneb võimalus laiendada korterit ostes KÜ-lt välja selle all asuv keldriruum (plaanil on märgitud trepi võimalik asukoht – täna treppi veel ei ole). Võimalus selgub KÜ-ga läbirääkimiste teel.
Küte: korteris on kaks töökorras ahju.
Soe vesi elektriboileriga.
Aknad – vanad puitraamid (vajavad vahetust või hooldust).
Põrand – hetkel puuduliku soojustusega ja on külm.
KORTER
Tänane jaotus: kaks tuba, millest magamistuba on juriidiliselt kaasomandis teise korteriga nr. 14 (reaalselt eraldatud ja kasutuses ainult selle korteri osana).
Elutuba koos avatud köögiga: 15,7 m² (korter nr. 6).
Vannituba: täielikult renoveeritud 2024. aastal pärast veeavariid. Tööde käigus avastati konstruktsioonikahjustusi – info on fikseeritud töödeaktis ning edastatakse tõsisele huvilisele.
Arvestama peab, et müük sisaldab kahte objekti – korter nr 6 ja kaasomandis oleva korter nr. 14 ühte tuba (märgitud plaanil).
PARKIMINE JA PANIPAIK
Korteri juurde kuulub KÜ kokkuleppel üks parkimiskoht. Hetkel on korteri kasutuses ka üks panipaik, kus saab küttepuid hoida, kuid planeeritavate uuenduste käigus on võimalik soetada endale panipaik (2,5 m2).
ASUKOHT
Veerenni on tuntud oma rahuliku miljöö ja linna lähedal asuva mugava elukeskkonna poolest.
Kõik igapäevased teenused, poed, kohvikud, restoranid ja spordiklubid jäävad vaid mõneminutilise jalutuskäigu kaugusele.
Hea ühistranspordiühendus – peatused kohe maja läheduses.
Läheduses:
- Vanalinn ja Rotermanni kvartal
- Tatari ja Juhkentali Rimi
- Kino, kaubanduskeskused
- Mitmed pargid ja vabaajavõimalused
See korter on ideaalne ostjale, kes otsib renoveerimisjärgset lisaväärtust või on valmis ise kujundama oma unistuste kodu ning omab ostuks omafinantseeringut.
Info ja vaatamine:
Lii Aalik, KV Kontor
Kutseline kinnisvaramaakler, 6. tase (nr. 198473)
Kinnisvaramaakleri reg.nr: KMR 73977
EKMK liige
******
Kui vajad abi kinnisvara:
*müük, ost, üür
*turuväärtuse määramine
*konsultatsioon
*lepingute koostamine
... siis võta minuga julgelt ühendust!
Minu teenus sobib Sulle kui soovid personaalset ja tegelikku vajadust arvestavat ning usaldusväärset lähenemist!
Korteriomandi suurim väärtus peitub tema asukohas ja tulevases potentsiaalis – maja on lähiajal plaanis renoveerida, mille käigus uuendatakse nii hoone kui ka planeeringud ja korterite suurused. See tähendab, et uuel omanikul on võimalus olla osa uuest ja kvaliteetsest elukeskkonnast ajaloolise hõnguga puumajas. Protsessiga on juba alustatud.
EHR andmed on tegelikkusega erinevad ning saavad korda peale kogu maja renoveerimistöid.
MAJA
Tegu on eestiaegse väärika puumajaga, kus tegutseb korteriühistu.
Renoveerimisplaanide käigus:
- korrastatakse fassaad, katus jm olulised osad;
- muudetakse korterite planeeringuid (kuulutuse juures on näha 1. korruse plaan, mis pole lõplik versioon planeeritavast);
- avaneb võimalus laiendada korterit ostes KÜ-lt välja selle all asuv keldriruum (plaanil on märgitud trepi võimalik asukoht – täna treppi veel ei ole). Võimalus selgub KÜ-ga läbirääkimiste teel.
Küte: korteris on kaks töökorras ahju.
Soe vesi elektriboileriga.
Aknad – vanad puitraamid (vajavad vahetust või hooldust).
Põrand – hetkel puuduliku soojustusega ja on külm.
KORTER
Tänane jaotus: kaks tuba, millest magamistuba on juriidiliselt kaasomandis teise korteriga nr. 14 (reaalselt eraldatud ja kasutuses ainult selle korteri osana).
Elutuba koos avatud köögiga: 15,7 m² (korter nr. 6).
Vannituba: täielikult renoveeritud 2024. aastal pärast veeavariid. Tööde käigus avastati konstruktsioonikahjustusi – info on fikseeritud töödeaktis ning edastatakse tõsisele huvilisele.
Arvestama peab, et müük sisaldab kahte objekti – korter nr 6 ja kaasomandis oleva korter nr. 14 ühte tuba (märgitud plaanil).
PARKIMINE JA PANIPAIK
Korteri juurde kuulub KÜ kokkuleppel üks parkimiskoht. Hetkel on korteri kasutuses ka üks panipaik, kus saab küttepuid hoida, kuid planeeritavate uuenduste käigus on võimalik soetada endale panipaik (2,5 m2).
ASUKOHT
Veerenni on tuntud oma rahuliku miljöö ja linna lähedal asuva mugava elukeskkonna poolest.
Kõik igapäevased teenused, poed, kohvikud, restoranid ja spordiklubid jäävad vaid mõneminutilise jalutuskäigu kaugusele.
Hea ühistranspordiühendus – peatused kohe maja läheduses.
Läheduses:
- Vanalinn ja Rotermanni kvartal
- Tatari ja Juhkentali Rimi
- Kino, kaubanduskeskused
- Mitmed pargid ja vabaajavõimalused
See korter on ideaalne ostjale, kes otsib renoveerimisjärgset lisaväärtust või on valmis ise kujundama oma unistuste kodu ning omab ostuks omafinantseeringut.
Info ja vaatamine:
Lii Aalik, KV Kontor
Kutseline kinnisvaramaakler, 6. tase (nr. 198473)
Kinnisvaramaakleri reg.nr: KMR 73977
EKMK liige
******
Kui vajad abi kinnisvara:
*müük, ost, üür
*turuväärtuse määramine
*konsultatsioon
*lepingute koostamine
... siis võta minuga julgelt ühendust!
Minu teenus sobib Sulle kui soovid personaalset ja tegelikku vajadust arvestavat ning usaldusväärset lähenemist!


















