VESILENNUKI ARENDUS
Vesilennuki majade arhitektuur sündis läbi kõrgetasemelise arhitektuurivõistluse, mille võitis KOKO arhitektid. Hoonete loojaid inspireeris meri, sadamarajatised ja Noblessneri enam kui sajandipikkune ajalugu.
Hoonete sisearhitektuurne lahendus on Kaos Arhitektidelt.
Arenduse kõrge ehituskvaliteedi taga seisab Merko professionaalsus ja aastatepikkune kogemus.
KORTER
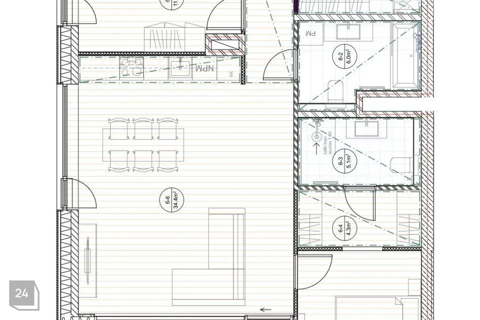
6. korruselise kortermaja 2. korrusel asuv korter on kaasaegsete lahendustega ja avatud planeeringuga.
Üldpind on 82.3 m², millele lisandub 11,7 m² klaasitud rõdu, mis loob võimaluse kasutada rõdu ka külmemate ilmade ja tuule korral.
Tänu kõrgetele lagedele, heledatele toonidele ja suurtele akendele on korter väga valgusküllane kogu päeva ulatuses. Korteri koosseisu kuulub avatud köögiga elutuba, 2 magamistuba ja 2 vannituba. Põrandaid katab naturaalne parkett, vannitoad on plaaditud. Korter müüakse kogu sisustusega.
KÜTE / VENTILATSIOON / JAHUTUS
Küte on keskküttele baseeruv vesi-põrandaküte, mis on igast ruumist eraldi reguleeritav. Korteris on soojustagastusega sundventilatsioon ja jahutus.
NUTIKODU
Hoonel on "Targa kodu" lahendus. Sellega saad juhtida korteri sisekliimat ja videofonot ning jälgida korteri tehnosüsteeme nii korterisiseselt monitorilt kui ka internetipõhiselt läbi nutiseadme.
Sisekliima juhtimine hõlmab ruumide kütet ja ventilatsiooni.
Lisaks võimaldavad targa kodu lahendused ka elektrinäitude ning sooja ja külma vee näitude jälgimist.
Kaasaegsele linnaruumile kohaselt on majas ka spetsiaalne ruum jalgrataste hoiustamiseks.
PARKIMINE JA PANIPAIK
Korteri hinnale lisandub parkimiskoht soojas maa-aluses garaazis hinnaga 25 000€ ja panipaik hinnaga 10 000€
ASUKOHT JA ÜMBRUS
Baltimaade parimaks linnaruumi arenduseks tunnistatud Noblessner asub mere kaldal Lennusadama kõrval, jalutuskäigu kaugusel Tallinna kesk- ja vanalinnast.
Noblessneris on on suurejoonelise arhitektuuriga ajaloolised tööstushooned, jahisadam, kunstigaleriid, linna ühed parimad söögikohad, värvikas kultuurielu ning kõrgkvaliteedis uusarendus.
Noblessneris on parimad söögikohad, aktiivne kultuurielu, enamus teed ning merepromenaad on üksnes jalakäijate ning kergliikluse päralt.
Noblessneri merepromenaadilt avanevad imeilusad vaated mere kohal loojuvale päikesele.
JAGA MINU KONTAKTI KÕIGILE, KES VAJAVAD KINNISVARANÕU!
- - - - - - - - - -
Telli hindamine UUS MAA Kinnisvarabüroolt https://uusmaa.ee/teenused/hindamine/
ning saad:
- Eksperthinnangu kuni 20% soodsamalt kui võtad koduga seotud laenu Swedbankist
- Pankadest parimad kodulaenutingimused
- Kiire, kvaliteetse ning usaldusväärse hindamisteenuse Eestis
UUS MAA KINNISVARABÜROO EKSPERTHINNANGUID AKTSEPTEERIVAD KÕIK FINANTSASUTUSED.
- - - - - - - - - -
Liitu Uus Maa uudiskirjaga ja saa homset kinnisvarainfot juba täna!
https://www.uusmaa.ee/uudiskirjagaliitumine/
- - - - - - - - - -
Kodu aitab osta Swedbank.
Pakkumise saamiseks kasuta koodi UUSMAA ja Sind teenindatakse eelisjärjekorras.
Võtame ühendust 1 tööpäeva jooksul.
Uus Maa kliendile soodsam lepingutasu. Küsi täpsemat infot maaklerilt.
Finantsteenuseid pakub Swedbank AS. Tutvu tingimustega, pea nõu.
Vesilennuki majade arhitektuur sündis läbi kõrgetasemelise arhitektuurivõistluse, mille võitis KOKO arhitektid. Hoonete loojaid inspireeris meri, sadamarajatised ja Noblessneri enam kui sajandipikkune ajalugu.
Hoonete sisearhitektuurne lahendus on Kaos Arhitektidelt.
Arenduse kõrge ehituskvaliteedi taga seisab Merko professionaalsus ja aastatepikkune kogemus.
KORTER
6. korruselise kortermaja 2. korrusel asuv korter on kaasaegsete lahendustega ja avatud planeeringuga.
Üldpind on 82.3 m², millele lisandub 11,7 m² klaasitud rõdu, mis loob võimaluse kasutada rõdu ka külmemate ilmade ja tuule korral.
Tänu kõrgetele lagedele, heledatele toonidele ja suurtele akendele on korter väga valgusküllane kogu päeva ulatuses. Korteri koosseisu kuulub avatud köögiga elutuba, 2 magamistuba ja 2 vannituba. Põrandaid katab naturaalne parkett, vannitoad on plaaditud. Korter müüakse kogu sisustusega.
KÜTE / VENTILATSIOON / JAHUTUS
Küte on keskküttele baseeruv vesi-põrandaküte, mis on igast ruumist eraldi reguleeritav. Korteris on soojustagastusega sundventilatsioon ja jahutus.
NUTIKODU
Hoonel on "Targa kodu" lahendus. Sellega saad juhtida korteri sisekliimat ja videofonot ning jälgida korteri tehnosüsteeme nii korterisiseselt monitorilt kui ka internetipõhiselt läbi nutiseadme.
Sisekliima juhtimine hõlmab ruumide kütet ja ventilatsiooni.
Lisaks võimaldavad targa kodu lahendused ka elektrinäitude ning sooja ja külma vee näitude jälgimist.
Kaasaegsele linnaruumile kohaselt on majas ka spetsiaalne ruum jalgrataste hoiustamiseks.
PARKIMINE JA PANIPAIK
Korteri hinnale lisandub parkimiskoht soojas maa-aluses garaazis hinnaga 25 000€ ja panipaik hinnaga 10 000€
ASUKOHT JA ÜMBRUS
Baltimaade parimaks linnaruumi arenduseks tunnistatud Noblessner asub mere kaldal Lennusadama kõrval, jalutuskäigu kaugusel Tallinna kesk- ja vanalinnast.
Noblessneris on on suurejoonelise arhitektuuriga ajaloolised tööstushooned, jahisadam, kunstigaleriid, linna ühed parimad söögikohad, värvikas kultuurielu ning kõrgkvaliteedis uusarendus.
Noblessneris on parimad söögikohad, aktiivne kultuurielu, enamus teed ning merepromenaad on üksnes jalakäijate ning kergliikluse päralt.
Noblessneri merepromenaadilt avanevad imeilusad vaated mere kohal loojuvale päikesele.
JAGA MINU KONTAKTI KÕIGILE, KES VAJAVAD KINNISVARANÕU!
- - - - - - - - - -
Telli hindamine UUS MAA Kinnisvarabüroolt https://uusmaa.ee/teenused/hindamine/
ning saad:
- Eksperthinnangu kuni 20% soodsamalt kui võtad koduga seotud laenu Swedbankist
- Pankadest parimad kodulaenutingimused
- Kiire, kvaliteetse ning usaldusväärse hindamisteenuse Eestis
UUS MAA KINNISVARABÜROO EKSPERTHINNANGUID AKTSEPTEERIVAD KÕIK FINANTSASUTUSED.
- - - - - - - - - -
Liitu Uus Maa uudiskirjaga ja saa homset kinnisvarainfot juba täna!
https://www.uusmaa.ee/uudiskirjagaliitumine/
- - - - - - - - - -
Kodu aitab osta Swedbank.
Pakkumise saamiseks kasuta koodi UUSMAA ja Sind teenindatakse eelisjärjekorras.
Võtame ühendust 1 tööpäeva jooksul.
Uus Maa kliendile soodsam lepingutasu. Küsi täpsemat infot maaklerilt.
Finantsteenuseid pakub Swedbank AS. Tutvu tingimustega, pea nõu.









































