Uhke ja väärikas 3,8 m kõrgete lagedega perekorter Tallinna kesklinna ja Kadrioru piiril esinduslikus kivimajas.
1950. aastal arhitekt Karl Burman vanema poolt loodud maja sai 2004. aastal uue hingamise Agabus, Endjärv & Truverk arhitektuuribüroolt ning majas on täna kõrgete lagedega avarad ja esinduslikud korterid, mis meenutavad newjorkilikku elustiili.
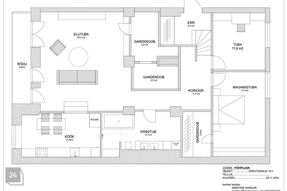
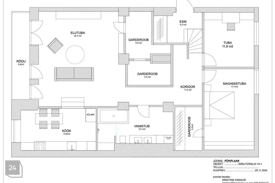
Korteri suurus on 127,3 m2 ja rõdu 10 m2.
Praeguses korteri planeeringus on esik, koridor, suur elutuba, kaks magamistuba, köök, vannituba, kolm garderoobi ning suur, hoovipolne rõdu, kuhu paistab pärastlõunane päike.
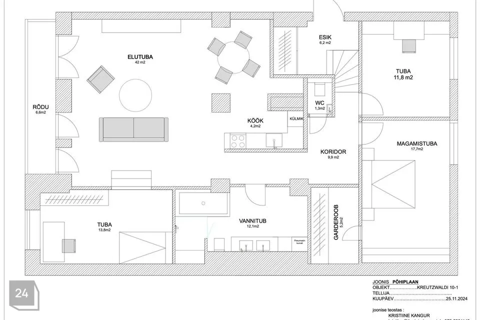
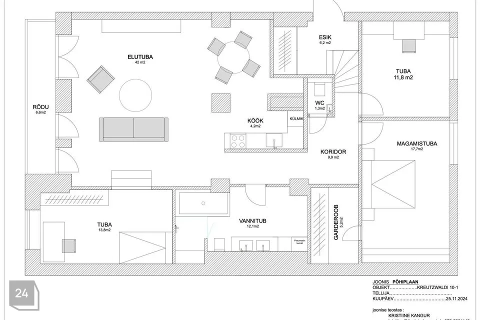
Korteri saab lihtsalt ümber kohandada ka neljatoaliseks. Köögi võib tuua suurde elutuppa ja olemasoleva köögi muuta magamistoaks. Selle tarbeks on olemas projekt ja sisearhitekti plaanid on pildigaleriis.
Luksuslik ning samas hubane kodu on viimistletud kvaliteetsete materjalidega. Põrandat katab tammelaud ja vannitoas on suursugused marmorplaadid.
Sisekujunduses on kasutatud disainiklassikat.
Elutuba – 35,3 m2
Magamistuba – 17,7 m2
Magamistuba/kontor – 11,8 m2
Vannituba/wc – 12,1 m2
Köök – 13,8 m2
Garderoob 1 – 5,2 m2
Garderoob 2 – 5,9 m2
Garderoob 3 – 4,3 m2
Esik – 6,2 m2
Koridor – 11,2 m2
Rõdu – 10 m2
Panipaik keldris – 4,5 m2
Hinna sees on kaks parkimiskohta kinnises hoovis (väärtusega ca 25 000 - 30 000 eurot).
Eraldi jalgrataste hoiukoht ja 4,5 m2 suurune panipaik keldris.
Võta julgelt minuga ühendust ja lähme vaatame teie uut kodu!
JAGA MINU KONTAKTI KÕIGILE, KES VAJAVAD KINNISVARANÕU!
- - - - - - - - - -
Telli hindamine UUS MAA Kinnisvarabüroolt https://uusmaa.ee/teenused/hindamine/
ning saad:
- Eksperthinnangu kuni 20% soodsamalt kui võtad koduga seotud laenu Swedbankist
- Pankadest parimad kodulaenutingimused
- Kiire, kvaliteetse ning usaldusväärse hindamisteenuse Eestis
UUS MAA KINNISVARABÜROO EKSPERTHINNANGUID AKTSEPTEERIVAD KÕIK FINANTSASUTUSED.
- - - - - - - - - -
Liitu Uus Maa uudiskirjaga ja saa homset kinnisvarainfot juba täna!
https://www.uusmaa.ee/uudiskirjagaliitumine/
- - - - - - - - - -
Kodu aitab osta Swedbank.
Pakkumise saamiseks kasuta koodi UUSMAA ja Sind teenindatakse eelisjärjekorras.
Võtame ühendust 1 tööpäeva jooksul.
Uus Maa kliendile soodsam lepingutasu. Küsi täpsemat infot maaklerilt.
Finantsteenuseid pakub Swedbank AS. Tutvu tingimustega, pea nõu.
1950. aastal arhitekt Karl Burman vanema poolt loodud maja sai 2004. aastal uue hingamise Agabus, Endjärv & Truverk arhitektuuribüroolt ning majas on täna kõrgete lagedega avarad ja esinduslikud korterid, mis meenutavad newjorkilikku elustiili.
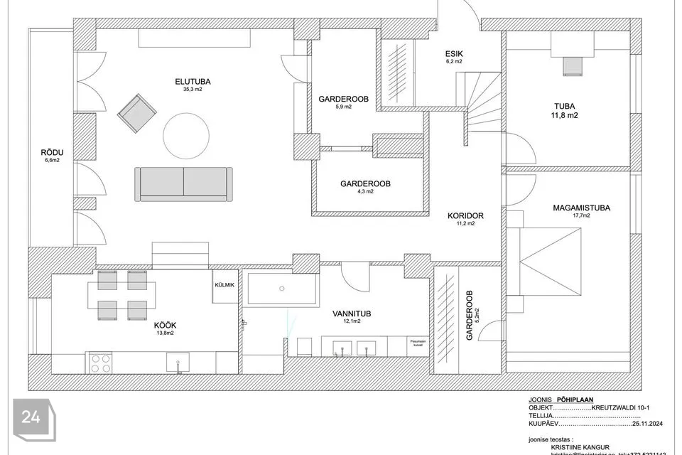
Korteri suurus on 127,3 m2 ja rõdu 10 m2.
Praeguses korteri planeeringus on esik, koridor, suur elutuba, kaks magamistuba, köök, vannituba, kolm garderoobi ning suur, hoovipolne rõdu, kuhu paistab pärastlõunane päike.
Korteri saab lihtsalt ümber kohandada ka neljatoaliseks. Köögi võib tuua suurde elutuppa ja olemasoleva köögi muuta magamistoaks. Selle tarbeks on olemas projekt ja sisearhitekti plaanid on pildigaleriis.
Luksuslik ning samas hubane kodu on viimistletud kvaliteetsete materjalidega. Põrandat katab tammelaud ja vannitoas on suursugused marmorplaadid.
Sisekujunduses on kasutatud disainiklassikat.
Elutuba – 35,3 m2
Magamistuba – 17,7 m2
Magamistuba/kontor – 11,8 m2
Vannituba/wc – 12,1 m2
Köök – 13,8 m2
Garderoob 1 – 5,2 m2
Garderoob 2 – 5,9 m2
Garderoob 3 – 4,3 m2
Esik – 6,2 m2
Koridor – 11,2 m2
Rõdu – 10 m2
Panipaik keldris – 4,5 m2
Hinna sees on kaks parkimiskohta kinnises hoovis (väärtusega ca 25 000 - 30 000 eurot).
Eraldi jalgrataste hoiukoht ja 4,5 m2 suurune panipaik keldris.
Võta julgelt minuga ühendust ja lähme vaatame teie uut kodu!
JAGA MINU KONTAKTI KÕIGILE, KES VAJAVAD KINNISVARANÕU!
- - - - - - - - - -
Telli hindamine UUS MAA Kinnisvarabüroolt https://uusmaa.ee/teenused/hindamine/
ning saad:
- Eksperthinnangu kuni 20% soodsamalt kui võtad koduga seotud laenu Swedbankist
- Pankadest parimad kodulaenutingimused
- Kiire, kvaliteetse ning usaldusväärse hindamisteenuse Eestis
UUS MAA KINNISVARABÜROO EKSPERTHINNANGUID AKTSEPTEERIVAD KÕIK FINANTSASUTUSED.
- - - - - - - - - -
Liitu Uus Maa uudiskirjaga ja saa homset kinnisvarainfot juba täna!
https://www.uusmaa.ee/uudiskirjagaliitumine/
- - - - - - - - - -
Kodu aitab osta Swedbank.
Pakkumise saamiseks kasuta koodi UUSMAA ja Sind teenindatakse eelisjärjekorras.
Võtame ühendust 1 tööpäeva jooksul.
Uus Maa kliendile soodsam lepingutasu. Küsi täpsemat infot maaklerilt.
Finantsteenuseid pakub Swedbank AS. Tutvu tingimustega, pea nõu.




































