Müüa suurepärase asukohaga väga ilus ja valgusküllane 2-toaline korter Tallinna kesklinna väga hinnatud Kassisaba piirkonnas. Hoone on A-energiaklassi märgistusega ning asub vaid mõnesaja meetri kaugusel Telliskivi Loomelinnakust ja Tallinna vanalinnast.
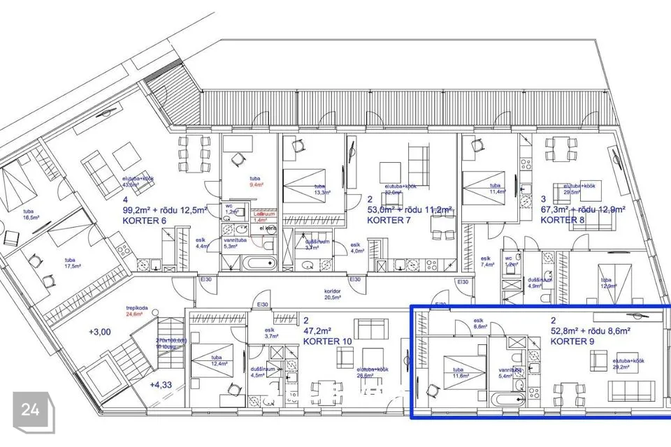
Korter on 52,8 ruutmeetrise üldpinnaga ning asub viiekordse maja kõrgel teisel korrusel. Korteri üldpinda kuuluvad: avatud planeeringuga köök-elutuba (29,2 m²), garderoobiga magamistuba (11,6 m²), vannituba/WC (5,4 m²) ja esik (6,6 m²). Elutoast on pääs mõnusale, 8,6 ruutmeetrisele rõdule. Ruumid on valgusrikad tänu suurtele akendele, mis avanevad pealelõunasele ja õhtupäiksele. Korterile kuulub ka panipaik hoone 0-korrusel. Eraldi privaatset parkimiskohta korteri juurde ei kuulu. Parkimisvõimalus kõrvaltänavatel.
Tegemist on väga mugava ning praktilise planeeringuga. Maitsekalt siseviimistletud korter on väga heas seisukorras. Köök on varustatud kvaliteetse mööbli ning mugava integreeritud tehnikaga (keraamiline pliidiplaat, ahi, külmkapp, nõudepesumasin, õhupuhasti). Vannituba on hästi planeeritud paigutusega, mahutades nii vanni, kui ka pesumasinat. Tubade põrandatel on kvaliteetne tamme laudparkett. Köögi, vannitoa ja esiku põrandad on plaaditud. Siseviimistlus on heledates toonides, mis võimendavad avarust ja valgusküllasust. Paigaldatud Soome tüüpi aknad on varustatud kolmekordse puitalumiiniumklaaspaketiga parema müraisolatsiooni tagamiseks.
Korterisse jääb kogu fotodel näha olev sisustus.
Majal on korteripõhine soojustagastusega sundventilatsioonisüsteem. Korteri küte on lahendatud veepõrandakütte baasil. Vajaliku temperatuuri saavutamiseks ja reguleerimiseks ruumides kasutatakse termostaati, mis tagab ruumides vajaliku temperatuuri. Kütteallikaks on põhiliselt 2 maagaasil töötavat kondensaatkatelt “Junkers”. Küttesüsteemi toetavad päikesepaneelid ja õhk-vesi soojuspump. Hoone kuulub energiakasutuse klassi A, seetõttu kommunaalkulud keskmistest väiksemad. Majas on lift olemas. Viisakad ja rahulikud naabrid. Korralik ja toimiv korteriühistu.
Lähedal on kõik eluks vajalik! Kassisaba on üks hinnatumaid piirkondi Tallinnas. Väga hea infrastruktuur- läheduses Balti Jaama Turg, paljud hinnatud kohvikud ja restoranid, Meriton SPA, Telliskivi Loomelinnak jne. Jalutuskäigu kaugusel on Tallinna vanalinn, Kristiine kaubanduskeskus ja Lennusadam. Kiire ja mugav ühendus kesklinnaga.
Helista ja küsi lisa. See võib olla just Sinu uus kodu!
JAGA MINU KONTAKTI KÕIGILE, KES VAJAVAD KINNISVARANÕU!
- - - - - - - - - -
Telli hindamine UUS MAA Kinnisvarabüroolt https://uusmaa.ee/teenused/hindamine/
ning saad:
- Eksperthinnangu kuni 20% soodsamalt kui võtad koduga seotud laenu Swedbankist
- Pankadest parimad kodulaenutingimused
- Kiire, kvaliteetse ning usaldusväärse hindamisteenuse Eestis
UUS MAA KINNISVARABÜROO EKSPERTHINNANGUID AKTSEPTEERIVAD KÕIK FINANTSASUTUSED.
- - - - - - - - - -
Liitu Uus Maa uudiskirjaga ja saa homset kinnisvarainfot juba täna!
https://www.uusmaa.ee/uudiskirjagaliitumine/
- - - - - - - - - -
Kodu aitab osta Swedbank.
Pakkumise saamiseks kasuta koodi UUSMAA ja Sind teenindatakse eelisjärjekorras.
Võtame ühendust 1 tööpäeva jooksul.
Uus Maa kliendile soodsam lepingutasu. Küsi täpsemat infot maaklerilt.
Finantsteenuseid pakub Swedbank AS. Tutvu tingimustega, pea nõu.
Korter on 52,8 ruutmeetrise üldpinnaga ning asub viiekordse maja kõrgel teisel korrusel. Korteri üldpinda kuuluvad: avatud planeeringuga köök-elutuba (29,2 m²), garderoobiga magamistuba (11,6 m²), vannituba/WC (5,4 m²) ja esik (6,6 m²). Elutoast on pääs mõnusale, 8,6 ruutmeetrisele rõdule. Ruumid on valgusrikad tänu suurtele akendele, mis avanevad pealelõunasele ja õhtupäiksele. Korterile kuulub ka panipaik hoone 0-korrusel. Eraldi privaatset parkimiskohta korteri juurde ei kuulu. Parkimisvõimalus kõrvaltänavatel.
Tegemist on väga mugava ning praktilise planeeringuga. Maitsekalt siseviimistletud korter on väga heas seisukorras. Köök on varustatud kvaliteetse mööbli ning mugava integreeritud tehnikaga (keraamiline pliidiplaat, ahi, külmkapp, nõudepesumasin, õhupuhasti). Vannituba on hästi planeeritud paigutusega, mahutades nii vanni, kui ka pesumasinat. Tubade põrandatel on kvaliteetne tamme laudparkett. Köögi, vannitoa ja esiku põrandad on plaaditud. Siseviimistlus on heledates toonides, mis võimendavad avarust ja valgusküllasust. Paigaldatud Soome tüüpi aknad on varustatud kolmekordse puitalumiiniumklaaspaketiga parema müraisolatsiooni tagamiseks.
Korterisse jääb kogu fotodel näha olev sisustus.
Majal on korteripõhine soojustagastusega sundventilatsioonisüsteem. Korteri küte on lahendatud veepõrandakütte baasil. Vajaliku temperatuuri saavutamiseks ja reguleerimiseks ruumides kasutatakse termostaati, mis tagab ruumides vajaliku temperatuuri. Kütteallikaks on põhiliselt 2 maagaasil töötavat kondensaatkatelt “Junkers”. Küttesüsteemi toetavad päikesepaneelid ja õhk-vesi soojuspump. Hoone kuulub energiakasutuse klassi A, seetõttu kommunaalkulud keskmistest väiksemad. Majas on lift olemas. Viisakad ja rahulikud naabrid. Korralik ja toimiv korteriühistu.
Lähedal on kõik eluks vajalik! Kassisaba on üks hinnatumaid piirkondi Tallinnas. Väga hea infrastruktuur- läheduses Balti Jaama Turg, paljud hinnatud kohvikud ja restoranid, Meriton SPA, Telliskivi Loomelinnak jne. Jalutuskäigu kaugusel on Tallinna vanalinn, Kristiine kaubanduskeskus ja Lennusadam. Kiire ja mugav ühendus kesklinnaga.
Helista ja küsi lisa. See võib olla just Sinu uus kodu!
JAGA MINU KONTAKTI KÕIGILE, KES VAJAVAD KINNISVARANÕU!
- - - - - - - - - -
Telli hindamine UUS MAA Kinnisvarabüroolt https://uusmaa.ee/teenused/hindamine/
ning saad:
- Eksperthinnangu kuni 20% soodsamalt kui võtad koduga seotud laenu Swedbankist
- Pankadest parimad kodulaenutingimused
- Kiire, kvaliteetse ning usaldusväärse hindamisteenuse Eestis
UUS MAA KINNISVARABÜROO EKSPERTHINNANGUID AKTSEPTEERIVAD KÕIK FINANTSASUTUSED.
- - - - - - - - - -
Liitu Uus Maa uudiskirjaga ja saa homset kinnisvarainfot juba täna!
https://www.uusmaa.ee/uudiskirjagaliitumine/
- - - - - - - - - -
Kodu aitab osta Swedbank.
Pakkumise saamiseks kasuta koodi UUSMAA ja Sind teenindatakse eelisjärjekorras.
Võtame ühendust 1 tööpäeva jooksul.
Uus Maa kliendile soodsam lepingutasu. Küsi täpsemat infot maaklerilt.
Finantsteenuseid pakub Swedbank AS. Tutvu tingimustega, pea nõu.













































