MÜÜGILE ON TULNUD ÄSJA VALMINUD KORTERID NÕMME SÜDAMES, HINNAS UUS KÖÖGIMÖÖBEL/PARKIMINE/PANIPAIK!
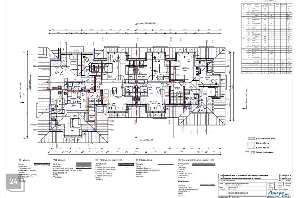
Pihlaka 4 korterelamu asub Nõmme südames. Korterelamu on põhjalikult renoveeritud. Tööde käigus ehitati senisele
2-korruselisele hoonele peale kolmas korrus, mille tulemusena valmis 4 uut kaasaegset korterit.
Antud korteri koosseisu luulub avar köök/elutuba, kaks magamistuba, koridor, vannituba koos wc-ga.
SISEVIIMISTLUS
Kõikides müüdavates korterites on tehtud heledates neutraalsetes toonides siseviimistlus ja põrandaid katab naturaalne kalasaba parkett, koridori põrandad on plaaditud keraamilise plaadiga, mis teeb elu mugavaks. Vannitoad ja duširuumid on plaaditud ja sisse on paigaldatud vann või dušinurk, sanitaartehnika ja valamukapp.
KÖÖGIMÖÖBEL
Kõikide korterite ostu-müügihinna sisse kuulub eritellimusel tellitud köögimööbel koos integreeritud tehnikaga (keraamiline elektripliit, elektriahi, õhupuhastaja, nõudepesumasin, külmkapp). Köögi tasapind on valmistatud kunstkivist, mis on mugav ja
hästi kasutatav.
Korter nr 13 : 2-toaline, 60,6m2
Korter nr 14 : 2-toaline, 59,9m2
Korter nr 16 : 3-toaline, 62,1m2
Korter nr 17 : 3-toaline, 71,5m2
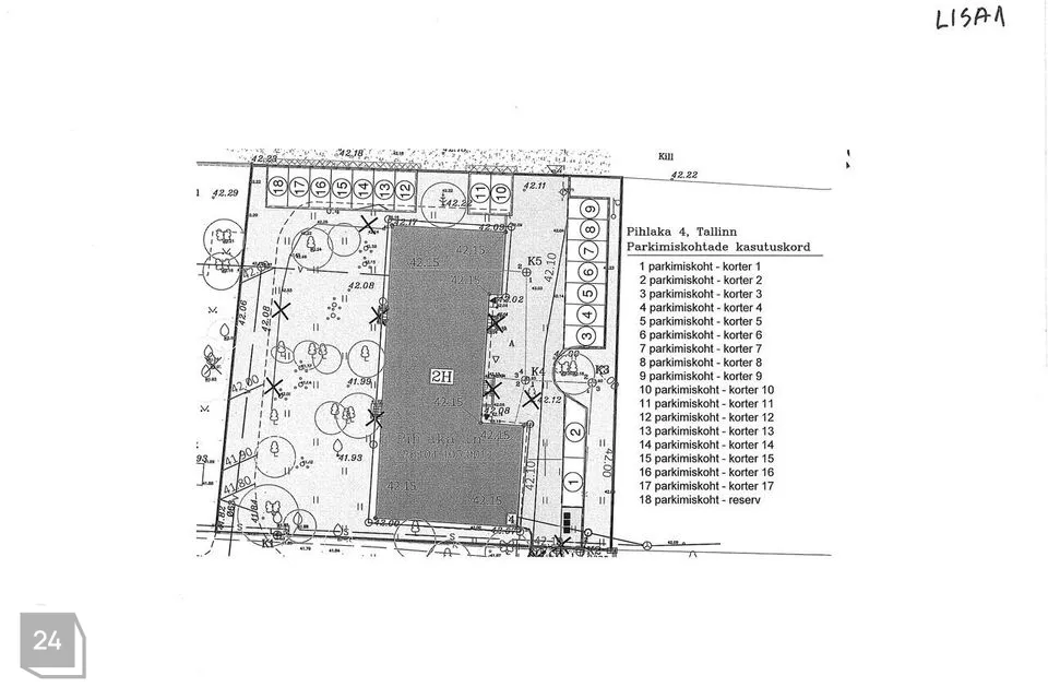
PARKIMINE/PANIPAIK
Iga korteri juurde kuulub üks notariaalse kasutuskorraga kinnitatud parkimiskoht maja territooriumil ja panipaik.
MAJA
Pihlaka 4 kortermajas renoveeriti ehitustööde käigus täielikult maja fassaad, trepikojad, paigaldati uus katus ning korrastatud sisehoov, mis kaeti tänavakiviga. Territoorium on aiaga ümbritsetud. Müüdavates korterites on uus torustik, kogu elektrijuhtmestik, paigaldatud kolmekordsed puitpakettaknad ja freshklapid. Küttesüsteemiks on keskküte (radiaatorküte) ning see on vastavalt soovile reguleeritav. Majas on ATS süsteem (maja üld tuleohutus süsteem).
ÜMBRUS/TRANSPORT
Kortermaja asub Nõmme südames, kus kõik eluks vajalik on läheduses olemas. Bussipeatused on maja lähedal mõne minutilise jalutuskäigu kaugusel. Ühitranspordiga on väga hea ühendus Kesklinna, Mustamäe, Laagri ja Männikuga. Kesklinnast autoga koju sõidab umbes 15 minutit. Läheduses Rimi toidukauplus, Järve Selver, Nõmme keskus, turg ja rongipeatus. Samuti jäävad lähedusse raba ja Glehni pargi matkarajad ning mitmed pargid. Ligiduses on perearstikeskused, kohvikud ja restoranid. Lähedusse jäävad lasteaiad ja koolid.
Kui tunned, et sooviksid rajada oma uue armsa kodu Nõmmele, siis võta minuga ühendust ning läheme kortereid vaatama!
Pihlaka 4 korterelamu asub Nõmme südames. Korterelamu on põhjalikult renoveeritud. Tööde käigus ehitati senisele
2-korruselisele hoonele peale kolmas korrus, mille tulemusena valmis 4 uut kaasaegset korterit.
Antud korteri koosseisu luulub avar köök/elutuba, kaks magamistuba, koridor, vannituba koos wc-ga.
SISEVIIMISTLUS
Kõikides müüdavates korterites on tehtud heledates neutraalsetes toonides siseviimistlus ja põrandaid katab naturaalne kalasaba parkett, koridori põrandad on plaaditud keraamilise plaadiga, mis teeb elu mugavaks. Vannitoad ja duširuumid on plaaditud ja sisse on paigaldatud vann või dušinurk, sanitaartehnika ja valamukapp.
KÖÖGIMÖÖBEL
Kõikide korterite ostu-müügihinna sisse kuulub eritellimusel tellitud köögimööbel koos integreeritud tehnikaga (keraamiline elektripliit, elektriahi, õhupuhastaja, nõudepesumasin, külmkapp). Köögi tasapind on valmistatud kunstkivist, mis on mugav ja
hästi kasutatav.
Korter nr 13 : 2-toaline, 60,6m2
Korter nr 14 : 2-toaline, 59,9m2
Korter nr 16 : 3-toaline, 62,1m2
Korter nr 17 : 3-toaline, 71,5m2
PARKIMINE/PANIPAIK
Iga korteri juurde kuulub üks notariaalse kasutuskorraga kinnitatud parkimiskoht maja territooriumil ja panipaik.
MAJA
Pihlaka 4 kortermajas renoveeriti ehitustööde käigus täielikult maja fassaad, trepikojad, paigaldati uus katus ning korrastatud sisehoov, mis kaeti tänavakiviga. Territoorium on aiaga ümbritsetud. Müüdavates korterites on uus torustik, kogu elektrijuhtmestik, paigaldatud kolmekordsed puitpakettaknad ja freshklapid. Küttesüsteemiks on keskküte (radiaatorküte) ning see on vastavalt soovile reguleeritav. Majas on ATS süsteem (maja üld tuleohutus süsteem).
ÜMBRUS/TRANSPORT
Kortermaja asub Nõmme südames, kus kõik eluks vajalik on läheduses olemas. Bussipeatused on maja lähedal mõne minutilise jalutuskäigu kaugusel. Ühitranspordiga on väga hea ühendus Kesklinna, Mustamäe, Laagri ja Männikuga. Kesklinnast autoga koju sõidab umbes 15 minutit. Läheduses Rimi toidukauplus, Järve Selver, Nõmme keskus, turg ja rongipeatus. Samuti jäävad lähedusse raba ja Glehni pargi matkarajad ning mitmed pargid. Ligiduses on perearstikeskused, kohvikud ja restoranid. Lähedusse jäävad lasteaiad ja koolid.
Kui tunned, et sooviksid rajada oma uue armsa kodu Nõmmele, siis võta minuga ühendust ning läheme kortereid vaatama!




















































