Suurepärane võimalus osta 3-toaline möbleeritud korter südalinna veerel, Kadrioru ühel kõige tahetumal tänaval.
HOONE
Kadrioru pargi äärest jooksva Poska tänava keskel asuv 2016. aastal valminud kortermaja pakub suurepärast elukeskkonda Tallinna hinnatuimas elamispiirkonnas. Siin kohtuvad Kadrioru väärikusest pakatav nostalgiliselt romantiline miljöö koos südalinna melu ja selle pakutavate võimalustega.
Tegemist on Estconde Invest arendatud monoliitsest raudbetoonist, plekk katusega hoonega, mis moodustab osa viiemajalisest tervikust.
Miljööväärtuslikus rajoonis paiknevad 3- korruselised linnavilla tüüpi elamud on privaatsed, turvalised ja autovabad.
Maja on lukustatud ning mugavuste tagamiseks on olemas nii lift kui maa-alune garaaž. Aiaga ümbritsetud maja hoovi on ka paigaldatud pisematele mänguväljak.
SISEVIIMISTLUS JA PLANEERING
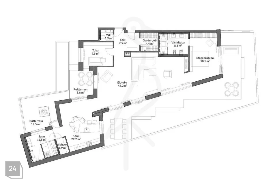
Tegu on avara ja ruumika esimesel korrusel asuva kolmetoalise korteriga, suurusega 97,9 m2, millele lisanduvad 2 terrassi kogusuurusega 23,3 m2.
Korteri koosseisu kuuluvad esik, garderoob, elutuba, köök, sahver, 2 magamistuba, 2 vannituba, WC, saun, majapidamisruum ning 2 terrassi.
Korter on planeeritud mugavat ja hubast elamist silmas pidades.
Siseviimistluses läbivalt kasutatud rahulik värvigamma loob korterisse tänapäevase, samas sooja ja koduse üldilme.
Luksuslikud modernsed lahendused kohtuvad interjööris ajatu disainiga. Läbimõeldud pisidetailid elavdavad avaraid ruume, millele lisanduvad neutraalsed toonid ja luksuslikud materjalid. Lõpptulemus on stiilipuhas ja hubane.
Korteril on maast-laeni puitraamiga kahekordsed pakettaknad, mis tagavad rohke naturaalse valguse. Kõigil akendel ja ustel (terrassi) on olemas tuulutusfunktsioon. Terrassiuksed on kahelt poolt avatavad (link on olemas nii sise- kui välisküljel).
Paigaldatud on Rimadesio klaasist siseuksed ning kaks eritellimusel laeni peiteust (majapidamisruumile ning garderoobile).
Põrandatel on naturaalne hele tammeparkett. Vannitubade seinad ning põrandad on kaetud keraamilise plaadiga. Kasutatud on ka looduslikku kivi, seda ka kamina puhul.
SISUSTUS
Funktsionaalsesse Poliform Varenna köögimööblisse on integreeritud kvaliteetne köögitehnika: nõudepesumasin, induktsioonpliit, praeahi, Gaggenau külmkapp koos jäämasinaga ja Liebherr veinikülmik. Lisaks Flexform köögipukid.
Eluruumides on Rimadesio ja Flexform mööbel. Olemas on ka Philips Ambilight TV. Vannitubades ja saunas on kasutatud sanitaartehnikat mainekatelt brändidelt nagu Hansgrohe ja Gessi. Saunas on eritellimusel keris ning leiliruum ehitatud termotöödeldud puidust. Majapidamisruumis on olemas Miele pesumasin ja kuivati.
Esikus ning magamistoas asuvad mahukad Rimadesio garderoobikapid.
Korteris on hubasust ning stiili lisav Ebios Quadra biokamin.
Suures magamistoas on olemas Flexform voodi. Omapärasust lisavad eritellimusel Lanzavecchia + Wai keraamilised loomaskulptuurid.
Akendele on paigaldatud erinevate toonivalikutega eritellimusel valmistatud kardinad.
Korterisse jääb sisse elutoa diivan, laud ning 3 väikest abilauda, voodi, tugitool pingiga, köögi pukid ning kogu sisse integreeritud mööbel.
KÜTE JA VENTILATSIOON
B energiamärgisega korteri küttesüsteem on lahendatud gaasikütte baasil. Olemas on ka soojustagastusega ventilatsioon.
PARKIMINE
Korteri juurde kuuluvad panipaik ning 2 kindlat parkimiskohta maa-aluses parkimismajas.
ÜMBRUSKOND
Kortermajale on kõik mugavalt lähedal, kuid ometi on see piisavalt eraldatud.
Maja läheduses asuvad rohealad ning ümbruskonna vaiksus loovad ideaalse elukeskonna. Meelelahutus, kultuur ning erinevad sportimisvõimalused saavad Sinu pere elu lahutamatuteks osadeks.
Poska 31 kortermaja asub hinnatud elamispiirkonnas. Ühele poole jääb Kadriorg oma rahuliku romantilise miljööga ja teisele poole kiire elutempoga kesklinn oma mitmekesiste võimalustega. Kesklinn oma kiirustavas elutempos pakub erinevaid võimalusi nii suurte kaubanduskeskuste, restoranide, teatrite kui ka kinode külastamiseks, samal ajal kui Kadrioru park oma nostalgilises ilus alleede, Luigetiigi, Kadrioru lossi, kohvikute, mitmete muuseumitega on suurepärane koht veetmaks rahulikumat kvaliteetaega oma lähedaste seltsis.
Vahetus läheduses on Stockmann, Viru keskus, Tallinna Kaubamaja ning kõik tähtsamad toidupoed Selver, Comarket, Rimi, Stockmann toidupood mugavalt vaid paari minuti kaugusel. Kortermaja asukoht on just selline, mis pakub selle elanikele võimalikult palju valikuvõimalusi, kuidas oma aega sisustada ja igapäevaseid toimetusi korraldada.
Lisaks pakub lähiümbrus ohtralt sportimisvõimalusi nii elukutselistele sportlastele kui ka lihtsalt harrastajatele- läheduses on tasemel spordiklubid: MyFitness, Golden Club Rotermanni, Justfit Club Tallinn ning Kadrioru staadion.
Lähim ühistranspordi peatus (Kadriorg) asub vaid 290 meetri kaugusel koduuksest.
Huvi korral võtke palun ühendust, et kokku leppida sobiv aeg korteriga tutvumiseks.
HOONE
Kadrioru pargi äärest jooksva Poska tänava keskel asuv 2016. aastal valminud kortermaja pakub suurepärast elukeskkonda Tallinna hinnatuimas elamispiirkonnas. Siin kohtuvad Kadrioru väärikusest pakatav nostalgiliselt romantiline miljöö koos südalinna melu ja selle pakutavate võimalustega.
Tegemist on Estconde Invest arendatud monoliitsest raudbetoonist, plekk katusega hoonega, mis moodustab osa viiemajalisest tervikust.
Miljööväärtuslikus rajoonis paiknevad 3- korruselised linnavilla tüüpi elamud on privaatsed, turvalised ja autovabad.
Maja on lukustatud ning mugavuste tagamiseks on olemas nii lift kui maa-alune garaaž. Aiaga ümbritsetud maja hoovi on ka paigaldatud pisematele mänguväljak.
SISEVIIMISTLUS JA PLANEERING
Tegu on avara ja ruumika esimesel korrusel asuva kolmetoalise korteriga, suurusega 97,9 m2, millele lisanduvad 2 terrassi kogusuurusega 23,3 m2.
Korteri koosseisu kuuluvad esik, garderoob, elutuba, köök, sahver, 2 magamistuba, 2 vannituba, WC, saun, majapidamisruum ning 2 terrassi.
Korter on planeeritud mugavat ja hubast elamist silmas pidades.
Siseviimistluses läbivalt kasutatud rahulik värvigamma loob korterisse tänapäevase, samas sooja ja koduse üldilme.
Luksuslikud modernsed lahendused kohtuvad interjööris ajatu disainiga. Läbimõeldud pisidetailid elavdavad avaraid ruume, millele lisanduvad neutraalsed toonid ja luksuslikud materjalid. Lõpptulemus on stiilipuhas ja hubane.
Korteril on maast-laeni puitraamiga kahekordsed pakettaknad, mis tagavad rohke naturaalse valguse. Kõigil akendel ja ustel (terrassi) on olemas tuulutusfunktsioon. Terrassiuksed on kahelt poolt avatavad (link on olemas nii sise- kui välisküljel).
Paigaldatud on Rimadesio klaasist siseuksed ning kaks eritellimusel laeni peiteust (majapidamisruumile ning garderoobile).
Põrandatel on naturaalne hele tammeparkett. Vannitubade seinad ning põrandad on kaetud keraamilise plaadiga. Kasutatud on ka looduslikku kivi, seda ka kamina puhul.
SISUSTUS
Funktsionaalsesse Poliform Varenna köögimööblisse on integreeritud kvaliteetne köögitehnika: nõudepesumasin, induktsioonpliit, praeahi, Gaggenau külmkapp koos jäämasinaga ja Liebherr veinikülmik. Lisaks Flexform köögipukid.
Eluruumides on Rimadesio ja Flexform mööbel. Olemas on ka Philips Ambilight TV. Vannitubades ja saunas on kasutatud sanitaartehnikat mainekatelt brändidelt nagu Hansgrohe ja Gessi. Saunas on eritellimusel keris ning leiliruum ehitatud termotöödeldud puidust. Majapidamisruumis on olemas Miele pesumasin ja kuivati.
Esikus ning magamistoas asuvad mahukad Rimadesio garderoobikapid.
Korteris on hubasust ning stiili lisav Ebios Quadra biokamin.
Suures magamistoas on olemas Flexform voodi. Omapärasust lisavad eritellimusel Lanzavecchia + Wai keraamilised loomaskulptuurid.
Akendele on paigaldatud erinevate toonivalikutega eritellimusel valmistatud kardinad.
Korterisse jääb sisse elutoa diivan, laud ning 3 väikest abilauda, voodi, tugitool pingiga, köögi pukid ning kogu sisse integreeritud mööbel.
KÜTE JA VENTILATSIOON
B energiamärgisega korteri küttesüsteem on lahendatud gaasikütte baasil. Olemas on ka soojustagastusega ventilatsioon.
PARKIMINE
Korteri juurde kuuluvad panipaik ning 2 kindlat parkimiskohta maa-aluses parkimismajas.
ÜMBRUSKOND
Kortermajale on kõik mugavalt lähedal, kuid ometi on see piisavalt eraldatud.
Maja läheduses asuvad rohealad ning ümbruskonna vaiksus loovad ideaalse elukeskonna. Meelelahutus, kultuur ning erinevad sportimisvõimalused saavad Sinu pere elu lahutamatuteks osadeks.
Poska 31 kortermaja asub hinnatud elamispiirkonnas. Ühele poole jääb Kadriorg oma rahuliku romantilise miljööga ja teisele poole kiire elutempoga kesklinn oma mitmekesiste võimalustega. Kesklinn oma kiirustavas elutempos pakub erinevaid võimalusi nii suurte kaubanduskeskuste, restoranide, teatrite kui ka kinode külastamiseks, samal ajal kui Kadrioru park oma nostalgilises ilus alleede, Luigetiigi, Kadrioru lossi, kohvikute, mitmete muuseumitega on suurepärane koht veetmaks rahulikumat kvaliteetaega oma lähedaste seltsis.
Vahetus läheduses on Stockmann, Viru keskus, Tallinna Kaubamaja ning kõik tähtsamad toidupoed Selver, Comarket, Rimi, Stockmann toidupood mugavalt vaid paari minuti kaugusel. Kortermaja asukoht on just selline, mis pakub selle elanikele võimalikult palju valikuvõimalusi, kuidas oma aega sisustada ja igapäevaseid toimetusi korraldada.
Lisaks pakub lähiümbrus ohtralt sportimisvõimalusi nii elukutselistele sportlastele kui ka lihtsalt harrastajatele- läheduses on tasemel spordiklubid: MyFitness, Golden Club Rotermanni, Justfit Club Tallinn ning Kadrioru staadion.
Lähim ühistranspordi peatus (Kadriorg) asub vaid 290 meetri kaugusel koduuksest.
Huvi korral võtke palun ühendust, et kokku leppida sobiv aeg korteriga tutvumiseks.
















































