Antud korteri puhul, ei ole „peidetud pärl“ nimetus pelgalt kinnisvaramaaklerile omane liialdus, vaid tegu on tõesti tänavalt vaevu märgatava moodsa hoonega, mis ümbritsetud kinnise aiakompleksi, roheluse ning miljööväärtuslike majadega.
SELLE KORTERI PLUSSID:
- Kindel parkimiskoht sisaldub hinnas
- Professionaalne sisekujundus
- Mööbel sisaldub hinnas (v.a dekoratsioonid)
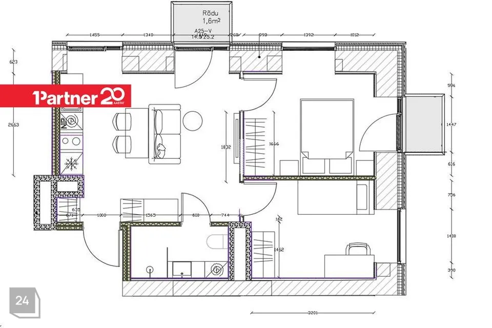
- Kaks rõdu
- Vaikse asukohaga kesklinna maja
KORTER:
3-toaline korter, kus ruumi kasutus on maksimaalselt professionaalse sisekujundaja poolt planeeritud. Köök ja elutuba on avatud planeeringuga ning kaks magamistuba asuvad eraldiseisvatena. Korteri juurde kuulub kaks rõdu (üks pääsuga elutoast ning teine magamistoast).
Esimesest hetkest meeldiva tundega valdav kodu on avatud sisehoovi ja maja külje vaadetele. Elutoa aknad avanevad maja ette sisehoovi ja õhtupäikese suunas. Magamistoad asetsevad hommikupäikese suunas.
Müügiga kaasnevaks suureks boonuseks võib pidada hinnas sisalduvat sisustust ja kodutehnikat. Lisaks lahtisele mööblile on igas toas mahukad sisseehitatud kapid.
PARKIMINE JA ÜLALPIDAMISKULUD:
Müügi hinnas sisaldub kindel parkimiskoht aiagi piiratud hoovis. Sissesõit alale on läbi puldiga avatava värava.
Ülalpidamiskulud talveperioodil on olnud siiani ca 270 eurot ja suvel ca 140 eurot kuu lõikes (mh elektri, kütte ja vee kulu).
MAJA JA ASUKOHT:
Vaid mõned aastad tagasi valminud tuntud arendaja (Avalon) poolt rajatud kaasaegne hoone.
Kinnistu on aiaga piiratud ja privaatne. Olemas on ka laste mänguväljak.
Hermanni tänav asub Tallinna tuiksoonel Kadrioru ja Kesklinna piiril. Hermanni 8a maja paikneb seejuures vaiksel ja idüllilisel tupiktänaval, kuhu linnakära ei ulatu.
Kõik vajalik on vaid paari minuti kaugusel – naabruses on Bussijaam, peagi uuenev Keskturg, Ülemiste linnak ja Sikupilli keskus. Ühistranspordi peatused on mugavas läheduses ning kesklinna jõudmiseks piisab vaid 5-minutilisest jalutuskäigust.
Korter on vaba koheseks tehingu järgseks võtmete üle andmiseks!
Aitan Teid kinnisvara müümisel ja üürile andmisel ning hindamisel, ostmisel ja laenu taotlemisel.
Korrektsed lepingud ja professionaalsed tehingud. Tasuta konsultatsioon. Reklaam kõikides suurimates kinnisvaraportaalides, välimeedias ja ajalehtedes.
1Partner on Eesti üks juhtivatest kinnisvarafirmadest, mille põhiteenused on:
- vahendamine
- hindamine
- haldamine
- ehitamine
- arendamine
- investeeringute juhtimine
Kogu teave meie pakkumiste ja teenuste kohta: 1partner.ee
SELLE KORTERI PLUSSID:
- Kindel parkimiskoht sisaldub hinnas
- Professionaalne sisekujundus
- Mööbel sisaldub hinnas (v.a dekoratsioonid)
- Kaks rõdu
- Vaikse asukohaga kesklinna maja
KORTER:
3-toaline korter, kus ruumi kasutus on maksimaalselt professionaalse sisekujundaja poolt planeeritud. Köök ja elutuba on avatud planeeringuga ning kaks magamistuba asuvad eraldiseisvatena. Korteri juurde kuulub kaks rõdu (üks pääsuga elutoast ning teine magamistoast).
Esimesest hetkest meeldiva tundega valdav kodu on avatud sisehoovi ja maja külje vaadetele. Elutoa aknad avanevad maja ette sisehoovi ja õhtupäikese suunas. Magamistoad asetsevad hommikupäikese suunas.
Müügiga kaasnevaks suureks boonuseks võib pidada hinnas sisalduvat sisustust ja kodutehnikat. Lisaks lahtisele mööblile on igas toas mahukad sisseehitatud kapid.
PARKIMINE JA ÜLALPIDAMISKULUD:
Müügi hinnas sisaldub kindel parkimiskoht aiagi piiratud hoovis. Sissesõit alale on läbi puldiga avatava värava.
Ülalpidamiskulud talveperioodil on olnud siiani ca 270 eurot ja suvel ca 140 eurot kuu lõikes (mh elektri, kütte ja vee kulu).
MAJA JA ASUKOHT:
Vaid mõned aastad tagasi valminud tuntud arendaja (Avalon) poolt rajatud kaasaegne hoone.
Kinnistu on aiaga piiratud ja privaatne. Olemas on ka laste mänguväljak.
Hermanni tänav asub Tallinna tuiksoonel Kadrioru ja Kesklinna piiril. Hermanni 8a maja paikneb seejuures vaiksel ja idüllilisel tupiktänaval, kuhu linnakära ei ulatu.
Kõik vajalik on vaid paari minuti kaugusel – naabruses on Bussijaam, peagi uuenev Keskturg, Ülemiste linnak ja Sikupilli keskus. Ühistranspordi peatused on mugavas läheduses ning kesklinna jõudmiseks piisab vaid 5-minutilisest jalutuskäigust.
Korter on vaba koheseks tehingu järgseks võtmete üle andmiseks!
Aitan Teid kinnisvara müümisel ja üürile andmisel ning hindamisel, ostmisel ja laenu taotlemisel.
Korrektsed lepingud ja professionaalsed tehingud. Tasuta konsultatsioon. Reklaam kõikides suurimates kinnisvaraportaalides, välimeedias ja ajalehtedes.
1Partner on Eesti üks juhtivatest kinnisvarafirmadest, mille põhiteenused on:
- vahendamine
- hindamine
- haldamine
- ehitamine
- arendamine
- investeeringute juhtimine
Kogu teave meie pakkumiste ja teenuste kohta: 1partner.ee


































