Maja on valmis, tule tutvuma!
Looduskaunis ning linnalähedases Tiskre asumis on valmis saanud kaks moodsat A-energiaklassi kortermaja, mida arendab ehituskvaliteedi poolest tuntud ning üle 30-aastase kogemusega AS TTP.
36 kaasaegset korterit pakuvad mugavat elu.
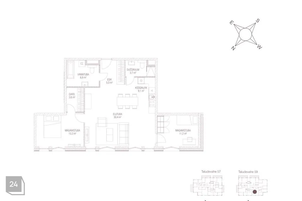
Kummaski majas on 18 erineva planeeringuga 2- kuni 4-toalist korterit. Ideaalsed valikud nii lastega kui lasteta peredele, vallalistele ja vanematele inimestele. Igaühele just tema vajadustele vastava planeeringu ja suurusega. Rõdu või terrass pea igal korteril on ilusa ilmaga tänuväärt lisaruum. Lift on kirsiks mugavuse tordil. Sõltuvalt korteri paiknemisest majas, avaneb kolmanda ja neljanda korruse korteritest hunnitu merevaade üle armsate eramute.
Mugav parkida nii maa all kui maa peal.
Kahe kortermaja ühine maa-alune garaaž päästab autod nii lõõskava suvepäikse kui ka talvise jää eest. Pärast poeskäiku kuivast parklast liftiga kodukorrusele saamisest veel mugavam on talvehommikul viivituseta välja sõita, samal ajal kui õues tuuleklaasilt jääd kraabitakse. 56-st parkimiskohast 2/3 on kavandatud hoonete all olevasse ühisesse parklasse. Seal samas asuvad ka panipaigad kõigile korteritele.
Looduslähedus kuid linna mugavused.
Rannamõisa ja Sõrve maastikukaitsealad on rikkad nii taime- kui loomastiku poolest. Lugematud kilomeetrid kergliiklusteid võimaldavad sul liikuda igasse suunda nii jala kui jalgrattal. Auto või bussisõit viib sind aga Haabersti ja Rocca al Mare kaudu sujuvalt mistahes linnaossa.
Jalutuskäigu kaugusel asuvast Tiskre Prismast võib saada sinu kodupood, arvukad ümbruskonna söögikohad annavad aga igapäevasest kokkamisest puhkust. Mäest üles asub Tabasalu koos mitmekesise kaubanduse, sportimise ning vaba aja veetmise võimalustega.
Kõik see ja muidugi ka mere lähedus muudavad Taludevahe kodukohana väga atraktiivseks.
Energiatõhus ja keskkonnasõbralik. Kõigi arvates.
Päiksepaneelid katusel, ökonoomsed õhk-vesi soojuspumbad, soojustagastusega sundventilatsioon ning 3-kordse klaaspaketiga aknad tagavad A-energiaklassi, tänu millele on Sinu uue kodu ülalpidamiskulud mõistlikud. Põrandaküte on korteripõhiselt reguleeritav. Tõhus heliisolatsioon tagab, et Sinu kodurahu ei riku ei naabrid ega mööduvad autod. Pangad aga annavad A-energiaklassi kodudele tavaliselt laenu soodustingimustel.
Kolm ajatut siseviimistlus¬paketti kokkusobivate vannitoa¬lahendustega.
Taludevahesse korteri ostes saad käsi südamel nentida: „See on meie kõige ilusam kodu.“
Maani aknad toovad tuppa loomuliku päevavalguse, mis meie kliimas on oluline eelis.
Hingega koostatud siseviimistluspaketid on läbi mõeldud viimse kui detailini. Meil ei pea Sa mõtlema milline siseuks millist värvi seina või põrandaga kokku sobib või milline kiviplaat vannitoas olla võiks. Kõigele on mõeldud. Valid paketi – saad selle sees elegantse terviklahenduse kuni pistikupesadeni välja. Ühe väikse kuid meie arvates toreda valiku pead siseviimistluse osas küll tõesti ise tegema – selle, kas põrand on kalasabas või mitte. Kõik muu on Sinu eest juba ette ära lahendatud.
Kvaliteedis me järeleandmisi ei tee – lubame Sulle, et kõik esteetiliselt kaunis on ka töökindel.
Mis võiks sulle siin meeldida?
• Päikesepaneelid
• Targa maja süsteem
• Jahutusvõimekus osadel korteritel
• Lift
• Rõdud
• Terrassid
• Maa-alune parkimine
• Mänguväljak
• Tõkkepuuga piiratud hoov
• Kinnine jalgrattaparkla
Kaugused: meri 750 m, Tabasalu 24/7 Fitness 1,4 km, lastehoid 300 m, Tiskre Prisma 850 m, bussipeatus 290 m, Rocca al Mare Keskus 5,2 km, Tabasalu Selver 1,4 km, Tiskre 24/7 Alexela 750 m.
Uus rajatav kool saab olema 900m kaugusel.
Võta ühendust, et tagada oma perele parima planeeringuga korter selles toredas uusarenduses.
Hinnad, planeeringud, müügitingimused ja kõik muu leiad põhjalikumalt kodulehelt: https://taludevahe.ee/
Korteri hind ei sisalda parkimiskoha ja panipaiga hinda:
• Panipaik 3,5-4m2 5000 eurot
• Parkimiskoht maja all 12 000 eurot
• Parkimiskoht õues 7000 eurot
NB! Pildid on tehtud analoogse planeeringuga näidiskorterist, korterihind ei sisalda mööblit sh köögimööblit!
JAGA MINU KONTAKTI KÕIGILE, KES VAJAVAD KINNISVARANÕU!
- - - - - - - - - -
Telli hindamine UUS MAA Kinnisvarabüroolt https://uusmaa.ee/teenused/hindamine/
ning saad:
- Eksperthinnangu kuni 20% soodsamalt kui võtad koduga seotud laenu Swedbankist
- Pankadest parimad kodulaenutingimused
- Kiire, kvaliteetse ning usaldusväärse hindamisteenuse Eestis
UUS MAA KINNISVARABÜROO EKSPERTHINNANGUID AKTSEPTEERIVAD KÕIK FINANTSASUTUSED.
- - - - - - - - - -
Liitu Uus Maa uudiskirjaga ja saa homset kinnisvarainfot juba täna!
https://www.uusmaa.ee/uudiskirjagaliitumine/
- - - - - - - - - -
Kodu aitab osta Swedbank.
Pakkumise saamiseks kasuta koodi UUSMAA ja Sind teenindatakse eelisjärjekorras.
Võtame ühendust 1 tööpäeva jooksul.
Uus Maa kliendile soodsam lepingutasu. Küsi täpsemat infot maaklerilt.
Finantsteenuseid pakub Swedbank AS. Tutvu tingimustega, pea nõu.
Looduskaunis ning linnalähedases Tiskre asumis on valmis saanud kaks moodsat A-energiaklassi kortermaja, mida arendab ehituskvaliteedi poolest tuntud ning üle 30-aastase kogemusega AS TTP.
36 kaasaegset korterit pakuvad mugavat elu.
Kummaski majas on 18 erineva planeeringuga 2- kuni 4-toalist korterit. Ideaalsed valikud nii lastega kui lasteta peredele, vallalistele ja vanematele inimestele. Igaühele just tema vajadustele vastava planeeringu ja suurusega. Rõdu või terrass pea igal korteril on ilusa ilmaga tänuväärt lisaruum. Lift on kirsiks mugavuse tordil. Sõltuvalt korteri paiknemisest majas, avaneb kolmanda ja neljanda korruse korteritest hunnitu merevaade üle armsate eramute.
Mugav parkida nii maa all kui maa peal.
Kahe kortermaja ühine maa-alune garaaž päästab autod nii lõõskava suvepäikse kui ka talvise jää eest. Pärast poeskäiku kuivast parklast liftiga kodukorrusele saamisest veel mugavam on talvehommikul viivituseta välja sõita, samal ajal kui õues tuuleklaasilt jääd kraabitakse. 56-st parkimiskohast 2/3 on kavandatud hoonete all olevasse ühisesse parklasse. Seal samas asuvad ka panipaigad kõigile korteritele.
Looduslähedus kuid linna mugavused.
Rannamõisa ja Sõrve maastikukaitsealad on rikkad nii taime- kui loomastiku poolest. Lugematud kilomeetrid kergliiklusteid võimaldavad sul liikuda igasse suunda nii jala kui jalgrattal. Auto või bussisõit viib sind aga Haabersti ja Rocca al Mare kaudu sujuvalt mistahes linnaossa.
Jalutuskäigu kaugusel asuvast Tiskre Prismast võib saada sinu kodupood, arvukad ümbruskonna söögikohad annavad aga igapäevasest kokkamisest puhkust. Mäest üles asub Tabasalu koos mitmekesise kaubanduse, sportimise ning vaba aja veetmise võimalustega.
Kõik see ja muidugi ka mere lähedus muudavad Taludevahe kodukohana väga atraktiivseks.
Energiatõhus ja keskkonnasõbralik. Kõigi arvates.
Päiksepaneelid katusel, ökonoomsed õhk-vesi soojuspumbad, soojustagastusega sundventilatsioon ning 3-kordse klaaspaketiga aknad tagavad A-energiaklassi, tänu millele on Sinu uue kodu ülalpidamiskulud mõistlikud. Põrandaküte on korteripõhiselt reguleeritav. Tõhus heliisolatsioon tagab, et Sinu kodurahu ei riku ei naabrid ega mööduvad autod. Pangad aga annavad A-energiaklassi kodudele tavaliselt laenu soodustingimustel.
Kolm ajatut siseviimistlus¬paketti kokkusobivate vannitoa¬lahendustega.
Taludevahesse korteri ostes saad käsi südamel nentida: „See on meie kõige ilusam kodu.“
Maani aknad toovad tuppa loomuliku päevavalguse, mis meie kliimas on oluline eelis.
Hingega koostatud siseviimistluspaketid on läbi mõeldud viimse kui detailini. Meil ei pea Sa mõtlema milline siseuks millist värvi seina või põrandaga kokku sobib või milline kiviplaat vannitoas olla võiks. Kõigele on mõeldud. Valid paketi – saad selle sees elegantse terviklahenduse kuni pistikupesadeni välja. Ühe väikse kuid meie arvates toreda valiku pead siseviimistluse osas küll tõesti ise tegema – selle, kas põrand on kalasabas või mitte. Kõik muu on Sinu eest juba ette ära lahendatud.
Kvaliteedis me järeleandmisi ei tee – lubame Sulle, et kõik esteetiliselt kaunis on ka töökindel.
Mis võiks sulle siin meeldida?
• Päikesepaneelid
• Targa maja süsteem
• Jahutusvõimekus osadel korteritel
• Lift
• Rõdud
• Terrassid
• Maa-alune parkimine
• Mänguväljak
• Tõkkepuuga piiratud hoov
• Kinnine jalgrattaparkla
Kaugused: meri 750 m, Tabasalu 24/7 Fitness 1,4 km, lastehoid 300 m, Tiskre Prisma 850 m, bussipeatus 290 m, Rocca al Mare Keskus 5,2 km, Tabasalu Selver 1,4 km, Tiskre 24/7 Alexela 750 m.
Uus rajatav kool saab olema 900m kaugusel.
Võta ühendust, et tagada oma perele parima planeeringuga korter selles toredas uusarenduses.
Hinnad, planeeringud, müügitingimused ja kõik muu leiad põhjalikumalt kodulehelt: https://taludevahe.ee/
Korteri hind ei sisalda parkimiskoha ja panipaiga hinda:
• Panipaik 3,5-4m2 5000 eurot
• Parkimiskoht maja all 12 000 eurot
• Parkimiskoht õues 7000 eurot
NB! Pildid on tehtud analoogse planeeringuga näidiskorterist, korterihind ei sisalda mööblit sh köögimööblit!
JAGA MINU KONTAKTI KÕIGILE, KES VAJAVAD KINNISVARANÕU!
- - - - - - - - - -
Telli hindamine UUS MAA Kinnisvarabüroolt https://uusmaa.ee/teenused/hindamine/
ning saad:
- Eksperthinnangu kuni 20% soodsamalt kui võtad koduga seotud laenu Swedbankist
- Pankadest parimad kodulaenutingimused
- Kiire, kvaliteetse ning usaldusväärse hindamisteenuse Eestis
UUS MAA KINNISVARABÜROO EKSPERTHINNANGUID AKTSEPTEERIVAD KÕIK FINANTSASUTUSED.
- - - - - - - - - -
Liitu Uus Maa uudiskirjaga ja saa homset kinnisvarainfot juba täna!
https://www.uusmaa.ee/uudiskirjagaliitumine/
- - - - - - - - - -
Kodu aitab osta Swedbank.
Pakkumise saamiseks kasuta koodi UUSMAA ja Sind teenindatakse eelisjärjekorras.
Võtame ühendust 1 tööpäeva jooksul.
Uus Maa kliendile soodsam lepingutasu. Küsi täpsemat infot maaklerilt.
Finantsteenuseid pakub Swedbank AS. Tutvu tingimustega, pea nõu.







































