A-energiaklassi, maaküttega kodu avara terrassiga
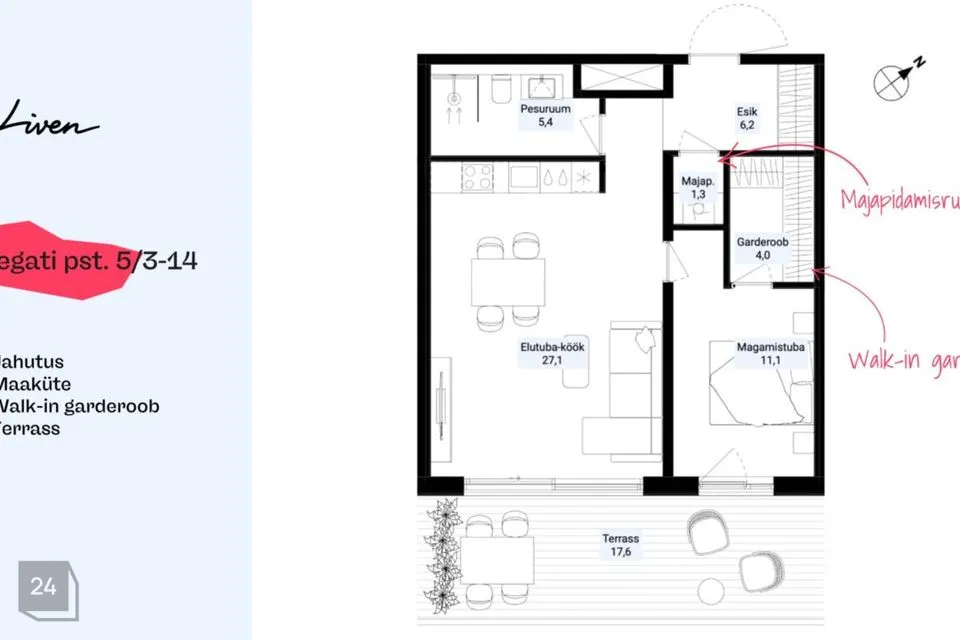
Kahetoaline avara terrassiga kodu walk-in garderoobi ja majapidamisruumiga. Regati kodud on kõrgete lagede, akende ja ustega. Majadel on A-energiaklass, need on maaküttel ja kasutusel on päikesepaneelid.
I N T E R J Ö Ö R
– Ühelipiline liimitud paigaldusega hele tammeparkett
– Valged uksed, põrandaliistud, süvistatud valgustid, lülitid ja pistikupesad
– Helebeežid 60x60 cm seina- ja põrandaplaadid
– Kroomviimistlusega ukselingid ja segistid
M A J A D & Õ U E A L A D
Regati kodud on loonud Salto arhitektid. Läbimõeldud lahendused ja planeeringud erakordses kodukohas.
Maa-aluses soojas parklas on mugavad 2,7-meetri laiused parkimiskohad. Parkimiskoha või -kohtade ja panipaiga maksumused lisanduvad kodu hinnale. Panipaigad on suurusega alates 2 m2 ning hinnad alates 5000 eurost. Osadel kodudel on elutoas jahutusseade, lisaks on paljud kodud targa kodu valmidusega. Küsi kindlasti huvipakkuva kohta lisainfot!
Iga trepikoja juures on jalgrataste hoiuruum ning kõikide majade peale on sisustatud üks jalgrataste hooldusruum koos pesuvanni ja rattahoolduspukiga.
Sisehoovis asub loodusega samas rütmis elav vihmaaed ja majade vahel ei sõida autod, vaid jalutavad inimesed ning tegutsevad kohvikud, sest Regati majades on ka mõned äripinnad.
A S U K O H T
Regati kodud on end sisse seadnud väga magusasse asukohta. Lisaks maja ees laiuvale merele algavad Su ukse eest kergliiklusteed, mis viivad Viimsisse, kesklinna või otse metsa. Läheduses on spordiklubid ja -rajad, lasteaiad, kauplused ning mõnusad toidukohad.
Tutvu Regati kodudega siin: https://liven.ee/home/regati/lugu/
Esimesed kodud valmivad alates 2025. aasta teisest poolest.
* Kuulutuse pildid on illustratiivsed!
Kahetoaline avara terrassiga kodu walk-in garderoobi ja majapidamisruumiga. Regati kodud on kõrgete lagede, akende ja ustega. Majadel on A-energiaklass, need on maaküttel ja kasutusel on päikesepaneelid.
I N T E R J Ö Ö R
– Ühelipiline liimitud paigaldusega hele tammeparkett
– Valged uksed, põrandaliistud, süvistatud valgustid, lülitid ja pistikupesad
– Helebeežid 60x60 cm seina- ja põrandaplaadid
– Kroomviimistlusega ukselingid ja segistid
M A J A D & Õ U E A L A D
Regati kodud on loonud Salto arhitektid. Läbimõeldud lahendused ja planeeringud erakordses kodukohas.
Maa-aluses soojas parklas on mugavad 2,7-meetri laiused parkimiskohad. Parkimiskoha või -kohtade ja panipaiga maksumused lisanduvad kodu hinnale. Panipaigad on suurusega alates 2 m2 ning hinnad alates 5000 eurost. Osadel kodudel on elutoas jahutusseade, lisaks on paljud kodud targa kodu valmidusega. Küsi kindlasti huvipakkuva kohta lisainfot!
Iga trepikoja juures on jalgrataste hoiuruum ning kõikide majade peale on sisustatud üks jalgrataste hooldusruum koos pesuvanni ja rattahoolduspukiga.
Sisehoovis asub loodusega samas rütmis elav vihmaaed ja majade vahel ei sõida autod, vaid jalutavad inimesed ning tegutsevad kohvikud, sest Regati majades on ka mõned äripinnad.
A S U K O H T
Regati kodud on end sisse seadnud väga magusasse asukohta. Lisaks maja ees laiuvale merele algavad Su ukse eest kergliiklusteed, mis viivad Viimsisse, kesklinna või otse metsa. Läheduses on spordiklubid ja -rajad, lasteaiad, kauplused ning mõnusad toidukohad.
Tutvu Regati kodudega siin: https://liven.ee/home/regati/lugu/
Esimesed kodud valmivad alates 2025. aasta teisest poolest.
* Kuulutuse pildid on illustratiivsed!
















