TALVEKAMPAANIA - Kolmele esimesele neljatoalise perekorteri ostjale on köögimööbel ja köögitehnika hinnas!
Võit 15 000 eurot!
Tiskresse rajatakse kaks modernset A – energiaklassi korterelamut, kus on kokku vaid 10 korterit. Kodude valmimisaeg on 2026 kevad. Majade juures on puhkeala laste mänguväljakuga ning roheala. Ehitustööde peatöövõtja on Riser Ehitus OÜ.
HOONE
Hoone kandevkonstruktsioon ehitatakse täisbetoneeritud õõnesplokkidest ja raudbetoonist õõnespaneelidest. Paremaks helikindluseks on korterite vahelised ja trepikoja seinad laotud täisbetoneeritud õõnesplokkidest. Korterite siseseinad on metallkarkassil.
Tiskrepere kodudel on 3-kordsed plastraamides aknad. Korterite välisuksed on puidust. Siseuksed on massiivliimpuitraamiga värvitud uksed.
Tiskrepere arenduses pöörame erilist tähelepanu sisekliimale, et tagada elanikele maksimaalne mugavus ja tervislik sisekliima aastaringselt.
• Iga korter on varustatud mugavusjahutuse valmidusega, mis võimaldab soovi korral paigaldada jahutussüsteem ja tagada meeldiv temperatuur ka kuumadel suvepäevadel.
• Ventilatsiooniseadmetel on niiskustagastus, mis aitab hoida õhu niiskustasakaalu loomulikumana, vähendab energiakulu ning parandab sisekliimat.
• Vannitubadesse on võimalik lisada elektriline põrandaküte, et tagada lisasoojus ja mõnus mugavustunne just seal, kus seda kõige rohkem hinnatakse
KORTER NR 6
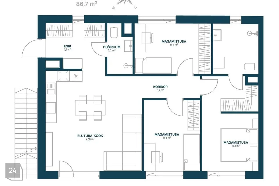
Korter nr 6 on suurusega 86,7 m2, asub tänavamaja teisel korrusel. Korteri planeeringus on kokku 4 tuba: 3 magamistuba, elutuba köök, esik/koridor, duširuum/tualett. „Master bedroomis“ on oma privaatne duširuum /tualett. Kõikides magamistubades ja esikus on loogilised kohad garderoobide jaoks. Korteri juurde kuulub rõdu vaatega hoovi ja panipaik õues.
Korteri hinnas sisaldub:
• Panipaik.
• Siseviimistlus vastavalt valitud standardpaketile
• Käibemaks
Korteri hinnas ei sisaldu:
• Parkimiskoht maksumusega 5000 eurot
• Müügilepingu sõlmimisega seotud notaritasud ja riigilõivud
• Andmeside, kaabeltelevisiooni, telefoni- ja valveside liitumistasud
• Autode elektrilaadijate kaabeldus, seadmed ja Elektrilevi liitumistasud
• Premium siseviimistluspaketi maksumus
Lisatasu eest
• Seinapealne jahutusseade elutoas 4 000 €
• Elektriline põrandaküte vannitoas 600€
• Dušinišš LED valgusega 1500 €
ASUKOHT
Kõik eluks vajalik on lähedal – mugavus, liikumisvõimalused ja peresõbralik keskkond
• Tiskre ja Tabasalu kergliiklusteed, matkarajad ja mererand.
• Tabasalu Spordikeskus, lasteaiad, koolid, huviringid, vaba aja veetmise võimalusi igas vanuses lastele.
• Meat restoran, kaubanduskeskus, toidupoed ja esmatarbeteenused lähedal.
• Kiire ühendus Tallinna kesklinnaga, bussipeatus maja kõrval.
* Kuulutuses olevad pildid on illustratiivsed ja võivad erineda tegelikkusest.
* Energiaklass A on arvestuslik.
Rohkem infot: www.tiskrepere.ee
Helista mulle ja uuri lisainfot!
JAGA MINU KONTAKTI KÕIGILE, KES VAJAVAD KINNISVARANÕU!
- - - - - - - - - -
Telli hindamine UUS MAA Kinnisvarabüroolt https://uusmaa.ee/teenused/hindamine/
ning saad:
- Eksperthinnangu kuni 20% soodsamalt kui võtad koduga seotud laenu Swedbankist
- Pankadest parimad kodulaenutingimused
- Kiire, kvaliteetse ning usaldusväärse hindamisteenuse Eestis
UUS MAA KINNISVARABÜROO EKSPERTHINNANGUID AKTSEPTEERIVAD KÕIK FINANTSASUTUSED.
- - - - - - - - - -
Liitu Uus Maa uudiskirjaga ja saa homset kinnisvarainfot juba täna!
https://www.uusmaa.ee/uudiskirjagaliitumine/
- - - - - - - - - -
Kodu aitab osta Swedbank.
Pakkumise saamiseks kasuta koodi UUSMAA ja Sind teenindatakse eelisjärjekorras.
Võtame ühendust 1 tööpäeva jooksul.
Uus Maa kliendile soodsam lepingutasu. Küsi täpsemat infot maaklerilt.
Finantsteenuseid pakub Swedbank AS. Tutvu tingimustega, pea nõu.
Võit 15 000 eurot!
Tiskresse rajatakse kaks modernset A – energiaklassi korterelamut, kus on kokku vaid 10 korterit. Kodude valmimisaeg on 2026 kevad. Majade juures on puhkeala laste mänguväljakuga ning roheala. Ehitustööde peatöövõtja on Riser Ehitus OÜ.
HOONE
Hoone kandevkonstruktsioon ehitatakse täisbetoneeritud õõnesplokkidest ja raudbetoonist õõnespaneelidest. Paremaks helikindluseks on korterite vahelised ja trepikoja seinad laotud täisbetoneeritud õõnesplokkidest. Korterite siseseinad on metallkarkassil.
Tiskrepere kodudel on 3-kordsed plastraamides aknad. Korterite välisuksed on puidust. Siseuksed on massiivliimpuitraamiga värvitud uksed.
Tiskrepere arenduses pöörame erilist tähelepanu sisekliimale, et tagada elanikele maksimaalne mugavus ja tervislik sisekliima aastaringselt.
• Iga korter on varustatud mugavusjahutuse valmidusega, mis võimaldab soovi korral paigaldada jahutussüsteem ja tagada meeldiv temperatuur ka kuumadel suvepäevadel.
• Ventilatsiooniseadmetel on niiskustagastus, mis aitab hoida õhu niiskustasakaalu loomulikumana, vähendab energiakulu ning parandab sisekliimat.
• Vannitubadesse on võimalik lisada elektriline põrandaküte, et tagada lisasoojus ja mõnus mugavustunne just seal, kus seda kõige rohkem hinnatakse
KORTER NR 6
Korter nr 6 on suurusega 86,7 m2, asub tänavamaja teisel korrusel. Korteri planeeringus on kokku 4 tuba: 3 magamistuba, elutuba köök, esik/koridor, duširuum/tualett. „Master bedroomis“ on oma privaatne duširuum /tualett. Kõikides magamistubades ja esikus on loogilised kohad garderoobide jaoks. Korteri juurde kuulub rõdu vaatega hoovi ja panipaik õues.
Korteri hinnas sisaldub:
• Panipaik.
• Siseviimistlus vastavalt valitud standardpaketile
• Käibemaks
Korteri hinnas ei sisaldu:
• Parkimiskoht maksumusega 5000 eurot
• Müügilepingu sõlmimisega seotud notaritasud ja riigilõivud
• Andmeside, kaabeltelevisiooni, telefoni- ja valveside liitumistasud
• Autode elektrilaadijate kaabeldus, seadmed ja Elektrilevi liitumistasud
• Premium siseviimistluspaketi maksumus
Lisatasu eest
• Seinapealne jahutusseade elutoas 4 000 €
• Elektriline põrandaküte vannitoas 600€
• Dušinišš LED valgusega 1500 €
ASUKOHT
Kõik eluks vajalik on lähedal – mugavus, liikumisvõimalused ja peresõbralik keskkond
• Tiskre ja Tabasalu kergliiklusteed, matkarajad ja mererand.
• Tabasalu Spordikeskus, lasteaiad, koolid, huviringid, vaba aja veetmise võimalusi igas vanuses lastele.
• Meat restoran, kaubanduskeskus, toidupoed ja esmatarbeteenused lähedal.
• Kiire ühendus Tallinna kesklinnaga, bussipeatus maja kõrval.
* Kuulutuses olevad pildid on illustratiivsed ja võivad erineda tegelikkusest.
* Energiaklass A on arvestuslik.
Rohkem infot: www.tiskrepere.ee
Helista mulle ja uuri lisainfot!
JAGA MINU KONTAKTI KÕIGILE, KES VAJAVAD KINNISVARANÕU!
- - - - - - - - - -
Telli hindamine UUS MAA Kinnisvarabüroolt https://uusmaa.ee/teenused/hindamine/
ning saad:
- Eksperthinnangu kuni 20% soodsamalt kui võtad koduga seotud laenu Swedbankist
- Pankadest parimad kodulaenutingimused
- Kiire, kvaliteetse ning usaldusväärse hindamisteenuse Eestis
UUS MAA KINNISVARABÜROO EKSPERTHINNANGUID AKTSEPTEERIVAD KÕIK FINANTSASUTUSED.
- - - - - - - - - -
Liitu Uus Maa uudiskirjaga ja saa homset kinnisvarainfot juba täna!
https://www.uusmaa.ee/uudiskirjagaliitumine/
- - - - - - - - - -
Kodu aitab osta Swedbank.
Pakkumise saamiseks kasuta koodi UUSMAA ja Sind teenindatakse eelisjärjekorras.
Võtame ühendust 1 tööpäeva jooksul.
Uus Maa kliendile soodsam lepingutasu. Küsi täpsemat infot maaklerilt.
Finantsteenuseid pakub Swedbank AS. Tutvu tingimustega, pea nõu.






















