K A M P A A N I A
Veel kahele Virmalise kodu broneerijale kingituseks köök koos tehnikaga – kasuta head võimalust!
Just praegu on parim aeg valida omale meelepärane planeering ja täiustada seda vastavalt oma soovidele – tööd ehitusplatsil on juba alanud. Võta ühendust ja loo oma uus maailm.
K O D U
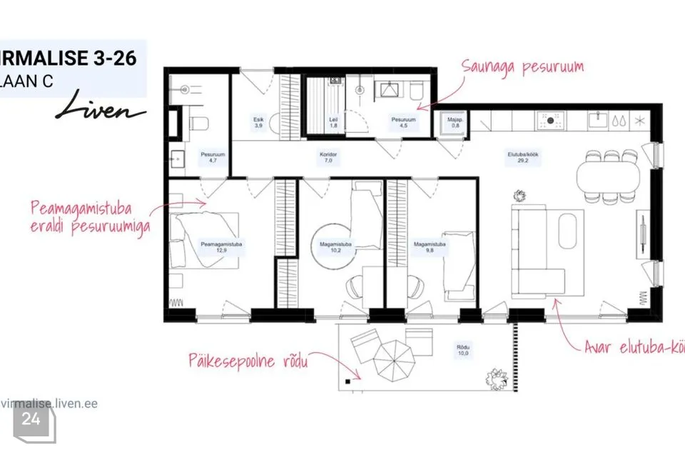
See mõnus 4-toaline kodu asub Virmalise maja 3. korrusel. Rõdu, majapidamisruum, kolm magamistuba, millest peamagamistuba eraldi pesuruumiga või hoopis avarama esikuga, köök saarega või ilma – valik on Sinu. Kodu on kõrgete lagedega, avar ja valgusküllane.
Praegu saad veel muuta korteri planeeringut ja rääkida kaasa ka siseviimistluse valikutes. Võta ühendust ja räägi meile oma soovidest. Liveni sisearhitektid annavad nõu ja aitavad luua just Sinu Virmalise kodu.
Ja kui tunned huvi, miks valida just Virmalise kodu, siis meil on Sulle selleks palju pakkuda:
* Kesklinna mugavus, kõik vajalik lähedal
* A-energiaklass, päikesepaneelid katusel
* Rõdu või terrass igal kodul
* Kõrghaljastatud ja aiaga piiratud hooviala
* Vähe kortereid, vähe naabreid
* Kõrged laed, uksed ja aknad – palju avarust
* Soojad ja ajatud siseviimistluslahendused
* Maa-alused parkimiskohad ja panipaigad
* Pommivarjend, igaks juhuks
* Mängu- ja puhkealad hoovis
* Rattaparklad nii majas kui hoovis
* Võimalus kodu planeeringus muudatusi teha
* Sisearhitekti teenus kodu hinnas
I N T E R J Ö Ö R
Virmalise kodude siseviimistluslahendused on erilised, looduslähedaselt rahulikud ja samas ka silmapaistvalt põnevad. Kodu loomine on ju kunst – seetõttu ootab Sind Livenis sisearhitekt, kes tutvustab erinevaid võimalusi, kuulab Su ära ja annab head nõu. Ta aitab nii suure pildi kui väikeste detailidega.
M A J A & Õ U E A L A
Virmalise maja on neljakorruseline ja selle mõlemas hooneosas on vaid üks trepikoda ning kodud on 1- kuni 4-toalised. Majal on A-energiaklass – päikesepaneelid katusel vähendavad maja elektrikulu. Autode parkimiskohad ja panipaigad asuvad maa-aluses parklas, lisaks kuuluvad maja juurde mitmed jalgrattaparklad ja isegi eraldi ruum väikelaste kärudele ja ratastele.
Virmalise õueala on privaatne, madal- ja kõrghaljastatud ning aiaga piiratud. Siin ripub võrkkiik, vahva ronimisrada ja laiskleb ka üks liivakast – viimases püüab keegi kindlust ehitada. Aeg-ajalt kuuled, kuidas keegi oma ratast võtab. Võib-olla isegi märkad läbi põõsaste, kuidas ta väntama asub. Oma õu ei ole tingimata luksus, aga kesklinnas on see luksus kohe tingimata.
Kui puu all istumisest kael kangeks kipub jääma, koli ümber oma terrassile või rõdule. See, kumb Sinul on, sõltub sellest, millise kodu valinud oled. Mõlemad valikud on head, sest rõdud said meil topeltsuured. Aga kas klaasida või mitte, selle otsustad juba Sina.
A S U K O H T
Virmalise kodud asuvad Tallinna kesklinnas, Uue Maailma asumis, kuhu 10 aastat tagasi tahtsid justkui kõik tulla. Aga siis ei olnud veel Virmalise kodusid ning teistes majades elas juba keegi sees. Huvi Uue Maailma vastu ei saa aga pahaks panna, sest see on nagu väikelinn keset kesklinna. Siia ei kostu südalinna melu, kuid muuseumisse või teatrisse võid jala minna sellegipoolest.
Virmalise asub mõnusas kohas, mida kutsutakse vahepealseks. See on linna vahel, suurte tänavate vahel ja kõige olulise vahel ning just seetõttu on siin nii rahulik. Kõik teavad, kus on Uus Maailm, aga siia sattudes tundub ikka nagu oleks see koht üks hea saladus.
Võta ühendust ja tule tutvu uute Virmalise kodudega!
* Kodu kohandamine vastavalt Sinu vajadustele koostöös Liveni sisearhitektiga sisaldub kodu hinnas.
* Ehitus käib, Virmalise kodud valmivad 2026. a lõpus.
* Kuulutuse pildid on illustratiivsed.
Veel kahele Virmalise kodu broneerijale kingituseks köök koos tehnikaga – kasuta head võimalust!
Just praegu on parim aeg valida omale meelepärane planeering ja täiustada seda vastavalt oma soovidele – tööd ehitusplatsil on juba alanud. Võta ühendust ja loo oma uus maailm.
K O D U
See mõnus 4-toaline kodu asub Virmalise maja 3. korrusel. Rõdu, majapidamisruum, kolm magamistuba, millest peamagamistuba eraldi pesuruumiga või hoopis avarama esikuga, köök saarega või ilma – valik on Sinu. Kodu on kõrgete lagedega, avar ja valgusküllane.
Praegu saad veel muuta korteri planeeringut ja rääkida kaasa ka siseviimistluse valikutes. Võta ühendust ja räägi meile oma soovidest. Liveni sisearhitektid annavad nõu ja aitavad luua just Sinu Virmalise kodu.
Ja kui tunned huvi, miks valida just Virmalise kodu, siis meil on Sulle selleks palju pakkuda:
* Kesklinna mugavus, kõik vajalik lähedal
* A-energiaklass, päikesepaneelid katusel
* Rõdu või terrass igal kodul
* Kõrghaljastatud ja aiaga piiratud hooviala
* Vähe kortereid, vähe naabreid
* Kõrged laed, uksed ja aknad – palju avarust
* Soojad ja ajatud siseviimistluslahendused
* Maa-alused parkimiskohad ja panipaigad
* Pommivarjend, igaks juhuks
* Mängu- ja puhkealad hoovis
* Rattaparklad nii majas kui hoovis
* Võimalus kodu planeeringus muudatusi teha
* Sisearhitekti teenus kodu hinnas
I N T E R J Ö Ö R
Virmalise kodude siseviimistluslahendused on erilised, looduslähedaselt rahulikud ja samas ka silmapaistvalt põnevad. Kodu loomine on ju kunst – seetõttu ootab Sind Livenis sisearhitekt, kes tutvustab erinevaid võimalusi, kuulab Su ära ja annab head nõu. Ta aitab nii suure pildi kui väikeste detailidega.
M A J A & Õ U E A L A
Virmalise maja on neljakorruseline ja selle mõlemas hooneosas on vaid üks trepikoda ning kodud on 1- kuni 4-toalised. Majal on A-energiaklass – päikesepaneelid katusel vähendavad maja elektrikulu. Autode parkimiskohad ja panipaigad asuvad maa-aluses parklas, lisaks kuuluvad maja juurde mitmed jalgrattaparklad ja isegi eraldi ruum väikelaste kärudele ja ratastele.
Virmalise õueala on privaatne, madal- ja kõrghaljastatud ning aiaga piiratud. Siin ripub võrkkiik, vahva ronimisrada ja laiskleb ka üks liivakast – viimases püüab keegi kindlust ehitada. Aeg-ajalt kuuled, kuidas keegi oma ratast võtab. Võib-olla isegi märkad läbi põõsaste, kuidas ta väntama asub. Oma õu ei ole tingimata luksus, aga kesklinnas on see luksus kohe tingimata.
Kui puu all istumisest kael kangeks kipub jääma, koli ümber oma terrassile või rõdule. See, kumb Sinul on, sõltub sellest, millise kodu valinud oled. Mõlemad valikud on head, sest rõdud said meil topeltsuured. Aga kas klaasida või mitte, selle otsustad juba Sina.
A S U K O H T
Virmalise kodud asuvad Tallinna kesklinnas, Uue Maailma asumis, kuhu 10 aastat tagasi tahtsid justkui kõik tulla. Aga siis ei olnud veel Virmalise kodusid ning teistes majades elas juba keegi sees. Huvi Uue Maailma vastu ei saa aga pahaks panna, sest see on nagu väikelinn keset kesklinna. Siia ei kostu südalinna melu, kuid muuseumisse või teatrisse võid jala minna sellegipoolest.
Virmalise asub mõnusas kohas, mida kutsutakse vahepealseks. See on linna vahel, suurte tänavate vahel ja kõige olulise vahel ning just seetõttu on siin nii rahulik. Kõik teavad, kus on Uus Maailm, aga siia sattudes tundub ikka nagu oleks see koht üks hea saladus.
Võta ühendust ja tule tutvu uute Virmalise kodudega!
* Kodu kohandamine vastavalt Sinu vajadustele koostöös Liveni sisearhitektiga sisaldub kodu hinnas.
* Ehitus käib, Virmalise kodud valmivad 2026. a lõpus.
* Kuulutuse pildid on illustratiivsed.


























