Pikaliiva Kaarmaja neljast elamust moodustub kaunis poolkaar, mille keskmeks on hubane hooviala. Igal kodul on rõdu või terrass, kus nautida rahulikke puhkehetki kohvitassi ja hea raamatu seltsis. Õdusas reljeefse maastikuga sisehoovis ootavad elanikke puhkeala ja mänguväljakud igas vanuses lastele. Naabritega koosolemist ja elu nautimist pakub päikesele avatud grilli- ja puhkeala koos piknikulaudade, väligrilli ja pergolaga. Parkimiskohad asuvad nii väliparklas kui ka maa-aluses parklas, mis lisab hoovile ruumi ja avarust. Pikaliiva elamud teevad energiasäästlikuks ja kaasaegseks päikesepaneelid ning nutikodu lahendus.
Uued kodud on sissekolimiseks valmis!
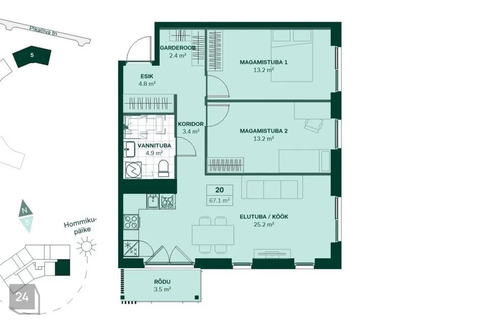
Tutvu lähemalt: bonava.ee/pikaliiva
Uued kodud on sissekolimiseks valmis!
Tutvu lähemalt: bonava.ee/pikaliiva








































